Exklusive Erstbezugswohnung mit Terrasse und Garten an der Alten Donau

Wohnung , 1220 Wien


Alte Donau

Beschreibung der Immobilie

Exklusive Erstbezugswohnung mit Terrasse und Garten an der Alten Donau

Näher an der Alten Donau zu wohnen, geht kaum noch. Und mehr Grün so nahe der City, findet sich auch selten. Diese Exklusive Wohnhausanlage an der Alten Donau bietet den optimalen Mix aus Luxus, Komfort und Urlaubsflair mitten in Wien.



Für Eigentümer liegen in der Segelschule nebenan Boote bereit: Genießen Sie 10 Stunden pro Jahr, drei Jahre lang Ihr, für Sie reserviertes, Segel-/ Elektro- oder Tretboot! 


Das Projekt wird auf einen Baurechtsgrund erbaut. Die monatliche Pacht wird über die Betriebskosten abgerechnet und beläuft sich auf 99 Jahre.


Der angeführte Verkaufspreis € 402.000,- ist der netto Anlegerpreis. Der Preis der Wohnung zur Eigennutzung beträgt € 429.000,-.



Der Verkauf erfolgt provisionsfrei. 



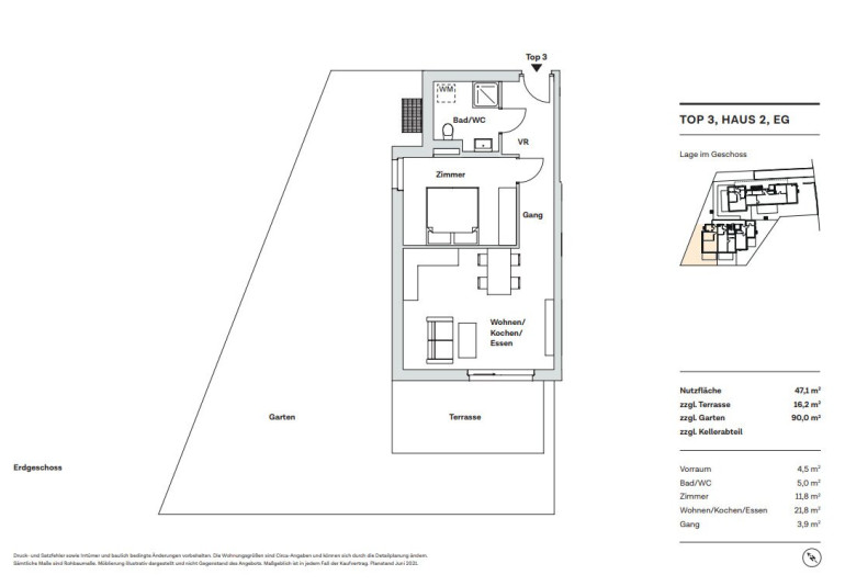
Raumaufteilung

Vorraum, Wohnküche (21,80 m²), Zimmer (11,80 m²), Badezimmer mit Dusche und WC, Terrasse (16,20 m²), Garten (ca. 90 m²), Keller



Ausstattung
Parkettböden aus gebürsteter Eiche in allen Wohnräumen, Verfliesungen im Bad und WC mit hervorragendem Feinsteinzeug. Die Badewannen, Waschbecken, WCs und die zugehörigen Armaturen sind von den jeweils besten Produzenten am Markt. Und natürlich sind alle Apartments optimal auf die Erfordernisse unseres modernen Medienalltags vorbereitet; Medienverteiler für Telefon- und TV-Anschlüsse sowie intelligente Leerverrohrungen zum späteren Nachrüsten inklusive. Alles einfach edel. 



Lage
Modernes Leben in der Donaustadt. Optimale Verkehrsanbindung (Bus, Tram, U-Bahn, Straße), sorgen für kurze Wege zu Wiens größtem Shopping- und Entertainmentcenter, dem DZ-Donauzentrum, zum Vienna International Center oder zum nächsten Diskonter, Schulen, Kindergärten, Postamt, Ärzte und Apotheke in unmittelbarer Nähe machen das Leben hier easy. Alles, was man zum modernen Wohnen braucht, ist hier nicht mehr als ein paar hundert Meter entfernt. 



Für Besichtigungen und nähere Informationen stehen wir Ihnen gerne zur Verfügung!



Hr. Baris Basaran

tel: +43 699 1522 4635


Wir weisen darauf hin, dass zwischen dem Vermittler und dem zu vermittelnden Dritten ein familiäres oder wirtschaftliches Naheverhältnis besteht.


Der Vermittler ist als Doppelmakler tätig.

Infrastruktur / Entfernungen

Gesundheit
Arzt <500m
Apotheke <1.000m
Klinik <2.000m
Krankenhaus <3.000m

Kinder & Schulen
Schule <1.000m
Kindergarten <1.000m
Universität <2.500m
Höhere Schule <2.000m

Nahversorgung
Supermarkt <500m
Bäckerei <1.000m
Einkaufszentrum <1.000m

Sonstige
Geldautomat <1.000m
Bank <1.000m
Post <1.000m
Polizei <1.000m

Verkehr
Bus <500m
U-Bahn <1.000m
Straßenbahn <500m
Bahnhof <1.000m
Autobahnanschluss <2.000m

Angaben Entfernung Luftlinie / Quelle: OpenStreetMap

Eckdaten Objektnr. 711

Art: Wohnung
Land: Österreich
Baujahr: 2023
Zustand: Erstbezug
Alter: Neubau
Kaufpreis: 402.000,00
Betriebskosten: 138,90 €
MwSt Gesamt: 13,89 €
Wohnfläche: 47,43 m²
Zimmer: 2
Bäder: 1
WC: 1
Terrassen: 1
Garten: 93,02 m²
Heizwärmebedarf:  B  39,00 kWh/m²a
fGEE:  A+  0,70
Immobilie merken Exposé

Ausstattung

Parkett, Fliesen, Fußbodenheizung, Wohnküche / offene Küche, Personenaufzug, Dusche, Kabel/Satelliten-TV


Immobilie anfragen


Ihre persönliche Beratung

BARLEY'S Real Estate & Relocation

Baris Basaran

BARLEY'S Real Estate & Relocation

T +43 1 382 00 24

H +43 699 15 22 46 35

F +43 1 382 00 24-11