Modernes Maisonette-Juwel mit Terrasse im 3. Bezirk – Tischlerküche, 2 Bäder & Klimaanlage

Wohnung - Maisonette, 1030 Wien


Die Würtzlerstraße liegt in einer der begehrtesten Wohngegenden des 3. Bezirks, Landstraße – ruhig, aber dennoch zentral. In unmittelbarer Nähe befinden sich der Rochusmarkt, die Landstraßer Hauptstraße mit ihren zahlreichen Einkaufsmöglichkeiten, sowie das Galleria Einkaufszentrum. Zahlreiche Parks, Cafés und Restaurants machen die Umgebung besonders lebenswert.

Beschreibung der Immobilie

Modernes Maisonette-Juwel mit Terrasse im 3. Bezirk – Tischlerküche, 2 Bäder & Klimaanlage

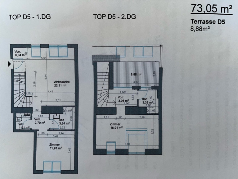
Stilvoll wohnen über den Dächern des 3. Bezirks – diese elegante Maisonettewohnung im Dachgeschoss eines gepflegten Altbaus in der Würtzlerstraße vereint klassischen Charme mit modernem Wohnkomfort. Mit einer Wohnfläche von ca. 73 m² und einer sonnigen Terrasse von ca. 9 m² bietet sie ein modernes Wohngefühl auf zwei Etagen – perfekt für Paare oder kleine Familien, die Wert auf Komfort, Design und urbane Lebensqualität legen.





Die Wohnung verfügt über drei Zimmerzwei Bäder (ein Badezimmer mit Dusche und WC, ein weiteres Bad mit Dusche und separatem WC), sowie einen großzügigen Wohn-Essbereich mit offener Küche.

Ein besonderes Highlight ist die hochwertige Ausstattung:




  • Voll möbliert inklusive Weinkühlschrank und einer Tischlerküche (Wert ca. € 33.000,-)



  • Grill Napoleon mit direktem Gasanschluss



  • Klimaanlage in jedem Zimmer



  • Terrasse mit Stadtblick



  • Fußbodenheizung (Gastherme)



  • Echtholz-Parkettböden



  • Lift bis ins Dachgeschoss



  • Praktische Speisekammer / Abstellraum






Heiz- und Strom- und Gaskosten werden separat verrechnet.



Heizkosten inkl. Strom und Gas sind derzeit ca. 120 €.



Haustiere sind nicht erwünscht.



Die Wohnung befindet sich in neuwertigem Zustand – einziehen und wohlfühlen!





Anbindungen:




  • U3-Station Schlachthausgasse – ca. 2 Minuten zu Fuß



  • Straßenbahnlinien O,18 und 71 sowie Bus 4A in direkter Nähe



  • Mit dem Auto erreicht man in ca. 15 Minuten sowohl die Innenstadt als auch die A4 (Schnellstraße Richtung Flughafen).



  • und an die A23 (Südosttangente) ideal für Pendler und Vielfahrer.





Sollten Sie Fragen haben oder eine Besichtigung wünschen, ist Herr Artjom Zakaryan von ZAKARYAN & PARTNER (www.zakaryan.at) gerne für Sie unter +43 676 496 3419 oder zp@zakaryan.at auch am Wochenende erreichbar. Das Objekt wurde von uns nicht vermessen, alle Maßangaben beruhen auf Angaben des Eigentümers.




Verbraucherrecht



In Entsprechung des FAGG (Fern- und Auswärtsgeschäfte-Gesetz) und des VRUG (Verbraucherrechte-Richtlinie-Umsetzungsgesetz) ist es uns leider nur mehr möglich Termine nach Erhalt einer schriftlichen Anfrage mit vollständigen Kontaktangaben (Kontaktformular) zu vereinbaren, dies gilt ebenso für die Herausgabe relevanter Informationen wie z.B. der Lage. Sehr gerne sind wir auf diesem Wege bereit, uns um sämtliche Anliegen rasch und kompetent zu kümmern.




Der Immobilienmakler erklärt, dass er – entgegen dem in der Immobilienwirtschaft üblichen Geschäftsgebrauch des Doppelmaklers – einseitig nur für den Vermieter tätig ist.

Infrastruktur / Entfernungen

Gesundheit
Arzt <500m
Apotheke <500m
Klinik <1.000m
Krankenhaus <1.000m

Kinder & Schulen
Schule <500m
Kindergarten <500m
Universität <500m
Höhere Schule <1.000m

Nahversorgung
Supermarkt <500m
Bäckerei <500m
Einkaufszentrum <1.000m

Sonstige
Geldautomat <1.000m
Bank <500m
Post <1.000m
Polizei <500m

Verkehr
Bus <500m
U-Bahn <500m
Straßenbahn <500m
Bahnhof <500m
Autobahnanschluss <500m

Angaben Entfernung Luftlinie / Quelle: OpenStreetMap

Eckdaten Objektnr. 6132

Art: Wohnung - Maisonette
Land: Österreich
Baujahr: 2017
Zustand: Neuwertig
Möbliert: Voll
Alter: Altbau
Gesamtmiete: 2.500,00
Kaltmiete (netto): 2.310,79 €
Kaltmiete: 2.482,80 €
Provision: Gemäß Erstauftraggeberprinzip bezahlt der Abgeber die Provision.
Betriebskosten: 157,57 €
MwSt Gesamt: 17,20 €
Wohnfläche: 73,05 m²
Zimmer: 3
Bäder: 2
WC: 2
Terrassen: 1
Heizwärmebedarf:  D  139,12 kWh/m²a
fGEE:  C  1,40
Immobilie merken Exposé

Ausstattung

Fliesen, Parkett, Gas, Fußbodenheizung, Einbauküche, Personenaufzug


Immobilie anfragen


Ihre persönliche Beratung

ZAKARYAN & PARTNER

Artjom Zakaryan

ZAKARYAN & PARTNER

T +43 676 4963419

H +43 676 9191191