ERSTBEZUG „ein viertel grün“ in Wiener Neustadt - 3-Zimmer-Wohntraum mit Balkon und Top-Ausstattung

Wohnung , 2700 Wiener Neustadt , Stadionstraße


Mitten im Grünen und doch mitten im Leben: Das Wohnprojekt „ein viertel grün“ vereint modernen Wohnkomfort mit einer erstklassigen Lage – direkt gegenüber der Merkurcity in Wiener Neustadt. Hier treffen Ruhe, Natur und Stadtleben aufeinander – und schaffen einen Wohnraum, der keine Wünsche offen lässt. In diesem neuen Stadtquartier finden Sie das passende Zuhause: mit gut durchdachten Grundrissen, großzügigen Freiflächen. Die ausgezeichnete Lage macht Ihren Alltag leichter. Das Stadtzentrum, der Bahnhof sowie die Autobahn A2 sind in wenigen Minuten erreichbar. Zahlreiche Nahversorger, Schulen, Kindergärten und medizinische Einrichtungen befinden sich in unmittelbarer Nähe. Die Merkurcity direkt gegenüber sorgt für kurze Wege beim Einkaufen. Die zweitgrößte Stadt Niederösterreichs bietet nicht nur hervorragende Infrastruktur, sondern auch ein breites Freizeit- und Kulturangebot wie vielfältige Gastronomie, regelmäßige Veranstaltungen, Konzerte und Ausstellungen.

Beschreibung der Immobilie

ERSTBEZUG „ein viertel grün“ in Wiener Neustadt - 3-Zimmer-Wohntraum mit Balkon und Top-Ausstattung

Willkommen in Ihrem neuen Zuhause in Wiener Neustadt!



In unserem neuen Wohnquartier trifft modernes Wohnen auf naturnahe Umgebung – ideal für junge Familien, Paare sowie Einzelpersonen die Wert auf Lebensqualität, Gemeinschaft und Nachhaltigkeit legen.



Das Projekt bietet besten Wohnkomfort für Familien, direkt im Quartier befindet sich ein moderner Kindergarten. Hier werden Ihre Kleinen optimal betreut - und das ganz in Ihrer Nähe Ihres Wohnortes. 



Nach dem Kindergarten können sich die Kinder noch auf den diversen Spiel- und Bewegungsmöglichkeiten austoben, welche sich über das gesamte Areal erstrecken. 



Ein eigener Quartierstreff sorgt für regen Austausch unter Nachbarn und lässt garantiert neue Freundschaften bei Groß und Klein entstehen. 



Das gesamte Areal ist verkehrsberuhigt und umgeben von Grünflächen. Sie müssen jedoch aufgrund der hervorragenden Lage nicht auf die Annehmlichkeiten der Stadt verzichten. 



Diverse Geschäfte des täglichen Bedarfs befinden sich in unmittelbarer Nähe und sind fußläufig erreichbar (Merkur City).



Hier die Details zu unserem Projekt im Überblick:



  • 42 geförderte Mietwohnungen
  • 2 - 4 Zimmer, ca. 51 m² - 89 m²
  • Jede Wohnung mit Eigengarten und Terrasse, Balkon oder Dachterrasse 
  • hochwertige Laminatböden
  • gut durchdachte Grundrisse
  • Tiefgaragenstellplatz, bereits in der Miete inkludiert
  • Fahrrad- und Kinderwagenräume
  • Einlagerungsräume
  • Personenaufzug
  • Müllraum
  • effiziente Photovoltaikanlage am Dach
  • kontrollierte Wohnraumlüftung mit Wärmerückgewinnung und zentraler Lüftungsanlage
  • HWB Wert ca. 26,26 kWh/m²a, fGEE ca. 0,63
  • Fertigstellung voraussichtlich Frühjahr 2026


Anm.: Die winterlichen Bilder wurden mittels KI erstellt.

Willkommen in Ihrem neuen Zuhause!



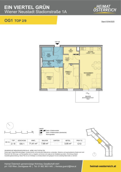
Diese moderne 3-Zimmer-Wohnung im 1. Obergeschoss bietet Ihnen nicht nur eine durchdachte Raumaufteilung auf ca. 71m² Wohnfläche, sondern auch einen herrlichen Balkon mit 7,80 m², auf dem Sie entspannte Stunden genießen können.



Seien Sie der Erste, der in diese hochwertige Wohnung einzieht und die Vorzüge eines neu gestalteten Wohnraums erlebt!



Der praktische Grundriss ermöglicht eine optimale Nutzung: Ob komfortables Wohnzimmer, ruhiges Schlafzimmer oder vielseitiges Arbeits- oder Kinderzimmer – hier findet jeder seinen persönlichen Rückzugsort. 



Ein Schlafzimmer ist direkt vom Vorraum aus begehbar. Das zweite Schlaf- bzw. Kinderzimmer erreicht man zentral über einen Flur vom Vor- und vom Wohnzimmer aus.



Das großzügige Wohnzimmer geht nahtlos in den offenen Küchenbereich über. Von hier aus haben Sie Zugang zum Balkon – perfekt für ein Frühstück im Freien oder einen entspannten Tagesausklang.



Das Badezimmer ist modern verfliest und mit einer Badewanne ausgestattet. Zusätzlich befinden sich ein Handwaschbecken sowie ein Waschmaschinenanschluss im Badezimmer. Das WC ist separat und ebenfalls modern verfliest.



Ein Tiefgaragenstellplatz ist bereits in der Miete inkludiert – Ihr Fahrzeug ist somit bestens untergebracht. Das Kellerabteil bietet zusätzlichen Stauraum.



Befristung: unbefristet, 1 Jahr Kündigungsverzicht, 3 Monate Kündigungsfrist

Bezug: voraussichtlich Frühjahr 2026

Energiekennzahlen: Heizwärmebedarf ca. 26,26 kWh/m²a (Klasse B), Gesamtenergieeffizienz-Faktor ca. 0,63 (Klasse A+)




Miete: monatlich € 933,78 inkl. Betriebskosten und USt.

Finanzierungsbeitrag (einmalig): € 24.993,50




Lassen Sie sich diese Chance nicht entgehen und erleben Sie selbst, was es bedeutet, in dieser wunderbaren Wohnung zu leben!





Hier geht es zu weiteren Mietwohnungen:
Geförderte Mietwohnungen - ein viertel grün



Anm.: Die winterlichen Bilder wurden mittels KI erstellt.

Noch nichts gefunden? Wir informieren Sie über geeignete Immobilienangebote noch vor allen anderen.
Legen Sie jetzt Ihren individuellen Suchagenten unter folgendem Link an. Wir schicken Ihnen passende Immobilien exklusiv vorab zu.
Suchagent anlegen - https://heimat-oesterreich.service.immo/registrieren/de


Der Immobilienmakler erklärt, dass er – entgegen dem in der Immobilienwirtschaft üblichen Geschäftsgebrauch des Doppelmaklers – einseitig nur für den Vermieter tätig ist.

Infrastruktur / Entfernungen

Gesundheit
Arzt <1.000m
Apotheke <250m
Klinik <2.500m
Krankenhaus <1.250m

Kinder & Schulen
Schule <250m
Kindergarten <500m
Höhere Schule <1.750m
Universität <2.000m

Nahversorgung
Supermarkt <500m
Bäckerei <750m
Einkaufszentrum <250m

Sonstige
Bank <750m
Geldautomat <750m
Post <750m
Polizei <750m

Verkehr
Bus <250m
Autobahnanschluss <3.000m
Bahnhof <1.500m
Flughafen <2.250m

Angaben Entfernung Luftlinie / Quelle: OpenStreetMap

Eckdaten Objektnr. 4949

Art: Wohnung
Land: Österreich
Baujahr: 2025
Zustand: Erstbezug
Alter: Neubau
Gesamtmiete: 933,78
Kaltmiete (netto): 933,78 €
Kaltmiete: 933,78 €
Provision: Gemäß Erstauftraggeberprinzip bezahlt der Abgeber die Provision.
Wohnfläche: 71,41 m²
Zimmer: 3
Bäder: 1
WC: 1
Balkone: 1
Stellplätze: 1
Keller: 3,00 m²
Heizwärmebedarf:  B  26,26 kWh/m²a
fGEE:  A+  0,63
Immobilie merken Exposé

Ausstattung

Fliesen, Laminatboden, Solarenergie, Personenaufzug, Badewanne, Tiefgarage


Immobilie anfragen


Ihre persönliche Beratung

Theresa Günzl

Heimat Österreich gemeinnützige Wohnungs- und Siedlungsgesellschaft m.b.H.

T +431 9823601 645

H 0676 3717805