Erstbezug "ein viertel grün" - Neubau trifft Lebensqualität – 3-Zimmer-Wohnung mit Balkon in Wiener Neustadt

Wohnung , 2700 Wiener Neustadt , Stadionstraße


Mitten im Grünen und doch mitten im Leben: Das Wohnprojekt „ein viertel grün“ vereint modernen Wohnkomfort mit einer erstklassigen Lage – direkt gegenüber der Merkurcity in Wiener Neustadt. Hier treffen Ruhe, Natur und Stadtleben aufeinander – und schaffen einen Wohnraum, der keine Wünsche offen lässt. In diesem neuen Stadtquartier finden Sie das passende Zuhause: mit gut durchdachten Grundrissen, großzügigen Freiflächen. Die ausgezeichnete Lage macht Ihren Alltag leichter. Das Stadtzentrum, der Bahnhof sowie die Autobahn A2 sind in wenigen Minuten erreichbar. Zahlreiche Nahversorger, Schulen, Kindergärten und medizinische Einrichtungen befinden sich in unmittelbarer Nähe. Die Merkurcity direkt gegenüber sorgt für kurze Wege beim Einkaufen. Die zweitgrößte Stadt Niederösterreichs bietet nicht nur hervorragende Infrastruktur, sondern auch ein breites Freizeit- und Kulturangebot wie vielfältige Gastronomie, regelmäßige Veranstaltungen, Konzerte und Ausstellungen.

Beschreibung der Immobilie

Erstbezug "ein viertel grün" - Neubau trifft Lebensqualität – 3-Zimmer-Wohnung mit Balkon in Wiener Neustadt

Willkommen in Ihrem neuen Zuhause in Wiener Neustadt!



In unserem neuen Wohnquartier trifft modernes Wohnen auf naturnahe Umgebung – ideal für junge Familien, Paare sowie Einzelpersonen die Wert auf Lebensqualität, Gemeinschaft und Nachhaltigkeit legen.



Das Projekt bietet besten Wohnkomfort für Familien, direkt im Quartier befindet sich ein moderner Kindergarten. Hier werden Ihre Kleinen optimal betreut - und das ganz in Ihrer Nähe Ihres Wohnortes. 



Nach dem Kindergarten können sich die Kinder noch auf den diversen Spiel- und Bewegungsmöglichkeiten austoben, welche sich über das gesamte Areal erstrecken. 



Ein eigener Quartierstreff sorgt für regen Austausch unter Nachbarn und lässt garantiert neue Freundschaften bei Groß und Klein entstehen. 



Das gesamte Areal ist verkehrsberuhigt und umgeben von Grünflächen. Sie müssen jedoch aufgrund der hervorragenden Lage nicht auf die Annehmlichkeiten der Stadt verzichten. 



Diverse Geschäfte des täglichen Bedarfs befinden sich in unmittelbarer Nähe und sind fußläufig erreichbar (Merkur City).



Hier die Details zu unserem Projekt im Überblick:



  • 42 geförderte Mietwohnungen
  • 2 - 4 Zimmer, ca. 51 m² - 89 m²
  • Jede Wohnung mit Eigengarten und Terrasse, Balkon oder Dachterrasse 
  • hochwertige Laminatböden
  • gut durchdachte Grundrisse
  • Tiefgaragenstellplatz, bereits in der Miete inkludiert
  • Fahrrad- und Kinderwagenräume
  • Einlagerungsräume
  • Personenaufzug
  • Müllraum
  • effiziente Photovoltaikanlage am Dach
  • kontrollierte Wohnraumlüftung mit Wärmerückgewinnung und zentraler Lüftungsanlage
  • HWB Wert ca. 26,26 kWh/m²a, fGEE ca. 0,63
  • Fertigstellung voraussichtlich Frühjahr 2026


Anm.: Die winterlichen Bilder wurden mittels KI erstellt.

Willkommen in Ihrem neuen Zuhause!




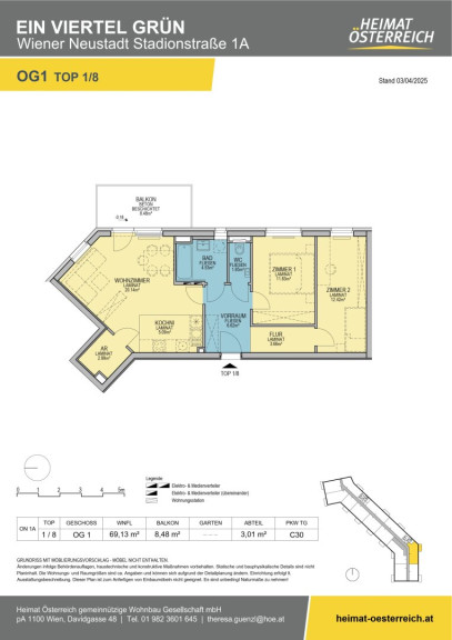
Diese moderne 3-Zimmer-Wohnung im 1. Obergeschoss bietet Ihnen die ideale Kombination aus zeitgemäßem Wohnkomfort und hoher Lebensqualität.



Auf rund 69,13 m² Wohnfläche haben Sie ausreichend Platz, um Ihre Wohnideen zu verwirklichen – ganz gleich, ob Sie ein stilvolles Zuhause zu zweit oder ein gemütliches Familiendomizil suchen. Der Erstbezug ermöglicht Ihnen ein Wohnen in frischer, moderner Atmosphäre.



Das großzügige Wohnzimmer schafft einen offenen und hellen Wohnbereich, in den sich die Kochnische harmonisch einfügt. Von hier aus gelangen Sie direkt auf den ca. 8,48 m² großen Balkon – perfekt für entspannte Stunden im Freien oder ein Frühstück an der Sonne.



Das Badezimmer ist zeitlos-modern verfliest und mit einer Badewanne, einem Handwaschbecken sowie einem Waschmaschinenanschluss ausgestattet. Das separate WC befindet sich gleich nebenan und ist ebenfalls modern gestaltet.



Mit einem Tiefgaragenstellplatz ist bestens für Ihren PKW gesorgt. Der Stellplatz ist bereits in der Miete inkludiert!



Befristung: unbefristet, 1 Jahr Kündigungsverzicht, 3 Monate Kündigungsfrist

Bezug: voraussichtlich Frühjahr 2026

Energiekennzahlen: Heizwärmebedarf ca. 26,26 kWh/m²a (Klasse B), Gesamtenergieeffizienz-Faktor ca. 0,63 (Klasse A+)



Monatliche Miete: € 903,97 (inkl. Betriebskosten und USt)

Einmaliger Finanzierungsbeitrag: € 24.195,50



Nutzen Sie diese Gelegenheit und sichern Sie sich Ihre Neubauwohnung in Toplage von Wiener Neustadt!



Hier geht es zu weiteren Mietwohnungen:
Geförderte Mietwohnungen - ein viertel grün



Anm.: Die winterlichen Bilder wurden mittels KI erstellt.

Noch nichts gefunden? Wir informieren Sie über geeignete Immobilienangebote noch vor allen anderen.
Legen Sie jetzt Ihren individuellen Suchagenten unter folgendem Link an. Wir schicken Ihnen passende Immobilien exklusiv vorab zu.
Suchagent anlegen - https://heimat-oesterreich.service.immo/registrieren/de


Der Immobilienmakler erklärt, dass er – entgegen dem in der Immobilienwirtschaft üblichen Geschäftsgebrauch des Doppelmaklers – einseitig nur für den Vermieter tätig ist.

Infrastruktur / Entfernungen

Gesundheit
Arzt <1.000m
Apotheke <250m
Klinik <2.500m
Krankenhaus <1.250m

Kinder & Schulen
Schule <250m
Kindergarten <500m
Höhere Schule <1.750m
Universität <2.000m

Nahversorgung
Supermarkt <500m
Bäckerei <750m
Einkaufszentrum <250m

Sonstige
Bank <750m
Geldautomat <750m
Post <750m
Polizei <750m

Verkehr
Bus <250m
Autobahnanschluss <3.000m
Bahnhof <1.500m
Flughafen <2.250m

Angaben Entfernung Luftlinie / Quelle: OpenStreetMap

Eckdaten Objektnr. 4958

Art: Wohnung
Land: Österreich
Baujahr: 2025
Zustand: Erstbezug
Alter: Neubau
Gesamtmiete: 903,97
Kaltmiete (netto): 903,97 €
Kaltmiete: 903,97 €
Provision: Gemäß Erstauftraggeberprinzip bezahlt der Abgeber die Provision.
Wohnfläche: 69,13 m²
Zimmer: 3
Bäder: 1
WC: 1
Balkone: 1
Stellplätze: 1
Keller: 3,01 m²
Heizwärmebedarf:  B  26,26 kWh/m²a
fGEE:  A+  0,63
Immobilie merken Exposé

Ausstattung

Fliesen, Laminatboden, Solarenergie, Personenaufzug, Badewanne, Tiefgarage


Immobilie anfragen


Ihre persönliche Beratung

Theresa Günzl

Heimat Österreich gemeinnützige Wohnungs- und Siedlungsgesellschaft m.b.H.

T +431 9823601 645

H 0676 3717805