+ + + NÄHE LANDESGERICHT + + + ERSTBEZUG nach Sanierung + + +

Büro / Praxis , 1080 Wien


Beschreibung der Immobilie

+ + + NÄHE LANDESGERICHT + + + ERSTBEZUG nach Sanierung + + +

Objekt und Lage:



Das Gründerzeithaus befindet sich an der Ecke Alser Straße, in einer belebten, aber charmanten Stadtlage des 8. Wiener Gemeindebezirks.



Unmittelbar nebenan dem Landesgericht für Strafsachen Wien gelegen, bietet die Adresse ein repräsentatives Umfeld mit perfekter Infrastruktur.



Zahlreiche Lokale, Cafés , Geschäfte und kulturelle Einrichtungen befinden sich in direkter Umgebung. 



Im Erdgeschoß des Hauses befindet sich das beliebte Café und Restaurant EDISON, das mit seiner modernen Atmosphäre und großen Terrasse für zusätzliche Belebung und urbanes Flair sorgt. 



Das repräsentative Altbaubüro mit Wiener Altbauflair, befindet sich absoluter in Toplage der Josefstadt und ist bestens für anspruchsvolle Unternehmen geeignet. 





Die Betriebskosten verstehen sich als zirka-Angaben.





Mietvertragslaufzeit: befristet, 5 bis 10 Jahre Laufzeit (3 bis 5 Jahre Kündigungsverzicht)



Kaution: 3 bis 6 Bruttomonatsmieten je nach Bonität 



Provision: 3 Bruttomonatsmieten





Gesamtmiete: € 6.700,00 inkl. BK und Ust.





Ausstattung: dzt. noch in Sanierung (ab Dezember bezugsfertig), Besichtigungen können stattfinden



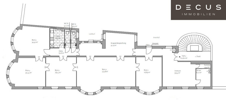
  • öffenbare Fenster
  • Besprechungszone
  • 6 zentral begehbare Räume 
  • SR/AR
  • Parkettboden
  • eingerichtete Teeküche
  • helle, hohe Räume
  • getrennte Sanitäreinheiten
  • Fensterbankkanäle
  • CAT 7 Verkabelung
  • Kühlung via Splitgeräte
  • Personenlift 




Energieausweis liegt vor:



Heizwärmebedarf: 131kWh/m².a





Verkehrsanbindung:



U2 Station: Rathaus (7 Gehminuten), U6 Station: Alser Straße (10 Gehminuten), Straßenbahnlinie 43 und 44 (150 m entfernt), Autobus Linie 13 A (250 m entfernt)





Alle Preisangaben verstehen sich zzgl. der gesetzl. Ust.



Alle Angaben ohne Gewähr, Irrtümer und Änderungen vorbehalten.


Wir weisen darauf hin, dass zwischen dem Vermittler und dem zu vermittelnden Dritten ein familiäres oder wirtschaftliches Naheverhältnis besteht.


Der Vermittler ist als Doppelmakler tätig.

DECUS Immobilien GmbH – Wir beleben Räume

Für weitere Informationen und Besichtigungen steht Ihnen gerne Frau  Sonja Macho unter der Mobilnummer +43 664 44 53 56 1und per E-Mail unter macho@decus.at persönlich zur Verfügung.

www.decus.at | office@decus.at 

Wichtige Informationen

Bitte beachten Sie, dass per 13.06.2014 eine neue Richtlinie für Fernabsatz- und Auswärtsgeschäfte in Kraft getreten ist.

Ab 1.4.2024 entfallen die Grundbuchs- und Pfandrechtseintragungsgebühren vorübergehend für Eigenheime bis zu einer Bemessungsgrundlage von EUR 500.000,-. Voraussetzung ist das dringende Wohnbedürfnis, ausgenommen davon sind vererbte oder geschenkte Immobilien. Die Befreiung ist jedoch für den Einzelfall zu prüfen, DECUS Immobilien übernimmt hierzu keine Haftung.

Ab 01.07.2023 gilt das Erstauftraggeber-Prinzip bei Wohnungsmietverträgen, ausgenommen davon sind Dienst-/Natural-/Werkswohnungen. Wir dürfen gem. § 17 Maklergesetz darauf hinweisen, dass wir auf die Doppelmaklertätigkeit gem. § 5 Maklergesetz bei Wohnungsmietverträgen verzichten und nur noch einseitig tätig sind (bei den restlichen Vermittlungsarten nicht) und ein wirtschaftliches Naheverhältnis zu unseren Auftraggebern besteht. 

Im Falle eines Abschlusses mit Ihnen oder einem von Ihnen namhaft gemachten Dritten bzw. bei beidseitiger Willensübereinstimmung beträgt unser Honorar (lt. Honorarverordnung für Immobilienmakler) 2 Bruttomonatsmieten (BMM) bei Dienst-/Natural-/Werkwohnungen sowie Suchaufträgen, 3 BMM bei Gewerbe-, PKW- und Lagermietverträgen sowie bei Kaufobjekten 3 % des Kaufpreises, zuzüglich der gesetzlichen Umsatzsteuer.

Dieses Objekt wird Ihnen unverbindlich und freibleibend angeboten. Oben angeführte Angaben basieren auf Informationen und Unterlagen des Eigentümers und sind unsererseits ohne Gewähr.

Nähere Informationen sowie unsere AGBs und die Nebenkostenübersichtsblatt finden Sie auf unserer Homepage www.decus.at unter "Service" - "Rechtliches zum FAGG" sowie im Anhang der zugesendeten Objekt-Exposés!

Infrastruktur / Entfernungen

Gesundheit
Arzt <500m
Apotheke <500m
Klinik <500m
Krankenhaus <1.000m

Kinder & Schulen
Schule <500m
Kindergarten <500m
Universität <500m
Höhere Schule <500m

Nahversorgung
Supermarkt <500m
Bäckerei <500m
Einkaufszentrum <2.000m

Sonstige
Geldautomat <500m
Bank <500m
Post <500m
Polizei <500m

Verkehr
Bus <500m
U-Bahn <500m
Straßenbahn <500m
Bahnhof <500m
Autobahnanschluss <3.000m

Angaben Entfernung Luftlinie / Quelle: OpenStreetMap

Verfügbare Flächen

Stiege/Bauteil 0


Stockwerk
Top
Art
Fläche
Terrasse
Nettomiete/m²
BK/m²

1. Etage
-
Büro / Praxis
272,62 m2
-
18,40 €
2,08 €

verfügbare flächen

Stiege/Bauteil 0

Stockwerk
Top
Art
Fläche
Teilbar ab
Terrasse
Nettomiete/m2 von-bis
BK/m2
1. Etage
-
Büro / Praxis
272,62 m2
-
-
18,40 - 18,40 €
2,08 €

Eckdaten Objektnr. 1151495

Art: Büro / Praxis
Land: Österreich
Baujahr: 1914
Alter: Altbau
Kaltmiete (netto): 5.016,21 €
Kaltmiete: 5.583,26 €
Miete / m²: 18,40 €
Betriebskosten: 567,05 €
Nutzfläche: 272,62 m²
Heizwärmebedarf: 131,00 kWh/m²a
Immobilie merken Exposé

Immobilie anfragen


Ihre persönliche Beratung

DECUS Immobilien GmbH

Sonja Macho

DECUS Immobilien GmbH

T +43 664 44 53 56 1

H +43 664 44 53 56 1

F +43 1 35 600 10