SPITZE! LAGE LAGE LAGE! DIREKT AM HAUPTPLATZ! ERSTBEZUG! SMARTE GEWERBEFLÄCHE!

Büro / Praxis , 8330 Feldbach


Im Stadtzentrum von Feldbach entstehen brandneue Gewerbeflächen. Durch die zentrale Lage profitieren Sie durch die Hochfrequenz und Sichtbarkeit. Ebenso bietet die Top-Anbindung des Busbahnhofes Feldbach, welcher nur 150m zum Bahnhof in Feldbach entfernt ist. Auch die B57 und B66 befinden sich in einem Umkreis von 2km! Des Weiteren sind ein Lebensmittelgeschäft, eine Bank sowie Post fußläufig erreichbar.

Beschreibung der Immobilie

SPITZE! LAGE LAGE LAGE! DIREKT AM HAUPTPLATZ! ERSTBEZUG! SMARTE GEWERBEFLÄCHE!

SPITZE! LAGE LAGE LAGE! DIREKT AM HAUPTPLATZ! ERSTBEZUG! SMARTE GEWERBEFLÄCHE!



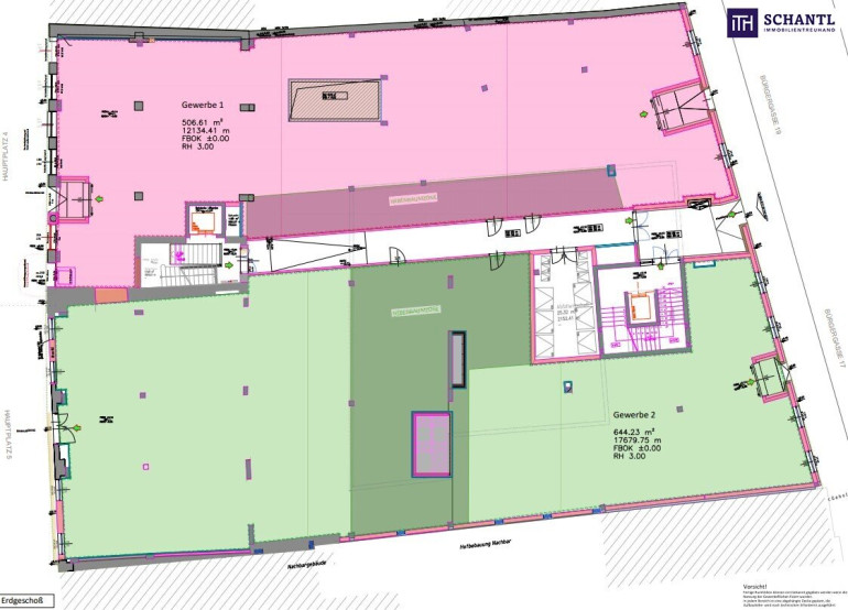
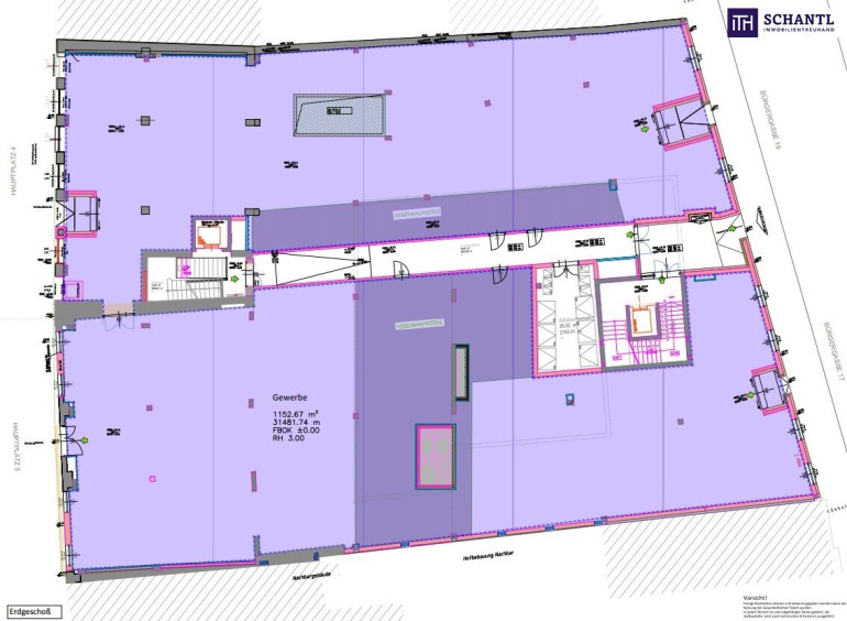
Im Feldbacher Stadtzentrum stehen rund 1.130 m² repräsentative Gewerbeflächen im Erdgeschoß zur Vermietung. Die zentrale Lage und Infrastruktur wird Sie begeistern! 



Eine hervorragende Sichtbarkeit und hohe Frequenz garantieren die besten Voraussetzungen für eine Vielzahl von Unternehmenskonzepten!Die Top-Ausstattung punktet unter anderem mit einer Klimaanlage und Fußbodenheizung. Die Ausführung kann auf Ihr persönliches Raumkonzept angepasst werden. Diese geniale Einrichtung ermöglicht reduzierte Betriebs- und Heizkosten, die sich auf gesamt nur EUR 2,60/m² netto belaufen.



Der Mietzins der Nutzfläche hält sich bei niedrigen EUR 12,50/m² netto inkl. Wunschboden. Die Übergabe ist mit oder ohne Estrich und Bodenbelag möglich. Sanitäranlagen sind an vier Stellen möglich - die Ausführung folgt nach Wunsch des Kunden - so können Sie die Einrichtung selbst bestimmen! Ausreichend Kundenparkplätze stehen Ihnen direkt vor der Türe am Hauptplatz zur Verfügung.  

 



FACTS



  • Rund 1.130m² Nutzfläche, in vier Einheiten teilbar
  • 4 Eingänge mit automatisch öffnenden Glasschiebetüren
  • Mietpreis € 12,50/m² netto inkl. Wunschboden
  • niedrige Betriebskosten € 1,50/m² netto
  • geringe Heizkosten € 1,1/m² netto
  • Hohe Geschäftsräume mit rund 3,5m Raumhöhe
  • 5 Mitarbeiterparkplätze um je € 25,- netto p. M. zugehörig 




HIGHLIGHTS



  • Hochfrequenzlage
  • Zentrum
  • Beste Sichtbarkeit
  • Erstbezug
  • E-Tankstelle vor der Türe
  • ausreichend Parkplätze 
  • Raum zur Selbstgestaltung
  • hochwertige Ausstattung
  • kurzfristig verfügbar
  • provisionsfrei

     


Worauf noch warten?



Vereinbaren Sie noch heute eine Besichtigung oder eine persönliche Beratung mit uns!



Sie wollen Ihre Immobilie verkaufen? Dann sind Sie bei uns goldrichtig!

Wir sind gerne für Sie da und unterstützen Sie unverbindlich bei der Bewertung Ihrer Immobilie. Mit viel Sorgfalt stellen wir Ihnen alle wichtigen Informationen und Unterlagen zusammen, damit Sie die besten Entscheidungen treffen können.



In Kooperation mit unserer SFI Vermögenstreuhand begleiten wir Sie bei der Verwirklichung Ihres Traumobjekts und unterstützen Sie beim nachhaltigen Vermögensaufbau. Mit unseren erfahrenen Experten sorgen wir dafür, dass Sie die besten Konditionen erhalten – damit Ihre Träume Wirklichkeit werden!



http://www.schantl-ith.at in Kooperation mit www.sfi-invest.com 



Die Angaben über das angebotene Objekt erfolgen mit der Sorgfalt eines ordentlichen Immobilienmaklers; für die Richtigkeit solcher Angaben, die auf Informationen der über das Objekt Verfügungsberechtigten beruhen, wird keine Gewähr geleistet!




Hinweis gemäß Energieausweisvorlagegesetz: Ein Energieausweis wurde vom Eigentümer bzw. Verkäufer, nach unserer Aufklärung über die generell geltende Vorlagepflicht, sowie Aufforderung zu seiner Erstellung noch nicht vorgelegt. Daher gilt zumindest eine dem Alter und der Art des Gebäudes entsprechende Gesamtenergieeffizienz als vereinbart. Wir übernehmen keinerlei Gewähr oder Haftung für die tatsächliche Energieeffizienz der angebotenen Immobilie.


Wir weisen darauf hin, dass zwischen dem Vermittler und dem zu vermittelnden Dritten ein familiäres oder wirtschaftliches Naheverhältnis besteht.


Der Vermittler ist als Doppelmakler tätig.

Infrastruktur / Entfernungen

Gesundheit
Arzt <500m
Apotheke <500m
Klinik <9.000m
Krankenhaus <1.000m

Kinder & Schulen
Schule <500m
Kindergarten <500m
Universität <9.500m
Höhere Schule <9.500m

Nahversorgung
Supermarkt <500m
Bäckerei <500m
Einkaufszentrum <500m

Sonstige
Bank <500m
Geldautomat <500m
Post <500m
Polizei <1.000m

Verkehr
Bus <500m
Bahnhof <1.000m
Flughafen <8.000m

Angaben Entfernung Luftlinie / Quelle: OpenStreetMap

Eckdaten Objektnr. 289399

Art: Büro / Praxis
Land: Österreich
Zustand: Erstbezug
Kaltmiete (netto): 2.440,50 €
Kaltmiete: 2.733,36 €
Miete / m²: 12,50 €
Provision: 3 Bruttomonatsmieten zzgl. 20% USt.
Betriebskosten: 292,86 €
Heizkosten: 214,76 €
Nutzfläche: 195,24 m²
Immobilie merken Exposé

Ausstattung

Estrichboden, Fliesen, Kunststoffboden, Fernwärme, Fußbodenheizung, Personenaufzug, Parkplatz


Immobilie anfragen


Ihre persönliche Beratung

Schantl ITH Immobilientreuhand GmbH

Maria Schantl, BA, MSc

Schantl ITH Immobilientreuhand GmbH

T 0043 664 54 11 047

H +43 664 4244933