Hier entsteht, was du draus machst! Entzückende Altbauwohnung - Selbst Gestalten! Sanierungsbedarf! U-Bahn ums Eck + Traumhaft renoviertes Altbauhaus + Optimalste Infrastruktur und Anbindung!

Wohnung , 1030 Wien , Markhofgasse


Sie suchen nach dem gewissen Etwas? Sie möchten in der Stadt mit all ihren Vorteilen leben und doch nahe von großen Erholungsgebieten und der grünen Lunge Wien´s sowie der schönen Alten Donau? Hier müssen Sie keine Kompromisse eingehen! Hier vereint sich die Vielfalt von Cityflair und der Möglichkeit die Seele im schönen, grünen Prater baumeln zu lassen oder spontan einen Sprung ins kühle Nass an der Alten Donau zu machen. Profitieren Sie von einer optimalen Infrastruktur! U-Bahn, Straßenbahn und Bus befinden sich quasi vor der Türe und alle Geschäfte des täglichen Bedarfs erreichen Sie in wenigen Gehminuten. Öffis: U3 / Straßenbahn 18 / Busse 80A, 77A, N75 BIPA und BILLA direkt vor der Haustüre....

Beschreibung der Immobilie

Hier entsteht, was du draus machst! Entzückende Altbauwohnung - Selbst Gestalten! Sanierungsbedarf! U-Bahn ums Eck + Traumhaft renoviertes Altbauhaus + Optimalste Infrastruktur und Anbindung!

Neuer Preis! Hier entsteht, was du draus machst!





Entzückende Altbauwohnung - Selbst Gestalten! Sanierungsbedarf! U-Bahn ums Eck + Traumhaft renoviertes Altbauhaus + Optimalste Infrastruktur und Anbindung!



Tolle Gelegenheit - jetzt zugreifen!



Aktuell wurde noch das Stiegenhaus renoviert und die Fassade erneuert.



Mehrere Wohnungen im Haus verfügbar! Wir zeigen Ihnen gerne alle verfügbaren Wohnungen - ebenfalls in einer weiteren Liegenschaft nur wenige Minuten entfernt!





Ein Lift (für jeden nutzbar) wird noch in den kommenden 3 Jahren ab Baubewilligung eingebaut, ohne dass Ihnen dabei Errichtungskosten entstehen.



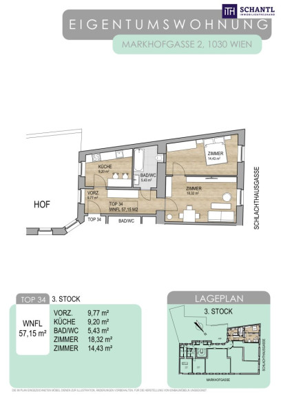
Ihre neue Wohnung ist aktuell sanierungsbedürftig und bietet Ihnen die Chance, Ihre Wünsche umzusetzen! Sie teilt sich in einen Vorraum mit angeschlossenem Küchenbereich (andere Gestaltung natürlich möglich), ein Badzimmer mit WC, ein kleines und hofseitiges Schlafzimmer (hier war früher die Küche), eine geräumiges Wohn-Esszimmer sowie ein weiteres Schlafzimmer.





Auf Kosten des Verkäufers werden/wurden aktuell noch die Fenster erneuert und neue 3-fach isolierte Fenster eingebaut sowie die Wohnungseingangstüren erneuert.





Wohnfläche: ca. 57,15m² + großes Kellerabteil: ca. 6,48m²



Kaufpreis: € 270.000.-



Bereits erfolgreich verkauft: TOP 9, TOP 8, TOP 33, TOP 27





Erfüllen Sie Ihren Wohntraum ganz nach Ihren Vorstellungen - wir beraten Sie gerne!





Bei konkretem Interesse senden wir Ihnen sehr gerne weiterführende Dokumente zu, wie:



o Grundbuchauszug



o Wohnungseigentumsvertrag



o Nutzwertgutachten



o Eigentümerversammlungsprotokoll (Falls vorhanden) etc...





Unser Service für Sie: Wenn Sie sich für diese Immobilie entschieden haben, begleiten wir Sie gerne vom Kaufanbot weg inkl. Klärung von Sonderwünschen und der Vertragsunterzeichnung über die Wohnungsübergabe bis hin zu diversen Ummeldungen wie Strom und Gas. Entsprechende Formulare oder auch Meldezettel stellen wir Ihnen sehr gerne zur Verfügung.



Gerne unterstützen wir Sie auch bei der Finanzierung Ihres Traumobjekts und finden mit unseren langjährigen Partnern die besten Konditionen für Sie.



Vereinbaren Sie noch heute einen Termin, wir beraten Sie gerne!



www.schantl-ith.at


Wir weisen darauf hin, dass zwischen dem Vermittler und dem zu vermittelnden Dritten ein familiäres oder wirtschaftliches Naheverhältnis besteht.


Der Vermittler ist als Doppelmakler tätig.

Infrastruktur / Entfernungen

Gesundheit
Arzt <500m
Apotheke <250m
Klinik <750m
Krankenhaus <750m

Kinder & Schulen
Schule <500m
Kindergarten <250m
Universität <750m
Höhere Schule <750m

Nahversorgung
Supermarkt <250m
Bäckerei <250m
Einkaufszentrum <1.000m

Sonstige
Geldautomat <500m
Bank <500m
Post <500m
Polizei <500m

Verkehr
Bus <250m
U-Bahn <250m
Straßenbahn <250m
Bahnhof <250m
Autobahnanschluss <500m

Angaben Entfernung Luftlinie / Quelle: OpenStreetMap

Eckdaten Objektnr. 289532

Art: Wohnung
Land: Österreich
Baujahr: 1905
Zustand: Sanierungsbeduerftig
Alter: Altbau
Kaufpreis: 270.000,00
Kaufpreis / m²: 4.724,41 €
Provision: 3% des Kaufpreises zzgl. 20% USt.
Betriebskosten: 135,85 €
MwSt Gesamt: 13,59 €
Wohnfläche: 57,15 m²
Nutzfläche: 57,15 m²
Zimmer: 2,50
Bäder: 1
WC: 1
Keller: 6,48 m²
Heizwärmebedarf:  D  116,50 kWh/m²a
fGEE:  D  2,26
Immobilie merken Exposé

Ausstattung

Fliesen, Laminatboden, Gas, Etagenheizung, Personenaufzug, Badewanne, Kabel/Satelliten-TV


Immobilie anfragen


Ihre persönliche Beratung

Schantl ITH Immobilientreuhand GmbH

Samir Agha-Schantl

Schantl ITH Immobilientreuhand GmbH

T 0043 664 3070009

H 0043 660 4701793