Herbstaktion! WOW - Ab ins Dachgeschoss mit 3 Terrassen! Klimaaktiv Bronze + Lichtdurchflutet + Perfekte Raumaufteilung + Hochwertige Ausstattung + Nachhaltig! TOP Neubau-Projekt mit naturnahen Gewässern ums Eck!
                                                            Wohnung
                                - Dachgeschoß,
                            
                            
                                
                                                                            1220
                                    
                                                                            Wien
                                    
                                    ,
                                        Khuenweg                                                                                    
                                    
                                
                                                                    
                                        
                                    
                                
                            
                        
                        Traumlage in 1220 Wien! Hier will ich leben - Genießen Sie eine tolle Grün- und Ruhelage kombiniert mit einer perfekten Infrastruktur! Wir haben hier nicht nur ein besonderes Schmankerl was die Qualität und Konzeptionierung dieses Projekts betrifft, sondern auch ein Schmankerl was die Lage betrifft! Ihr neues Zuhause befindet sich nahe dem Mühlwasser in einer ruhigen Seitengasse vom Biberhaufenweg und wird Ihr Herz höher schlagen lassen... Highlights in der Nähe: Mühlwasser, Nationalpark Donau-Auen, Lobau uvm. Ein moderner BILLA befindet sich quasi ums Eck und ist in 2-3 Gehminuten zu erreichen. Öffis: Bus 93A, N91, 98A, 97A, 92A, U2-Station via Bus oder Straßenbahn
Beschreibung der Immobilie
Herbstaktion! WOW - Ab ins Dachgeschoss mit 3 Terrassen! Klimaaktiv Bronze + Lichtdurchflutet + Perfekte Raumaufteilung + Hochwertige Ausstattung + Nachhaltig! TOP Neubau-Projekt mit naturnahen Gewässern ums Eck!
Herbstaktion! Lebens(t)raum Erfüller!
Hier wartet ein Neubau-Traumprojekt auf Sie! Perfekt als Anlage als auch für Eigennutzer!
Lebenswert / Grün / Leistbar / Moderner Neubau
Klimaaktiv Bronze zertifiziert! Ihre Vorteile: Hohe Energieeffizienz / Erneuerbare Energieträger / Sehr gute Raumluftqualität / Einsatz ökologischer Baustoffe / Thermischer Komfort / Hohe Qualität der Bauführung / Gute Qualität der Infrastruktur / Beschleunigte Absetzung für Abnutzung (AfA) - interessant für Anleger und Investoren / Beitrag zur Klimaneutralität / Niedriger Energieverbrauch und somit niedrige Heiz- und Betriebskosten
30 ideal geplante Traumwohnungen mit Größen von ca. 40m² bis ca. 102m² - alle mit Balkon/Terrasse oder Garten - werden Sie verzaubern! Hier finden Sie für jedes Budget und jeden Geschmack die richtige Wohnung! 17 Garagenplätze stehen darüber hinaus für die neuen Eigentümer zur Verfügung.
Fertigstellung: Ende 2025
Kein Nachbar auf dieser Ebene!
WOW - Ab ins Dachgeschoss mit 3 Terrassen! Lichtdurchflutet + Perfekte Raumaufteilung + Hochwertige Ausstattung + Nachhaltig! TOP Neubau-Projekt mit naturnahen Gewässern ums Eck!
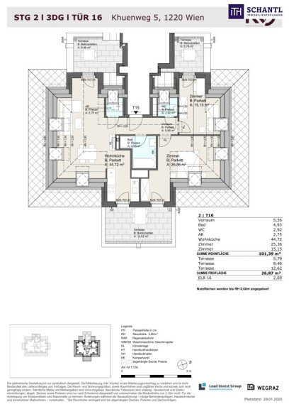
TOP 16 (Stiege 2, 3.DG):
Ihre neue Wohnung wird Sie restlos begeistern und teilt sich einen geräumigen Vorraum mit Platz für eine Garderobe, ein separates WC mit Handwaschbecken und Fenster, einen praktischen Abstelleraum mit Waschmaschinenanschluss und Fenster, ein großzügiges Badezimmer mit Dusche und Badewanne, 2 getrennt begehbare Schlafzimmer, welche jeweils einen Zugang zu einer Terrasse haben sowie ein riesiges und lichtdurchflutetes Wohn-Esszimmer mit viel Platz zum Wohlfühlen und Zugang zu einer großen Terrasse.
Highlights: Hochwertige Ausstattung / 3-fach isolierte Holz-Alufenster / Sonnenschutz bei allen Wohnungen (Rollladen, Raffstores bzw. Markisoletten) / Wasser-Wasser-Wärmepumpen für Heizung + Kühlung uvm.
Niedrige monatliche Kosten durch: Wasser-Wasser-Wärmepumpe und Solaranlage!
Wohnfläche: ca. 101,39m² + 1.Terrasse: ca. 12,62m² 2.Terrasse: ca. 8,46m² + 3.Terrasse: ca. 5,79m² + Kellerabteil: ca. 2,69m²
Kaufpreis Anleger: € 565.045.- netto + UST
Kaufpreis Eigennutzer: € 627.200.-
Garagenplatz (optional) Anleger: € 25.945.- netto + UST
Garagenplatz (optional) Eigennutzer: € 28.800.-
Folgende Wohnungen haben bereits glückliche, neue Eigentümer: Stiege 2/TOP1, Stiege 1/TOP3, Stiege 1/TOP10, Stiege 1/TOP11, Stiege 1/TOP2, Stiege 2/TOP3, Stiege 2/TOP2, Stiege 1/TOP6, Stiege 1/TOP1, Stiege 2/TOP15
Fixer Baustart: September 2024
Geplante Fertigstellung laut Auskunft des Bauträgers: Dezember 2025
Die Einschätzung der Betriebskosten erfolgt noch seitens der Hausverwaltung und wird nachgereicht, geschätzt werden ca. € 2.-/m².
Worauf warten Sie noch? Verwirklichen Sie Ihren Wohntraum jetzt!
Gerne senden wir Ihnen auch Unterlagen zu den noch verfügbaren Einheiten zu...
www.schantl-ith.at
Wir weisen darauf hin, dass zwischen dem Vermittler und dem zu vermittelnden Dritten ein familiäres oder wirtschaftliches Naheverhältnis besteht.
Der Vermittler ist als Doppelmakler tätig.
Infrastruktur / Entfernungen
Gesundheit
Arzt <250m
Apotheke <1.000m
Klinik <1.250m
Krankenhaus <1.500m
Kinder & Schulen
Schule <500m
Kindergarten <500m
Universität <2.750m
Höhere Schule <2.500m
Nahversorgung
Supermarkt <250m
Bäckerei <1.000m
Einkaufszentrum <3.500m
Sonstige
Geldautomat <750m
Bank <750m
Post <1.000m
Polizei <750m
Verkehr
Bus <250m
U-Bahn <1.250m
Straßenbahn <750m
Bahnhof <1.500m
Autobahnanschluss <2.500m
Angaben Entfernung Luftlinie / Quelle: OpenStreetMap
Eckdaten Objektnr. 289560
| Art: | Wohnung - Dachgeschoß | 
| Land: | Österreich | 
| Baujahr: | 2025 | 
| Zustand: | Erstbezug | 
| Alter: | Neubau | 
| Kaufpreis: | 565.045,00 € | 
| Kaufpreis / m²: | 4.920,71 € | 
| Provision: | 3% des Kaufpreises zzgl. 20% USt. | 
| Wohnfläche: | 101,39 m² | 
| Nutzfläche: | 114,83 m² | 
| Zimmer: | 3 | 
| Bäder: | 1 | 
| WC: | 1 | 
| Terrassen: | 3 | 
| Keller: | 2,69 m² | 
| Heizwärmebedarf: | B 40,30 kWh/m²a | 
| fGEE: | A 0,71 | 
Ausstattung
Fliesen, Parkett, Solarenergie, Fußbodenheizung, Zentralheizung, Personenaufzug, Badewanne, Dusche, Kabel/Satelliten-TV, Tiefgarage
Ihre persönliche Beratung
                                                        Samir Agha-Schantl
Schantl ITH Immobilientreuhand GmbH
T 0043 664 3070009
H 0043 660 4701793