Beschreibung der Immobilie
Charmantes Reihenhaus in ruhiger Lage mit Garten und Terrasse
Dieses charmante Reihenhaus wurde 1997 erbaut und bietet auf ca. 89 m² Nutzfläche eine durchdachte Raumaufteilung, die alles bietet, was das Herz begehrt. Das Haus befindet sich in einer ruhigen, grünen Wohngegend, die für ihre familiäre Atmosphäre bekannt ist. Hier genießen Sie sowohl die Ruhe des ländlichen Charakters als auch die Nähe zu Einkaufsmöglichkeiten, Schulen und eine gute Anbindung an öffentliche Verkehrsmittel.
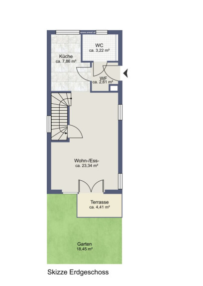
Im Erdgeschoss erwartet Sie ein großzügiger Wohnbereich, der direkten Zugang zum Wintergarten sowie zur Terrasse bietet. Von hier aus gelangen Sie in den ca. 18,5 m² großen Garten, der mit Terrasse und Pool der perfekte Ort zum Entspannen und Genießen der frischen Luft ist.
Eine gut ausgestattete, separate Küche lädt zu gemeinsamen Kochabenden ein, während ein praktisches Gäste-WC das Erdgeschoss komplettiert.
Im Obergeschoss befinden sich ein geräumiges Schlafzimmer, ein separater Schrankraum sowie das frisch renovierte Badezimmer mit rund 14 m², das durch moderne Ausstattung und viel Platz besticht.
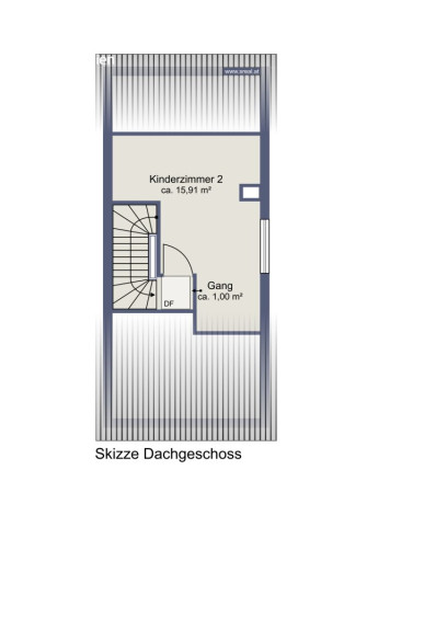
Das Dachgeschoss bietet ein weiteres Schlafzimmer, das sich ideal als Gästezimmer oder Home-Office nutzen lässt. Der Keller mit etwa 9 m² bietet zusätzlichen Stauraum und Platz für Haushaltsgeräte.
Die Heizung erfolgt zukünftig über Fernwärme, und eine Klimaanlage sorgt an heißen Tagen für angenehme Temperaturen. Ein Carport schützt Ihr Fahrzeug vor Witterungseinflüssen. Der Wintergarten auf der Terrasse sorgt für zusätzlichen Raum, der das ganze Jahr über genutzt werden kann.
Insgesamt bietet das Haus viel Potenzial für individuelle Gestaltung und Entfaltung – in einer ruhigen, naturnahen Lage.
Überzeugen Sie sich selbst von diesem attraktiven Reihenhaus in Dobl und vereinbaren Sie noch heute einen Besichtigungstermin!
Eckdaten Objektnr. 961/35814
| Art: | Haus - Reihenhaus |
| Land: | Österreich |
| Baujahr: | 1997 |
| Kaufpreis: | 269.000,00 € |
| Provision: | 9.684,00 € inkl. 20% USt. |
| Betriebskosten: | 175,30 € |
| Heizkosten: | 86,41 € |
| MwSt Gesamt: | 38,47 € |
| Nutzfläche: | 88,86 m² |
| Zimmer: | 4 |
| Terrassen: | 1 |
| Stellplätze: | 1 |
| Garten: | 18,45 m² |
| Keller: | 9,04 m² |
| Heizwärmebedarf: | D 105,50 kWh/m²a |
| fGEE: | C 1,37 |
Ausstattung
Gas, Zentralheizung, Einbauküche, Dusche, Bad mit Fenster
Ihre persönliche Beratung
Dieser Makler ist ein offizielles Mitglied des IR – ir.at Mehr Erfahren

