HIETZING - GRUNDSTÜCK MIT ALTBESTAND NAHE S-BAHN SPEISING

Grundstück - Baugrund Eigenheim, 1130 Wien


Das Grundstück befindet sich im 13. Wiener Gemeindebezirk in schöner Grünruhelage nahe dem Krankenhaus Hietzing und dem Bahnhof Wien Speising. Die Liegenschaft besticht durch die Ruhelage, die rechteckige Form sowie die Ausrichtung zur Abendsonne. In Fußweite fahren außerdem die Straßenbahnlinie 10, 52, 60, die Autobuslinien 56A, 56B sowie der Nachtbus N60. Die Infrastruktur bietet Ihnen alles für den täglichen Bedarf. So erreichen Sie in wenigen Minuten diverse Supermärkte, Restaurants, Cafés, Schulen, Kindergärten, Banken, Apotheken, uvm.

Beschreibung der Immobilie

HIETZING - GRUNDSTÜCK MIT ALTBESTAND NAHE S-BAHN SPEISING

ALTBESTAND MIT ERWEITERUNGSPOTENZIAL



Dieses sanierungsbedürftige Einfamilienhaus befindet sich in Hietzinger Grünruhelage nur unweit von der S-Bahn Station Speising entfernt. Das Haus liegt in einer ruhigen Seitengasse die mit vielen Einfamilienhäusern bestückt ist. Hervorzuheben ist der schöne Garten und das ebene, beinahe komplett rechteckige Grundstück.





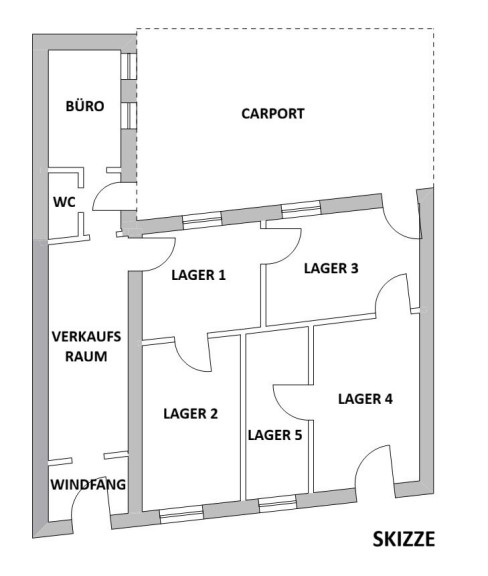
Das Haus erstreckt sich auf ca. 90m² Wohnfläche mit 7 Räumen und wird aktuell als Büro samt Lager/Werkstatt genutzt.



Geheizt wird aktuell mit Gas (Gaskonvektoren).



Fotos vom Innenraum entnehmen Sie dann dem Exposé.





Aktuelle Aufteilung:



  • Eingang/Windfang (ca. 4m²)
  • Verkaufsraum (ca. 15m²)
  • kleiner Vorraum mit Ausgang in den Garten (ca. 4m²)
  • WC
  • Bürozimmer (ca. 9m²)
  • Lagerraum 1 (gartenseitig) (ca. 10m²)
  • Lagerraum 2 (straßenseitig) (ca. 13m²)
  • Lagerraum 3 mit Ausgang in den Garten (ca. 13m²)
  • Lagerraum 4 (straßenseitig) mit Zugang von der Straße (ca. 14m²)
  • Lagerraum 5 (straßenseitig) (ca. 8m²)
  • Terrasse mit Carport (ca.25m²)
  • Garten




Grundstück:



  • 412m²
  • eben 
  • rechteckige Form




Flächenwidmung:



  • Bauland Wohngebiet 
  • Bauklasse 1
  • max. Bauhöhe 6,5m
  • geschlossene Bauweise




Potenzial/Nachverdichtung:



Nach der Auswertung von PROPCORN AI liegt das voraussichtlich erzielbare Nachverdichtungspotenzial bei etwa 282m² Wohnfläche. Dafür kann aber keine Garantie übernommen werden, sondern wird der individuellen Prüfung der Käuferseite und deren Fachleuten überlassen. Oftmals reicht auch für das ideale Eigenheim eine geringere Wohnfläche.





Abbruch-Neubau:



Es liegt noch keine Abbruchbewilligung vor.





Kosten:



  • KP: EUR 670.000,-
  • Grundsteuer: EUR 15,72 pro Quartal
  • Müllabfuhr: EUR 72,25 pro Quartal
  • Wasser und Abwasser: EUR 133,55 pro Monat
  • Provision: 3% vom KP zzgl. gesetzl. USt.




Kontakt:



Bei Fragen und Besichtigungen kontaktieren Sie bitte Herrn Gamlich unter 0664 54 361 53 oder unter clemens.gamlich@iconia.at.



Weitere Objekte auf: www.iconia.at





Haftungsausschluss:



Alle Angaben sind ohne Gewähr und basieren ausschließlich auf Informationen, die uns von unserem Auftraggeber übermittelt wurden. Eine Weitergabe der übermittelten Daten an Dritte ist nicht gestattet. Wir übernehmen keine Gewähr für die Vollständigkeit, Richtigkeit und Aktualität dieser Angaben. Irrtum und Zwischenverkauf vorbehalten.


Hinweis gemäß Energieausweisvorlagegesetz: Ein Energieausweis wurde vom Eigentümer bzw. Verkäufer, nach unserer Aufklärung über die generell geltende Vorlagepflicht, sowie Aufforderung zu seiner Erstellung noch nicht vorgelegt. Daher gilt zumindest eine dem Alter und der Art des Gebäudes entsprechende Gesamtenergieeffizienz als vereinbart. Wir übernehmen keinerlei Gewähr oder Haftung für die tatsächliche Energieeffizienz der angebotenen Immobilie.


Der Vermittler ist als Doppelmakler tätig.

Infrastruktur / Entfernungen

Gesundheit
Arzt <500m
Apotheke <500m
Klinik <500m
Krankenhaus <1.000m

Kinder & Schulen
Schule <500m
Kindergarten <500m
Universität <2.000m
Höhere Schule <4.000m

Nahversorgung
Supermarkt <500m
Bäckerei <1.000m
Einkaufszentrum <3.500m

Sonstige
Geldautomat <500m
Bank <500m
Post <500m
Polizei <500m

Verkehr
Bus <500m
U-Bahn <2.500m
Straßenbahn <500m
Bahnhof <500m
Autobahnanschluss <3.500m

Angaben Entfernung Luftlinie / Quelle: OpenStreetMap

Eckdaten Objektnr. 1693/227

Art: Grundstück - Baugrund Eigenheim
Land: Österreich
Baujahr: 1900
Zustand: Teil_vollrenovierungsbed
Alter: Altbau
Kaufpreis: 670.000,00
Provision: 3% des Kaufpreises zzgl. 20% USt.
Nutzfläche: 89,90 m²
Grundstücksfl.: 412,00 m²
Zimmer: 7
WC: 1
Garten: 297,00 m²
Immobilie merken Exposé

Ausstattung

Fliesen, Parkett, Gas, Westbalkon


Immobilie anfragen


Ihre persönliche Beratung

ICONIA GmbH

Clemens Gamlich

ICONIA GmbH

T +43 664 543 61 53