Große Altbauwohnung in Eggenberg – langfristig vermietet & steuerlich attraktiv

Wohnung , 8020 Graz


Gaswerkstraße 62, Graz-Eggenberg – ruhige Seitenstraße im gefragten Bezirk mit hoher Wohnqualität. Nähe FH Joanneum, Auster, UKH sowie Straßenbahn und Einkaufsmöglichkeiten. Ideales Umfeld für Mieter:innen mit langfristiger Bindung.

Beschreibung der Immobilie

Große Altbauwohnung in Eggenberg – langfristig vermietet & steuerlich attraktiv

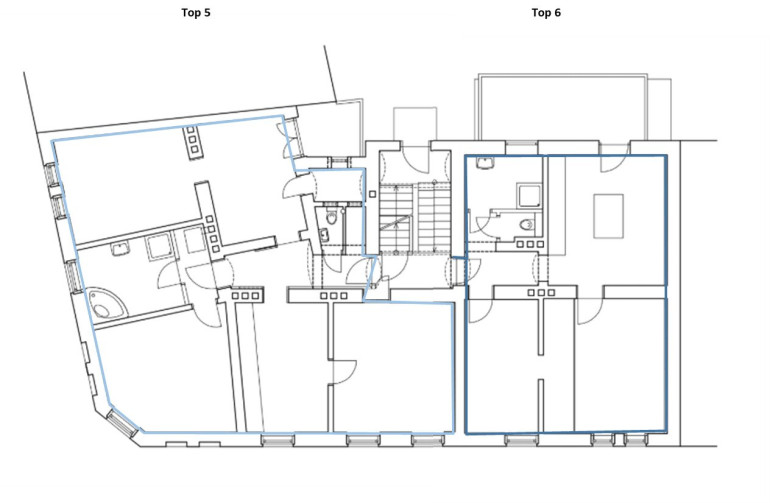
Diese ca. 100 m² große Altbauwohnung im 2. Obergeschoss ist Teil einer zusammengelegten Einheit (Teilfläche Top 6) und seit 2007 langfristig an einen älteren Mieter (Jg. 1946) vermietet.



  • Wohnfläche: 100,01 m², gepflegter Altbau aus 1912
  • Aktuelle Nettomiete: € 262,25/Monat
  • Kaufpreis: € 176.806
  • Eigenmittel: € 58.000
  • Nur € 211 monatliche Zuzahlung nach Steuer
  • Prognostizierter Verkaufswert in 20 Jahren (bei nur 4 % Wertsteigerung): € 387.404
  • Steuerliche Abschreibung: 2 % p.a.


Besonders interessant: Nach Auszug des Mieters eröffnet sich die Möglichkeit zur Eigennutzung oder hochwertigen Neuvermietung – ideal für zukünftige Wohnpläne oder strategische Weiterentwicklung.



Jetzt sichern und doppelt profitieren – durch stabile Einnahmen heute und volle Flexibilität morgen.



Die gezeigten Bilder sind Echtaufnahmen kombiniert mit KI generierten Einrichtungsvorschlägen.


Der Vermittler ist als Doppelmakler tätig.

Eckdaten Objektnr. 8044/584

Art: Wohnung
Land: Österreich
Baujahr: 1912
Kaufpreis: 176.806,00
Wohnfläche: 100,00 m²
Zimmer: 5
Heizwärmebedarf:  D  123,39 kWh/m²a
Immobilie merken Exposé

Immobilie anfragen


Ihre persönliche Beratung

Mario Deuschl

Sinnvestment Immobilien GmbH

T +43 732 67 67 77

H +43 676 32 61 444

F +43 732 67 67 78