Gewerbeobjekt mit Umbaumöglichkeit zur Eigentumswohnung in Wels zu kaufen

Büro / Praxis , 4600 Wels


Beschreibung der Immobilie

Gewerbeobjekt mit Umbaumöglichkeit zur Eigentumswohnung in Wels zu kaufen

Gewerbeobjekt mit Umbaumöglichkeit zur Eigentumswohnung in Wels zu kaufen



Zum Verkauf steht ein vielseitig nutzbares Gewerbeobjekt im Erdgeschoss eines gepflegten Mehrparteienhauses in zentraler Lage von Wels. Die Einheit befindet sich in der Linzer Straße 155 und weist eine Nutzfläche von ca. 85 m² auf.



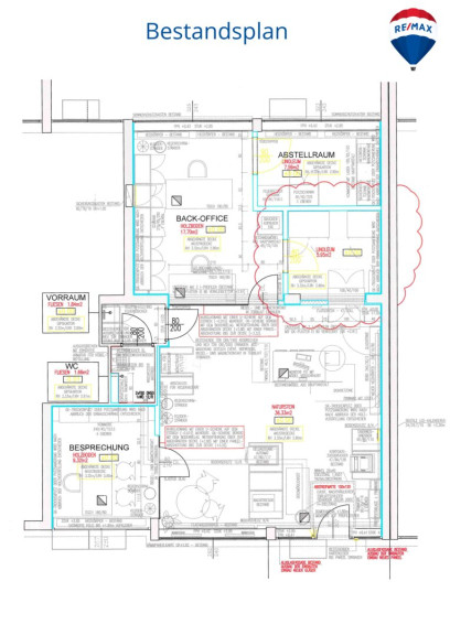
Derzeit wird das Objekt als Büro genutzt, kann jedoch gemäß vorliegendem Bestandsplan und möglichem Grundriss mit überschaubarem Aufwand zu einer Eigentumswohnung mit drei Zimmern umgebaut werden.



Das Objekt liegt im Erdgeschoss und verfügt über große Fensterflächen, die für helle, freundliche Räume sorgen. Alle erforderlichen Anschlüsse für Küche und Sanitärbereiche sind bereits vorhanden. Beheizt wird die Einheit mittels einer Gas-Etagenheizung.



Die Lage überzeugt durch eine sehr gute Infrastruktur und Verkehrsanbindung – Einkaufsmöglichkeiten, öffentliche Verkehrsmittel sowie das Stadtzentrum von Wels sind in wenigen Minuten erreichbar. Damit eignet sich die Immobilie sowohl für die weitere Nutzung als Büro oder Praxis als auch für den Umbau zu einer attraktiven Eigentumswohnung.



Derzeit wird ein Kellerraum zusätzlich angemietet, der übernommen werden kann.



Nutzen Sie diese seltene Gelegenheit, ein flexibel nutzbares Objekt in zentraler Lage von Wels zu erwerben – egal ob als Kapitalanlage, Bürofläche oder zukünftige Eigentumswohnung!


Der Vermittler ist als Doppelmakler tätig.

Infrastruktur / Entfernungen

Gesundheit
Arzt <1.000m
Apotheke <1.000m
Klinik <1.500m
Krankenhaus <2.000m

Kinder & Schulen
Schule <500m
Kindergarten <500m
Universität <2.000m

Nahversorgung
Supermarkt <500m
Bäckerei <500m
Einkaufszentrum <2.000m

Sonstige
Bank <500m
Geldautomat <500m
Post <500m
Polizei <500m

Verkehr
Bus <500m
Autobahnanschluss <3.000m
Bahnhof <2.000m
Flughafen <1.500m

Angaben Entfernung Luftlinie / Quelle: OpenStreetMap

Eckdaten Objektnr. 7359/3519

Art: Büro / Praxis
Land: Österreich
Baujahr: 1969
Kaufpreis: 85.000,00
Provision: 3% des Kaufpreises zzgl. 20% USt.
Betriebskosten: 392,91 €
MwSt Gesamt: 85,69 €
Nutzfläche: 85,35 m²
Zimmer: 3
WC: 1
Heizwärmebedarf:  E  173,00 kWh/m²a
fGEE:  C  1,58
Immobilie merken Exposé

Ausstattung

Fernwärme


Immobilie anfragen


Ihre persönliche Beratung

RE/MAX ImmoCenter - CASA TERRA IMMOBILIENTREUHAND GmbH

Alexander Huber

CASA TERRA IMMOBILIENTREUHAND GmbH

T +43 7672 22 1 22

H +43 676 721 72 43

F +43 7672 221 22 50