360 TOUR //DACHGESCHOSSWOHNUNG NAHE JÖRGERBAD

Wohnung , 1170 Wien


Eltertleinplatz

Beschreibung der Immobilie

360 TOUR //DACHGESCHOSSWOHNUNG NAHE JÖRGERBAD

DACHGESCHOSSWOHNUNG NAHE JÖRGERBAD



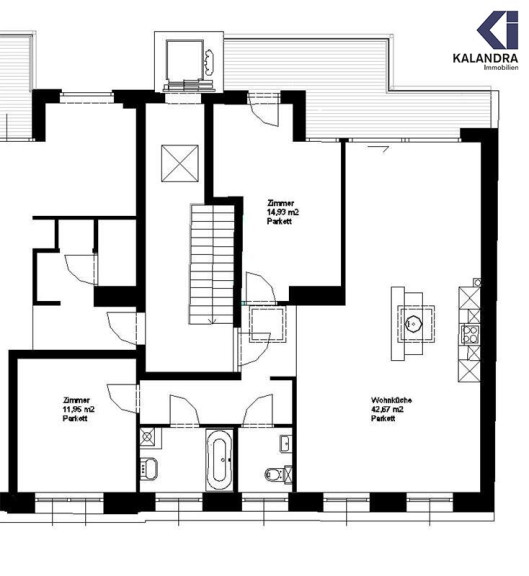
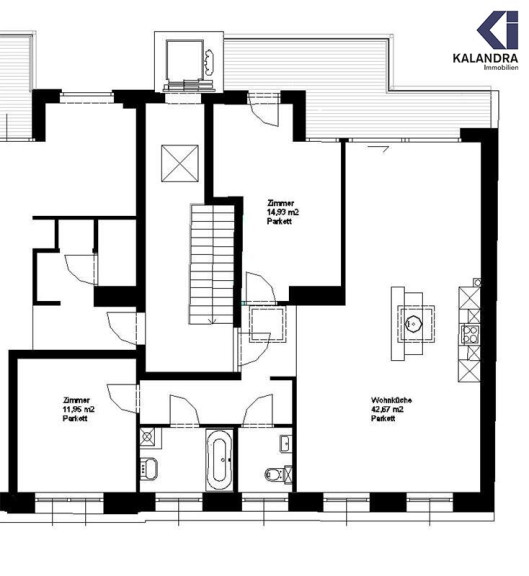
Nutzfläche: ca. 84,84m²



Balkon: ca. 12,40m²



Keller: ca. 3,00m²



Raumhöhe von ca. 3,50 Metern 



Raumaufteilung:



großzügigen 42m² Wohnzimmer.  hochwertige Küche, Balkon mit 12,40m² ist sowohl vom Wohnzimmer als auch vom Schlafzimmer aus zugänglich



Zwei ² hofseitig ausgerichtet 15m² und 12m²Schlafzimmer



Wannenbad,  separates WC





Ausstattung:



  • Massivparkettboden
  • Ofen
  • Klimaanlage
  • Gasetagenheizung mit Radiatoren
  • Naturstein im WC und Badezimmer
  • Innenliegende Jalousien (straßenseitig)
  • Hochwertige Küche
  • Großformatige Fensterflächen und Hubschiebetür zum Balkon
  • Personenaufzug




Kosten:



Hauptmietzins (netto): 1.407,48 €



Betriebskosten (netto): 192,93 €



Betriebskosten Aufzug (netto): 35,09 €



Umsatzsteuer: 163,55 €



Bruttomietzins: 1.799,05 €





Kaution: 5.500,00 €





Energieausweis:



HWB: 53,2 kWh/m²a



fGEE: 1,19



Klasse C



Lage



Nur 5 Gehminuten entfernt befinden sich das Jörgerbad, Elterleinplatz und der lebhafte Brunnenmarkt, die vielfältige Einkaufs- und Freizeitmöglichkeiten bieten. Ab 2028 ermöglicht die nahegelegene U5-Station eine zügige Anbindung an die Innenstadt. Die Straßenbahnlinien 41 und 42 sind in unmittelbarer Nähe, und die Fahrt in die Innenstadt (1010 Wien) dauert etwa 10 Minuten. Darüber hinaus ist der malerische Wienerwald mit seinen grünen Landschaften und Wanderwegen nur wenige Straßenbahnstationen entfernt, was perfekte Erholung im Grünen ermöglicht. Eine ideale Kombination aus urbanem Komfort, guter Anbindung und Freizeitangeboten.




Der Immobilienmakler erklärt, dass er – entgegen dem in der Immobilienwirtschaft üblichen Geschäftsgebrauch des Doppelmaklers – einseitig nur für den Vermieter tätig ist.

Infrastruktur / Entfernungen

Gesundheit
Arzt <500m
Apotheke <500m
Klinik <500m
Krankenhaus <1.000m

Kinder & Schulen
Schule <500m
Kindergarten <500m
Universität <1.500m
Höhere Schule <1.000m

Nahversorgung
Supermarkt <500m
Bäckerei <500m
Einkaufszentrum <500m

Sonstige
Geldautomat <500m
Bank <500m
Post <500m
Polizei <500m

Verkehr
Bus <500m
U-Bahn <1.000m
Straßenbahn <500m
Bahnhof <1.000m
Autobahnanschluss <3.500m

Angaben Entfernung Luftlinie / Quelle: OpenStreetMap

Eckdaten Objektnr. 18533

Art: Wohnung
Land: Österreich
Gesamtmiete: 1.799,05
Kaltmiete (netto): 1.407,48 €
Kaltmiete: 1.635,50 €
Provision: Gemäß Erstauftraggeberprinzip bezahlt der Abgeber die Provision.
Betriebskosten: 192,93 €
MwSt Gesamt: 163,55 €
Wohnfläche: 84,84 m²
Zimmer: 3
Balkone: 1
Immobilie merken Exposé

Immobilie anfragen


Ihre persönliche Beratung

KALANDRA Immobilien Robert Kalandra e.U.

Mag. Robin Kalandra

KALANDRA Immobilien Robert Kalandra e.U.

T +43-1533326913

H +43-69911804004

F +43-1-533-32-69-20