Einfamilienhaus gesucht? Koffer packen und einziehen!

Haus - Einfamilienhaus, 2292 Engelhartstetten


Das Einfamilienhaus befindet sich in Engelhartstetten und besticht durch seine ruhige, aber dennoch zentrale Lage. Engelhartstetten liegt im Weinviertel in Niederösterreich in der südöstlichen Ecke des Marchfeldes und an der Grenze zur Slowakei. Das Gemeindegebiet grenzt im Osten an die March, die hier die Grenze zu zwei Stadtteilen Bratislavas bildet. Im Süden grenzt Engelhartstetten an den Bezirk Bruck an der Leitha, hier hat die Gemeinde Anteil an der Donau und am Nationalpark Donau-Auen. Die Umgebung ist geprägt von Einfamilienhäusern, gepflegten Gärten und Naherholungsflächen. Genießen Sie die Vorzüge eines ländlichen Lebens mit praktischen Annehmlichkeiten in greifbarer Nähe!

Beschreibung der Immobilie

Einfamilienhaus gesucht? Koffer packen und einziehen!

Kurzinformation für eilige Leser




  • Einfamilienhaus mit ca. 117 m² Wohnnutzfläche



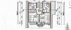
  • Erdgeschoss: Eingangsbereich, Garderobe, WC, Küche mit Speis, großer Wohn-Essbereich & Büro/Schlafzimmer



  • Obergeschoss: Zentraler Vorraum, Badezimmer mit Dusche & Badewanne, 3 Schlafzimmer



  • Grundstücksfläche: ca. 779 m² (lt. Grundbuch)



  • Absolute Ruhelage



  • Carport vorhanden



  • Beheizung: Gas



  • Kellerfläche: ca. 66 m²



  • Bauweise: Holzriegelhaus (österreichischer Hersteller)



  • 3 Brunnen für Gartenbewässerung & Hauswasser



  • Pool mit Überdachung



  • Grillplatz



  • Zufahrt auch von der Rückseite möglich – ideal für Gartenarbeiten



  • Video in den Anhängen









Ausführliche Objektbeschreibung



Das Wohnhaus



Die Liegenschaft wurde im Jahr 2001 errichtet.

Der Zugang erfolgt über ein Doppelcarport oder eine seitliche Gartentüre. Über wenige Stufen gelangt man zum Eingangsbereich, rechts davon befindet sich eine praktische Garderobe sowie ein WC mit Handwaschbecken.



Vom Vorraum aus öffnet sich der lichtdurchflutete Wohn-Essbereich, der mit einem Kaminanschluss ausgestattet ist – ideal, um sich den Traum eines gemütlichen Kamins zu erfüllen und entspannte Wintertage mit der Familie zu genießen. Die Einbauküche mit angrenzender Speis ist funktional gestaltet und bietet ausreichend Stauraum.



Ein zusätzliches Zimmer im Erdgeschoss eignet sich hervorragend als Büro oder Gästezimmer.

Ein freundlicher Stiegenaufgang führt ins Obergeschoss. Dort befindet sich ein zentraler Vorraum, von dem alle Räume zugänglich sind:

Rechts ein kleineres Schlafzimmer, links das Badezimmer mit WC, Dusche und Badewanne, geradeaus zwei großzügige Schlafzimmer, beide mit Zugang zum Balkon.








Der Keller



Der großzügige Keller bietet vielfältige Nutzungsmöglichkeiten. Neben einem Technikraum stehen mehrere Abstell- und Lagerräume zur Verfügung.

Eine integrierte Brunnenpumpe sorgt für die Gartenbewässerung – ein durchdachtes Detail, das den Alltag erleichtert. Besonders praktisch: Der Keller verfügt über einen direkten Zugang zum Garten.








Garten und Außenbereich



Ein echtes Highlight ist der liebevoll angelegte Garten, der sowohl seitlich des Hauses als auch über die Terrasse beim Wohnzimmer zugänglich ist. Zwei eigene Brunnen im Außenbereich bieten ausreichend Wasser zur Gartenpflege und zum Befüllen des Pools.



Ein Geräteschuppen sowie ein kleiner, aktuell nicht genutzter Zierteich runden das Angebot ab.

Der gemütliche Grillplatz lädt zu geselligen Stunden mit Familie und Freunden ein. Das überdachte Pool sorgt für verlängerte Badesaisonen und stets sauberes Wasser – perfekt für entspannte Sommertage und fröhliche Poolfeste.








Technik, Heizung & Betriebskosten




  • Beheizung & Warmwasser: Gastherme, Wärmeabgabe über Heizkörper



  • Zweiter Kaminzug vorhanden – ideal für eine künftige Festbrennstoffheizung im Wohnzimmer




Betriebskosten (geschätzt):




  • Gas: ca. € 140 / Monat



  • Strom: ca. € 56 / Monat



  • Kanal, Abfallwirtschaftsabgabe, Grundsteuer: ca. € 75 / Monat









🏫 Bildungseinrichtungen



  • Kindergärten: Der Kindergarten befindet sich in Engelhartstetten.
  • Volksschule: Ist in Engelhartstetten.
  • Mittelschule Hainburg an der Donau: Bietet ein umfassendes Bildungsangebot für die Sekundarstufe I.







🏥 Gesundheitsversorgung



  • Landesklinikum Hainburg: Bietet eine umfassende medizinische Versorgung in der Region.
  • Praktischer Arzt: Direkt in Engelhartstetten.
  • Fachärzte: In Hainburg an der Donau in ca. 8 km Entfernung.







🛍️ Nahversorgung



In Engelhartstetten direkt gibt es eine Filiale von Nah&Frisch. Die nächsten Einkaufsmöglichkeiten befinden sich in der Gemeinde Hainburg an der Donau oder Bad Deutschaltenburg.



  • Nah&Frisch: Ein Nahversorger mit einem vielfältigen Sortiment an Lebensmitteln, Gussastraße 2.







🚍 Öffentlicher Verkehr



Busverbindungen:



  • Linie 546: Verbindet Engelhartstetten mit dem Bahnhof Gänserndorf und weiteren Haltestellen in der Umgebung.
  • Linie 550: Bedient die Strecke zwischen Engelhartstetten mit Hainburg/Donau.


Aktuelle Fahrpläne und Verbindungen sind über den Verkehrsverbund Ost-Region (VOR) abrufbar: www.vor.at



Bahnverbindungen:



Der Bahnhof Gänserndorf bietet regelmäßige Zugverbindungen nach Wien und in andere Regionen. Ein Parkhaus und Parkanlagen rund um den Bahnhof stehen zur Verfügung








🚗 Auto-Anbindung:



  • Die Wiener Stadtgrenze ist in ca. 40 Minuten erreichbar.
  • Anschluss an die B3 und L4 und L5 sorgt für gute regionale und überregionale Anbindung.







🌳 Besonderheiten & Freizeit



Engelhartstetten bietet eine hohe Lebensqualität mit zahlreichen Freizeitmöglichkeiten. Die Umgebung lädt zu Spaziergängen und Radtouren ein. Zudem gibt es in Hainburg das Bergbad..





Wichtig



Unter bestimmten Voraussetzungen (Anmeldung als Hauptwohnsitz, dringendes Wohnbedürfnis), kommen Sie jetzt in den Genuss der Gebührenbefreiung von der Grundbucheintragungsgebühr (1,1%) und der Eintragungsgebühr des Pfandrechts (1,2%)!





SIE SIND NOCH UNSCHLÜSSIG, OB IHRE FINANZIERUNG GESICHERT IST?



Ihre Hausbank benötigt im Normalfall 4-6 Wochen, um Ihnen mitzuteilen, ob Ihr Kredit bewilligt wird, oder nicht. Unser Finanzierungspartner sagt Ihnen nicht nur anhand Ihrer Unterlagen in kürzester Zeit, ob die Finanzierung klappen wird, er sorgt auch für den besten und günstigsten Wohnkredit, da er Zugang zu den besten Angeboten aller relevanten Banken hat.


Wir weisen darauf hin, dass zwischen dem Vermittler und dem zu vermittelnden Dritten ein familiäres oder wirtschaftliches Naheverhältnis besteht.


Der Vermittler ist als Doppelmakler tätig.

Infrastruktur / Entfernungen

Gesundheit
Arzt <6.000m
Apotheke <5.500m
Klinik <8.500m
Krankenhaus <7.500m

Kinder & Schulen
Kindergarten <2.500m
Schule <1.000m
Höhere Schule <9.500m
Universität <7.000m

Nahversorgung
Supermarkt <2.500m
Bäckerei <5.500m
Einkaufszentrum <5.500m

Sonstige
Bank <5.500m
Post <500m
Geldautomat <6.000m
Polizei <5.000m

Verkehr
Bus <500m
Bahnhof <6.000m
Flughafen <10.000m

Angaben Entfernung Luftlinie / Quelle: OpenStreetMap

Eckdaten Objektnr. 6547/4104

Art: Haus - Einfamilienhaus
Land: Österreich
Baujahr: 2001
Zustand: Gepflegt
Alter: Neubau
Kaufpreis: 479.000,00
Provision: 3% des Kaufpreises zzgl. 20% USt.
Wohnfläche: 117,00 m²
Grundstücksfl.: 779,00 m²
Zimmer: 5
Bäder: 1
WC: 2
Balkone: 1
Terrassen: 1
Stellplätze: 2
Keller: 66,00 m²
Heizwärmebedarf:  C  64,00 kWh/m²a
fGEE:  B  0,98
Immobilie merken Exposé

Ausstattung

Gas, Carport


Immobilie anfragen


Ihre persönliche Beratung

TRUE Immobilien GmbH & Co KG

Markus Dassler

CPS Immobilien Sezgin e.U.

H +43 664 7505 17 72