Exklusives Wohnen und Arbeiten mit Blick zum Schneeberg - Wohnen "Am schönen Platz"
                                                            Wohnung
                                ,
                            
                            
                                
                                                                            1100
                                    
                                                                            Wien
                                    
                                    ,
                                        Am marokkanischen Platz / Laxenburger Straße                                                                                    
                                    
                                
                                                                    
                                        
                                    
                                
                            
                        
                        Beschreibung der Immobilie
Exklusives Wohnen und Arbeiten mit Blick zum Schneeberg - Wohnen "Am schönen Platz"
Inspiriert von der Kultur und der unvergleichlichen Schönheit Marokkos, ist der Schöne Platz mehr als nur ein Wohnensemble – es ist eine Ode an die Liebe zur Natur, zur Kunst und zur Lebensfreude.
Eingebettet in die künstlerische Gartengestaltung von André Heller bieten die neuen Wohnungen einen großzügigen Blick in die weite Landschaft über die benachbarte Kleingartensiedlung. Das lebendige Farbenspiel der diversen Mosaikböden bei den Glashäusern und die mediterrane Bepflanzung im marokkanischen Garten schaffen eine harmonische Verbindung zwischen Architektur und Natur. Eine Allee aus Bambus bildet entlang der südlichen Grenze einen malerischen grünen Abschluss und eine geschützte Ruhezone für die Bewohner.
Moderne Eleganz, vereint mit marokkanischem Flair:
Die 36 exklusiven Eigentumswohnungen wurden mit äußerster Sorgfalt geplant, um ein Höchstmaß an Komfort und Ästhetik zu bieten - von den großzügigen Balkonen bis zu den geschmackvollen Details in jedem Raum.
An der Fassade rankt sich üppiges Grün über die insgesamt sieben Geschosse bis zum Dach, auf dem als Abschluss ein Kräutergarten nach Hildegard von Bingen auf die Bewohner wartet. Leuchtbänder an der Fassade, gemeinsam mit indirekter Beleuchtung an der Unterseite der Balkone, sorgen für magische Lichtstimmungen. Im Aufzug begeistert eine grüne Mooswand hinter Glas.
Die Wohnungen verfügen über ein effizientes Heiz- und Temperierungssystem mit Betonkernaktivierung und gelegentlicher Fußbodentemperierung. Es passt sich automatisch den Wetterbedingungen an und wird zentral gesteuert. Elektrisch steuerbare
Außenjalousien bieten zusätzlichen Sonnenschutz und Lichtregulierung.
Ein Ort zum Leben und Arbeiten:
Die vier separaten Büroeinheiten, verbunden mit den Wohnungen und dennoch separat zugänglich, bieten eine einzigartige Möglichkeit, das Leben und die Arbeit zu vereinen. Hier können Sie Kundentermine abhalten, Besprechungen führen oder einfach nur in Ruhe
arbeiten, ohne Ihr Zuhause verlassen zu müssen.
Eine Verbindung zur Natur und zur Stadt:
Der Schöne Platz liegt nicht nur inmitten einer grünen Oase, sondern ist auch perfekt an die Stadt angebunden. Die U-Bahn-Station U1 „Altes Landgut“ ist nur wenige Minuten entfernt, und zahlreiche Parkanlagen und Naherholungsgebiete bieten die Möglichkeit, dem Trubel der Stadt zu entfliehen.
Ein Supermarkt im angrenzenden Gebäude rundet das Angebot ab, indem er Bewohnern und Besuchern eine bequeme Einkaufsmöglichkeit direkt vor der Haustür bietet.
Zusätzlich können sich die neuen Bewohner über eine hauseigene Tiefgarage, Kellerabteile, Kinderwagen- und Fahrradabstellräume freuen.
Die angeführten Fotos sind Beispielbilder einer bereits fertiggestellten Wohnung im Projekt.
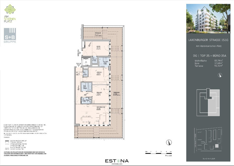
Raumaufteilung:
- Vorraum
- geräumige Wohnküche mit Zugang zur Terrasse
- 2 Schafzimmer mit Zugang zur Terrasse
- 2 Badezimmer mit Badewanne/Dusche, Waschbecken, Waschmaschinenanschluss und Toilette
- Abstellraum 
- separate Toilette 
- Das Büro verfügt über einen separaten Eingang für Geschäftspartner und Kunden. 
Lage und Infrastruktur: 
Dieses einzigartige Wohnprojekt befindet sich im Süden Wiens im 10. Wiener Gemeindebezirk. Alle Geschäfte und Dienstleistungen rund um das tägliche Leben wie Supermärkte, Bäcker, Apotheke, Drogeriemarkt, Bank und Post liegen in unmittelbarer Nähe. Die Therme Wien und das umliegende Naherholungsgebiet Wienerberg mit zahlreichen Badeseen runden das Infrastrukturangebot ab.
Die Busstation der Linie 15A bringt sie unter 5 Minuten zu U1 Altes Landgut oder in ca. 3 Minuten zu den Bürozentren am Wienerberg. Mit der Straßenbahnlinie 11 und O gelangt man in nur 15 Minuten in die Wiener Innenstadt (Karlsplatz). Darüber hinaus erreicht man mit der Straßenbahnlinie 6 in nur wenigen Minuten auch an die U-Bahnlinien U1, U4 und U6. Auch mit dem Auto ist man durch die Nähe zur S1, A2 und A4 bestens gebunden.
Kosten:
Kaufpreis für Wohnung und Büro: € 1.200.000,- für Endnutzer (€ 1.090.909,09 exkl. 20% USt. für Anleger)
PROVISIONSFREI!
Ein Stellplatz um € 29.000,- kann zusätzlich gekauft werden.
Kontakt:
Bei Fragen oder zur Vereinbarung eines Besichtigungstermins wenden Sie sich bitte an Frau Johanna Obkircher unter obkircher@estina.at oder mobil unter 0676 316 37 08.
Eckdaten Objektnr. 25613
| Art: | Wohnung | 
| Land: | Österreich | 
| Baujahr: | 2024 | 
| Zustand: | Erstbezug | 
| Alter: | Neubau | 
| Kaufpreis: | 1.200.000,00 € | 
| Wohnfläche: | 83,70 m² | 
| Bürofläche: | 17,68 m² | 
| Zimmer: | 4 | 
| Bäder: | 2 | 
| WC: | 3 | 
| Terrassen: | 1 | 
| Stellplätze: | 1 | 
| Heizwärmebedarf: | A 21,21 kWh/m²a | 
| fGEE: | A+ 0,69 | 
Ausstattung
Fliesen, Parkett, Alternativ, Wohnküche / offene Küche, Personenaufzug, Ostbalkon, Südbalkon, Badewanne, Dusche, Tiefgarage
Ihre persönliche Beratung
 
                                                        Johanna Obkircher
WH2 Immobilienverwertungs GmbH
H +43 676 316 37 08
 
                 
                 
                 
                 
                 
                 
                 
                 
                 
                