modernes Büro nähe Staatsoper | klimatisiert & effizient aufgeteilt
Büro / Praxis
- Bürofläche,
1010
Wien
Beschreibung der Immobilie
modernes Büro nähe Staatsoper | klimatisiert & effizient aufgeteilt
BESCHREIBUNGIn direkter Umgebung des Kärntner Rings und der Wiener Staatsoper gelangt dieses gut aufgeteilte Büro in die Vermarktung.
Die Lage zwischen Stadtpark und Burggarten sorgt für eine perfekte Nahversorgung und lädt zu Spaziergängen ein. Zahlenreiche Restaurants in der nahen Umgebung bieten Abwechslung nahe der Frequenzlage Kärntner Straße.
VERFÜGBARKEIT
ab sofort
VERFÜGBARE MIETFLÄCHEN
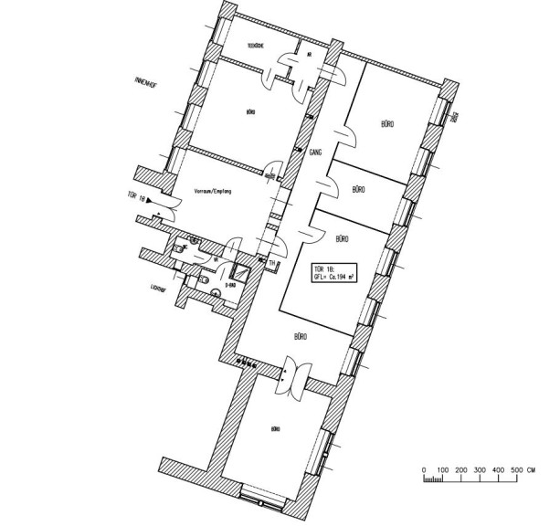
1.OG – Top 18 194 m² € 23,00 ab sofort
Betriebskosten: € 2,21
AUSSTATTUNG
Lift
5 Büroräume
Vorraum
getrennte WCs
Dusche
Abstellraum
Teeküche
Kühlung
Teppichboden
Bodendosen
CAT-7 Verkabelung
Einbauschränke
innenliegende Beschattung
TECHNISCHE DETAILS
Altbau
Energiekennwerte:
Energieklasse D
Heizwärmebedarf: 100,60 kWh/m²a
LAGE UND VERKEHRSANBINDUNG
öffentlicher Verkehr:
U-Bahn: U1, U2, U4
Schnellbahn: -
Straßenbahn: 1, 2, 62, 71, D, WLB
Bus: 2A, 59A
Individualverkehr:
Ring
INFRASTRUKTUR
Durch die Lage am Ring kann jeder Bedarf des täglichen Lebens schnell in der nahen Umgebung gedeckt werden.
KAUTION
6 Bruttomonatsmieten
PROVISION
Im Falle eines Vertragsabschlusses beträgt unser Honorar lt. Maklerverordnung für Immobilienmakler, BGBI.262 und 297/1996, 3 Bruttomonatsmieten zzgl. 20 % Ust. Weiters möchten wir auf unsere allgemeinen Geschäftsbedingungen und den ausschließlichen Gerichtsstand Wien, Innere Stadt verweisen.
Alle Preisangaben verstehen sich pro Monat, zzgl. der gesetzlichen Ust. und Betriebskosten.
Eckdaten Objektnr. 337/05762
| Art: | Büro / Praxis - Bürofläche |
| Land: | Österreich |
| Baujahr: | 1861 |
| Gesamtmiete: | 5.871,20 € |
| Kaltmiete (netto): | 4.454,64 € |
| Miete / m²: | 23,00 € |
| Provision: | 3BMM |
| Betriebskosten: | 438,03 € |
| MwSt Gesamt: | 978,53 € |
| Nutzfläche: | 193,68 m² |
| Zimmer: | 5 |
| WC: | 2 |
| Heizwärmebedarf: | D 100,60 kWh/m²a |
| fGEE: | D 1,79 |
Ausstattung
Gas, Etagenheizung, Personenaufzug
Ihre persönliche Beratung
MA Florian Bogner
Colliers International Immobilienmakler GmbH
T +43 1 535 53 05531
F +43 1 535 53 25
Dieser Makler ist ein offizielles Mitglied des IR – ir.at Mehr Erfahren
