Mödling - schlüsselfertig - Garten

Wohnung , 2340 Mödling


Ruhelage

Beschreibung der Immobilie

Mödling - schlüsselfertig - Garten

Schlüsselfertige 3-Zimmer-Wohnung mit Balkon, Gartenanteil und Kellerabteil



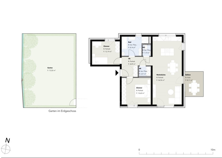
Diese schlüsselfertige 3-Zimmer-Wohnung überzeugt durch eine durchdachte Raumaufteilung und lichtdurchflutete Wohnbereiche. Der großzügige Wohn-Essbereich ist nord-südseitig ausgerichtet und bietet direkten Zugang zum Balkon – ideal für entspannte Stunden im Freien. Zwei Schlafzimmer, eines süd-, das andere nordseitig gelegen, sorgen für angenehme Rückzugsmöglichkeiten. Beide Schlafzimmer sind mit moderner Wohnraumlüftung ausgestattet. Die Wohnung wird mittels Luftwärmepumpe über die Fußbodenheizung beheizt und im Sommer über die Deckenkühlung gekühlt.



Im Badezimmer sind Dusche, Badewanne und ein Waschbecken verbaut, das separate WC ist mit einem Handwaschbecken ausgestattet. Der praktische Abstellraum verfügt über einen Waschmaschinenanschluss.



Zur Wohnung gehören ein eigenes Kellerabteil mit Stromanschluss sowie ein großzügiger Gartenanteil von ca. 73 m² – perfekt für Gartenliebhaber oder Familien.



Besichtigungstermine können gerne unter 0699/1144 5580 vereinbart werden.


Wir weisen darauf hin, dass zwischen dem Vermittler und dem zu vermittelnden Dritten ein familiäres oder wirtschaftliches Naheverhältnis besteht.


Der Vermittler ist als Doppelmakler tätig.

Eckdaten Objektnr. 25050

Art: Wohnung
Land: Österreich
Baujahr: 2024
Zustand: Erstbezug
Alter: Neubau
Kaufpreis: 549.000,00
Provision: 19.764,00 € inkl. 20% USt.
Betriebskosten: 179,13 €
Heizkosten: 98,67 €
MwSt Gesamt: 37,90 €
Wohnfläche: 84,32 m²
Grundstücksfl.: 75,50 m²
Zimmer: 3
Bäder: 1
WC: 1
Balkone: 1
Garten: 75,50 m²
Keller: 6,17 m²
Heizwärmebedarf:  B  31,10 kWh/m²a
fGEE:  A++  0,48
Immobilie merken Exposé

Ausstattung

Fliesen, Parkett, Fußbodenheizung, Wohnküche / offene Küche, Personenaufzug, Südbalkon, Bad mit Fenster, Badewanne, Dusche


Immobilie anfragen


Ihre persönliche Beratung

Rauch Immobilien GmbH

Franz Rauch

Rauch Immobilien GmbH

T +43 2236 52463

H +43 699 11445580

F +43 2236 52463