Paradies-Liebhaber aufgepasst! Detailreiches Ein oder Mehrfamilienhaus!

Haus - Einfamilienhaus, 2113 Karnabrunn


Die Immobilie befindet sich in Karnabrunn, welche eine Katastralgemeinde von Großrußbach im Bezirk Korneuburg/NÖ ist. Dieses charmante Einfamilienhaus in Karnabrunn, Niederösterreich, bietet eine ruhige und familienfreundliche Lage. Umgeben von der malerischen Natur der Region, genießen Sie hier die perfekte Balance zwischen ländlichem Leben und Annehmlichkeiten. In unmittelbarer Nähe finden Sie sowohl eine Bushaltestelle der eine hervorragende Anbindung an die umliegenden Städte gewährleistet. Ideal für alle, die eine entspannte Lebensweise schätzen!

Beschreibung der Immobilie

Paradies-Liebhaber aufgepasst! Detailreiches Ein oder Mehrfamilienhaus!

Kurzinformation für eilige Leser




  • Einfamilienhaus mit rund 330 m² Nutzfläche



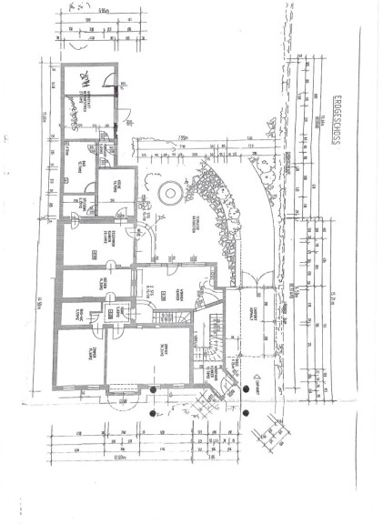
  • Erdgeschoss: Eingangsbereich, Kaminzimmer, Gangbereich, Wohnzimmer, Schlafzimmer, Badezimmer mit WC und Dusche, Durchgangszimmer, Esszimmer, Küche mit Speis, weiteres Badezimmer mit Dusche und Solarium, zusätzliches Schlafzimmer



  • Obergeschoss: Großer Wohn-Essbereich (Küchenanschluss vorhanden), großzügiges Badezimmer mit Dusche, WC und Badewanne, Schrankraum, breiter Gang und großes Schlafzimmer



  • Separate Einheiten möglich – Eingangsbereich führt sowohl ins Erd- als auch ins Obergeschoss



  • Grundstücksfläche: ca. 844 m² (lt. Grundbuch)



  • Carport vorhanden



  • Beheizung: Gas



  • Keller: ca. 17 m² (Technikraum und Stauraum)



  • Massivbauweise



  • Brunnen zur Gartenbewässerung



  • Stimmungsvoller Teich mit Koi-Fischen



  • Wellnessbereich mit Sauna, Whirlpool und Swimmingpool









Ausführliche Objektbeschreibung



Das Wohnhaus



Die ersten Dokumente zur Liegenschaft stammen laut Gemeinde aus dem Jahr 1991 (Zubau). Das genaue Baujahr des Haupthauses ist daher nicht bekannt.

Im Jahr 1996 wurde das Gartenhaus mit Sauna und Whirlpool eingereicht, der Dachgeschossausbau erfolgte zwischen 2004 und 2008.



Der Zugang zum Haus erfolgt über einige Stufen in einen zentralen Vorraum, der sowohl ins Erd- als auch ins Obergeschoss führt – die beiden Einheiten sind somit separat nutzbar.



Im Erdgeschoss gelangt man über das freundliche Kaminzimmer in die weiteren Räumlichkeiten.

Ein großzügiger Gang führt linkerhand zum Wohnzimmer und Schlafzimmer, geradeaus ins Badezimmer.

Rechts befindet sich ein Durchgangszimmer, das in das großzügige Esszimmer führt. Von hier gelangt man in die Küche mit angrenzender Speis.

Ein weiterer Gang führt zum zweiten Badezimmer mit Dusche und Solarium sowie zu einem zweiten Schlafzimmer.



Über eine geschwungene Treppe erreicht man das Obergeschoss. Hier befindet sich ein heller Wohn-Essbereich (aktuell als Büro genutzt, Küchenanschlüsse vorhanden), ein großzügiges Badezimmer mit Dusche, WC und Badewanne, ein Schrankraum, ein breiter Gang sowie ein geräumiges Schlafzimmer.





In den letzten Jahren wurden viele Sachen erneuert: z.B. Fenster, Küche, Pooltechnik, ........








Der Keller



Der Keller (ca. 17 m²) wird als Technikraum und Lagerfläche genutzt.








Garten und Außenbereich



Ein echtes Highlight ist der liebevoll angelegte Garten, der mit seiner Schlossoptik besonders im Hofbereich beeindruckt.

Mehrere Terrassentüren führen aus den Innenräumen auf die großzügige Terrasse mit Markise. Von hier gelangt man direkt zum Carport.

Am Haus angeschlossen befindet sich ein Hauswirtschaftsraum mit Platz für Waschmaschine und Trockner.



Der Koiteich (auf Wunsch entfernbar) beherbergt wunderschöne Koi-Fische und sorgt gemeinsam mit der Sauna, dem Whirlpool und dem Swimmingpool für ein einzigartiges Wohlfühlambiente.

Das Swimmingpool wurde vor wenigen Jahren erneuert und ist über einige Stufen erreichbar – perfekt für sommerliche Entspannung oder Poolpartys.








Technik & Heizung



Die Beheizung und Warmwasseraufbereitung erfolgen über eine Gastherme, gesteuert mittels Heizkörpern.






Betriebskosten




  • Gemeindekosten (Grundsteuer, Wasser, Kanal, Bereitstellung, Abfall, Hundeabgabe):
    ca. € 551 / Quartal









🏫 Bildungseinrichtungen



  • Kindergärten: Der nächste Kindergarten ist in Großrußbach in 3,7 km Entfernung.
  • Volksschule: Eine Volksschule befindet sich in Großrußbach und eine in Ernstbrunn (ca. 6,5 km entfernt).
  • Mittelschule: Die Mittelschule ist in Ernstbrunn.



🏥 Gesundheitsversorgung



  • Landesklinikum Korneuburg: Bietet eine umfassende medizinische Versorgung in der Region.
  • Allgemeine Ärzte: Befinden sich in Großrußbach und Ernstbrunn.
  • Fachärzte: Verschiedene Fachärzte ordinieren in den umliegenden Gemeinden.



🛍️ Nahversorgung



In Karnabrunn selbst gibt es derzeit keine Filialen von großen Supermarktketten wie BILLA, BIPA oder PENNY. Die nächstgelegenen Einkaufsmöglichkeiten befinden sich in den angrenzenden Gemeinden. Nahversorger gibt es in Karnabrunn folgende:



  • Metzgerei Pfennigbauer: Laaer Straße 21.
  • Kuchlkastl (Lebensmittel): Laaer Straße 4.
  • 24 Stunden Shop (Saisonale Produkte und Wein): Laaer Straße 11a. 


Diese Geschäfte bieten eine Nahversorgung und sind sowohl zu Fuß, mit dem Fahrrad als auch mit dem Auto gut erreichbar.




🚍 Öffentlicher Verkehr



Busverbindungen:



  • Linie 858: Verbindet Karnabrunn mit Korneuburg und weiteren Haltestellen in der Umgebung.


Aktuelle Fahrpläne und Verbindungen sind über den Verkehrsverbund Ost-Region (VOR) abrufbar: www.vor.at



Bahnverbindungen:



Der Bahnhof Korneuburg bietet regelmäßige Zugverbindungen nach Wien und in andere Regionen. Ein Park&Ride und Parkanlagen rund um den Bahnhof stehen zur Verfügung. 




🚗 Auto-Anbindung:



  • Die Wiener Stadtgrenze ist in ca. 20 Minuten erreichbar.
  • Anschluss an die B6 und S1 sorgt für gute regionale und überregionale Anbindung.



🌳 Besonderheiten & Freizeit



Karnabrunn bietet eine hohe Lebensqualität mit zahlreichen Freizeitmöglichkeiten. Die Umgebung lädt zu Spaziergängen und Radtouren ein.





Wichtig



Unter bestimmten Voraussetzungen (Anmeldung als Hauptwohnsitz, dringendes Wohnbedürfnis), kommen Sie jetzt in den Genuss der Gebührenbefreiung von der Grundbucheintragungsgebühr (1,1%) und der Eintragungsgebühr des Pfandrechts (1,2%)!





SIE SIND NOCH UNSCHLÜSSIG, OB IHRE FINANZIERUNG GESICHERT IST?



Ihre Hausbank benötigt im Normalfall 4-6 Wochen, um Ihnen mitzuteilen, ob Ihr Kredit bewilligt wird, oder nicht. Unser Finanzierungspartner sagt Ihnen nicht nur anhand Ihrer Unterlagen in kürzester Zeit, ob die Finanzierung klappen wird, er sorgt auch für den besten und günstigsten Wohnkredit, da er Zugang zu den besten Angeboten aller relevanten Banken hat.




Hinweis gemäß Energieausweisvorlagegesetz: Ein Energieausweis wurde vom Eigentümer bzw. Verkäufer, nach unserer Aufklärung über die generell geltende Vorlagepflicht, sowie Aufforderung zu seiner Erstellung noch nicht vorgelegt. Daher gilt zumindest eine dem Alter und der Art des Gebäudes entsprechende Gesamtenergieeffizienz als vereinbart. Wir übernehmen keinerlei Gewähr oder Haftung für die tatsächliche Energieeffizienz der angebotenen Immobilie.


Wir weisen darauf hin, dass zwischen dem Vermittler und dem zu vermittelnden Dritten ein familiäres oder wirtschaftliches Naheverhältnis besteht.


Der Vermittler ist als Doppelmakler tätig.

Infrastruktur / Entfernungen

Gesundheit
Arzt <3.500m
Apotheke <8.000m

Kinder & Schulen
Schule <4.000m
Kindergarten <4.000m

Nahversorgung
Supermarkt <3.500m
Bäckerei <5.500m

Sonstige
Bank <4.000m
Geldautomat <6.000m
Post <4.000m
Polizei <8.000m

Verkehr
Bus <500m
Bahnhof <1.000m

Angaben Entfernung Luftlinie / Quelle: OpenStreetMap

Eckdaten Objektnr. 6547/4103

Art: Haus - Einfamilienhaus
Land: Österreich
Zustand: Modernisiert
Kaufpreis: 549.000,00
Provision: 3% des Kaufpreises zzgl. 20% USt.
Nutzfläche: 330,00 m²
Grundstücksfl.: 844,00 m²
Zimmer: 7
Bäder: 3
WC: 2
Keller: 17,00 m²
Immobilie merken Exposé

Ausstattung

Gas


Immobilie anfragen


Ihre persönliche Beratung

TRUE Immobilien GmbH & Co KG

Markus Dassler

CPS Immobilien Sezgin e.U.

H +43 664 7505 17 72