Schöne 3 Zimmerwohnung mit Balkon in der Nibelungenstadt Pöchlarn

Wohnung , 3380 Pöchlarn , Weiherweg


Beschreibung der Immobilie

Schöne 3 Zimmerwohnung mit Balkon in der Nibelungenstadt Pöchlarn

Willkommen in Ihrem neuen Zuhause in der charmanten Stadt Pöchlarn! Diese gepflegte Wohnung bietet Ihnen nicht nur ein komfortables Wohnambiente, sondern auch eine hervorragende Lebensqualität. 



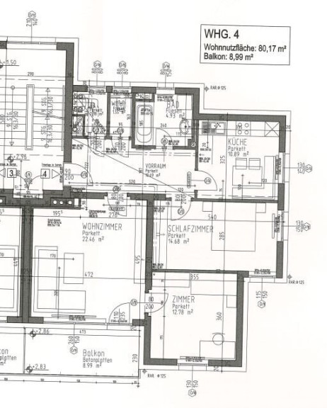
Mit einer großzügigen Fläche von 80,17 m² erstreckt sich diese lichtdurchflutete Wohnung über drei gut geschnittene Zimmer, die Ihnen vielfältige Gestaltungsmöglichkeiten bieten. Ob Sie ein behagliches Wohnzimmer für entspannte Abende, ein Homeoffice für konzentrierte Arbeitstage oder ein Kinderzimmer für Ihre Kleinen schaffen möchten – hier finden Sie den perfekten Raum für Ihre individuellen Bedürfnisse.




Besonders hervorzuheben ist der herrliche Balkon, welcher vom Wohnzimmer aus begehbar ist. Dieser lädt dazu ein, die frische Luft und die sonnigen Tage in vollen Zügen zu genießen. Stellen Sie sich vor, wie Sie hier mit einem Kaffee in der Hand den Morgen begrüßen oder den Abend mit der Familie oder Freunden ausklingen lassen.



Die Küche ist separat angelegt und direkt vom Vorzimmer aus begehbar.



Das Wohnzimmer, sowie ein Schlafzimmer sind ebenfalls direkt von Vorzimmer aus begehbar.



Ein weiteres Schlafzimmer erreichen Sie vom Wohnzimmer aus. 



Das Badezimmer ist mit einer Badewanne ausgestattet, die zum Entspannen einlädt, während Sie in einem separaten Raum auch die Toilette vorfinden.



Der Abstellraum sorgt für extra Stauraum.



Jeder Wohnung ist ein Kellerabteil sowie ein PKW Stellplatz zugeteilt.



Die Stadtgemeinde verfügt über eine gute Verkehrsanbindung, sowohl an die Westautobahn (A1) als auch an die Westbahnstrecke.  Pöchlarn ist bekannt für seine malerische Altstadt, besonders sehenswert ist die Pfarrkirche Maria Himmelfahrt. Genauso sehenswert ist jedoch das Freizeitangebot in Pöchlarn – egal ob Fischen, Wandern, Radfahren oder Tennis – ein breites Freizeitangebot wird in Pöchlarn großgeschrieben.



Nutzen Sie die Gelegenheit und werden Sie Teil dieser lebenswerten Gemeinschaft in Pöchlarn. 



Befristung: unbefristet, 1 Jahr Kündigungsverzicht 3 Monate Kündigungsfrist 



Bezug: ab sofort



Energiekennzahlen: Laut Energieausweis vom 23.2.2022 beträgt der Heizwärmebedarf 33,20 kWh/m²a Klasse B und der Gesamtenergieeffizienz-Faktor 1,05 Klasse C.



Der einmalige Finanzierungsbeitrag beträgt € 12.195,34 und die monatliche Miete beläuft sich auf € 681,45 inkl. BK und Ust.



Die derzeitigen Kosten für Warmwasser und Heizung betragen € 171,16.



Noch nichts gefunden? Wir informieren Sie über geeignete Immobilienangebote noch vor allen anderen.
Legen Sie jetzt Ihren individuellen Suchagenten unter folgendem Link an. Wir schicken Ihnen passende Immobilien exklusiv vorab zu.
Suchagent anlegen - https://heimat-oesterreich.service.immo/registrieren/de

Infrastruktur / Entfernungen

Gesundheit
Arzt <500m
Apotheke <500m
Krankenhaus <9.750m

Kinder & Schulen
Schule <500m
Kindergarten <250m
Universität <9.500m

Nahversorgung
Supermarkt <250m
Bäckerei <750m
Einkaufszentrum <3.750m

Sonstige
Bank <500m
Geldautomat <500m
Post <750m
Polizei <500m

Verkehr
Bus <250m
Autobahnanschluss <2.250m
Bahnhof <1.250m

Angaben Entfernung Luftlinie / Quelle: OpenStreetMap

Eckdaten Objektnr. 4907

Art: Wohnung
Land: Österreich
Baujahr: 2006
Zustand: Gepflegt
Alter: Neubau
Gesamtmiete: 681,45
Kaltmiete (netto): 681,45 €
Kaltmiete: 681,45 €
Provision: Provisionsfrei
Wohnfläche: 80,17 m²
Zimmer: 3
Bäder: 1
WC: 1
Balkone: 1
Stellplätze: 1
Heizwärmebedarf:  B  33,20 kWh/m²a
fGEE:  C  1,05
Immobilie merken Exposé

Ausstattung

Fernwärme, Badewanne, Parkplatz, Wasch/Trockenraum


Immobilie anfragen


Ihre persönliche Beratung

Luisa Burkhardt

Heimat Österreich gemeinnützige Wohnungs- und Siedlungsgesellschaft m.b.H.

T +43 1 9823601 637

H 0676 3794347