Betriebsobjekt 435m² mit Einfahrt Nähe Linzer Straße - 1140 Wien
                                                            Halle / Lager / Produktion
                                - Produktion,
                            
                            
                                
                                                                            1140
                                    
                                                                            Wien
                                    
                                    
                                
                                                                    
                                        
                                    
                                
                            
                        
                        Viktoriagasse
Beschreibung der Immobilie
Betriebsobjekt 435m² mit Einfahrt Nähe Linzer Straße - 1140 Wien
Zinshaus 435m² als Betriebsobjekt mit Wohnung, Büro, Werkstatt- und Lagerflächen!
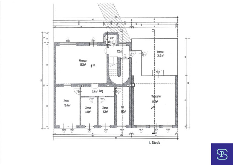
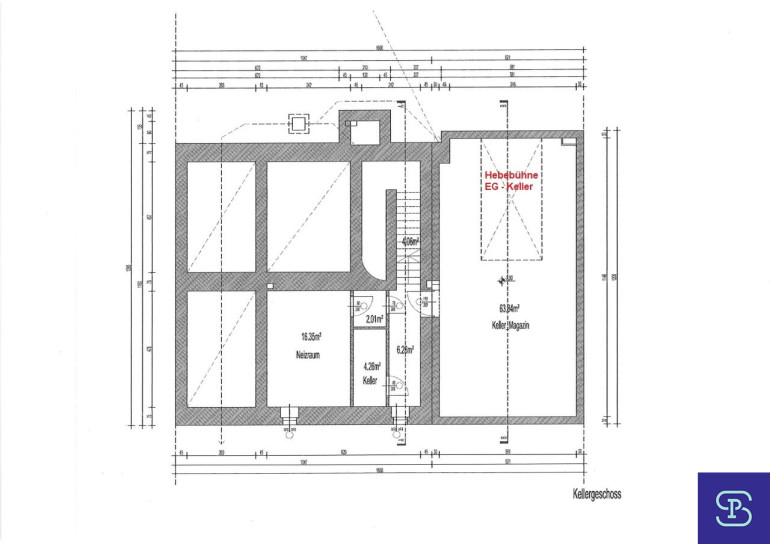
Zur Vermietung gelangt ein Zinshaus mit 435m² Nutzfläche in einer zentral gelegenen Seitengasse zwischen Linzer Straße und Märzstraße. Die Liegenschaft wurde bisher als Betriebsobjekt genutzt, verfügt über eine Ladezone und besteht aus 160m² EG als Werkstätte oder Lager mit großer Einfahrt, 90m² Keller mit großer Hebebühne zum EG, 1. Stock mit 135m² + 26m² Terrasse (Wohnung oder Büro) sowie ein Hofgebäude mit 50m² (Wohnung oder Büro) und ein kleiner Garten.
Ausstattung: Neuwertige Hauszentralheizung (Holz, Pellets), Hebebühne EG in den Keller, 2 Fliesenbäder (1x Wanne, 1x Dusche), 2 Einbauküchen, Kunstofffenster, große Einfahrtsmöglichkeit mit Garagentor, separate, großzügige Wohnung im 1. Stock mit Wintergarten und großer Terrasse, renoviertes Hofgebäude mit 2 Etagen als Büro oder Wohnung nutzbar,. Die Liegenschaft verfügt über eine Ladezone vor dem Gebäude.
Das Mietobjekt wird geräumt und leer übergeben. Gute, zentrale Lage Nähe Linzer Straße, Johnstraße und Goldschlagstraße mit guter Infrastruktur und öffentlicher Verkehrsanbindung durch die Straßenbahnlinien 10, 52 und Autobus 10A sowie U3 und S-Bahn in Gehdistanz.
Das Mietobjekt wird ab sofort in befristeter Hauptmiete (10 Jahre+) vermietet!
Gesamtmiete inkl. Bk netto € 4.600,- zuzügl. 20% USt.
(HMZ netto € 4.500,- + Bk € 100,- + 20% USt. € 920,-)
Kaution € 17.000,-
Vermittlungshonorar 3MM zuzügl. 20% USt.
KONTAKT: Anfragen bitte nur per Email-Anfragefunktion! Keine telefonische Terminvergabe!
Besuchen Sie für unsere weiteren Angebote bitte auch unsere Homepage: www.sitarz.at
Der Mieter zahlt im Erfolgsfall an die Firma Sitarz & Partner Immobilien GmbH eine Maklerprovision in Höhe von 1 Nettomonatsmiete zzgl. 20% USt. bei einer Befristung von weniger als 2 Jahren, bzw. 2 Nettomonatsmieten zzgl. 20% USt. bei einer Befristung von mehr als 2 Jahren, jedoch nicht mehr als 3 Jahren. Bei einer Befristung über 3 Jahren sowie bei unbefristeten Verträgen sind 3 Nettomonatsmieten zzgl. 20% USt. fällig. Die Provision errechnet sich aus der im Mietvertrag vereinbarten Nettomiete inkl. Betriebskosten. Ausdrücklich vereinbart wird dieser Provisionsanspruch in gleicher Höhe auch für die in § 15 MaklerG vorgesehenen Fälle (Unterlassung eines notwendigen Rechtsaktes wider Treu und Glauben, Abschluss eines zweckgleichen Geschäftes, Abschluss mit einem Dritten aufgrund der Weitergabe der Abschlussmöglichkeit, Ausübung eines Vorkaufs-, Wiederkaufs- oder Eintrittsrechtes). Falls Ihnen dieses Objekt bereits als verkauf- oder vermietbar bekannt ist, ersuchen wir innerhalb von 3 Werktagen um Ihre schriftliche Nachricht, ansonsten gilt die Provisionsregelung als vereinbart. Bei den Größen und Ertragsangaben handelt es sich um die von Abgeber/in (Eigentümer/in bzw. Hausverwaltung) zur Verfügung gestellten Informationen. Die Angaben wurden von uns kontrolliert, eine Gewähr für die Richtigkeit, Vollständigkeit und Letztstand müssen wir allerdings ausschließen. Es wird darauf hingewiesen, dass zwischen dem Abgeber und dem Immobilienmakler ein wirtschaftliches bzw. familiäres Nahverhältnis besteht und der Immobilienmakler auch für diesen tätig ist (Doppelmakler).
Hinweis gemäß Energieausweisvorlagegesetz: Ein Energieausweis wurde vom Eigentümer bzw. Verkäufer, nach unserer Aufklärung über die generell geltende Vorlagepflicht, sowie Aufforderung zu seiner Erstellung noch nicht vorgelegt. Daher gilt zumindest eine dem Alter und der Art des Gebäudes entsprechende Gesamtenergieeffizienz als vereinbart. Wir übernehmen keinerlei Gewähr oder Haftung für die tatsächliche Energieeffizienz der angebotenen Immobilie.
Wir weisen darauf hin, dass zwischen dem Vermittler und dem zu vermittelnden Dritten ein familiäres oder wirtschaftliches Naheverhältnis besteht.
Der Vermittler ist als Doppelmakler tätig.
Infrastruktur / Entfernungen
Gesundheit
Arzt <500m
Apotheke <500m
Klinik <1.000m
Krankenhaus <2.000m
Kinder & Schulen
Schule <500m
Kindergarten <500m
Universität <500m
Höhere Schule <2.000m
Nahversorgung
Supermarkt <500m
Bäckerei <500m
Einkaufszentrum <1.000m
Sonstige
Geldautomat <1.000m
Bank <1.000m
Post <1.000m
Polizei <1.000m
Verkehr
Bus <500m
U-Bahn <1.000m
Straßenbahn <500m
Bahnhof <1.000m
Autobahnanschluss <4.000m
Angaben Entfernung Luftlinie / Quelle: OpenStreetMap
Eckdaten Objektnr. 7596
| Art: | Halle / Lager / Produktion - Produktion | 
| Land: | Österreich | 
| Baujahr: | 1915 | 
| Alter: | Altbau | 
| Kaltmiete (netto): | 4.500,00 € | 
| Kaltmiete: | 4.600,00 € | 
| Miete / m²: | 10,34 € | 
| Provision: | 16.560,00 € inkl. 20% USt. | 
| Betriebskosten: | 100,00 € | 
| MwSt Gesamt: | 920,00 € | 
| Nutzfläche: | 435,00 m² | 
| WC: | 3 | 
| Terrassen: | 1 | 
| Garten: | 100,00 m² | 
| Keller: | 90,00 m² | 
Ausstattung
Parkett, Dielenboden, Estrichboden, Fliesen, Etagenheizung, Einbauküche, Wohnküche / offene Küche, Badewanne, Dusche, Bad mit Fenster, Kabel/Satelliten-TV
Ihre persönliche Beratung
 
                                                        Sitarz & Partner Immobilien GmbH
Sitarz & Partner Immobilien GmbH
T +4318907940
 
                 
                 
                 
                 
                 
                 
                 
                 
                 
                 
                 
                 
                 
                 
                 
                 
                 
                 
                 
                 
                 
                 
                 
                 
                 
                 
                 
                 
                 
                