ZWEIWOHNUNGS-KOMBI MIT FÜNF ZIMMERN UND BALKON

Wohnung - Etage, 2136 Laa an der Thaya , Staatsbahnstraße


zentral, in Bahnhofsnähe

Beschreibung der Immobilie

ZWEIWOHNUNGS-KOMBI MIT FÜNF ZIMMERN UND BALKON

GROSSE

GROSSARTIGE

GROSSWOHNUNG

mit zentraler Wohnküche, 

mit vier Wohn-Schlafzimmern

 



L A N G T E X T  I M   E X P O S E E



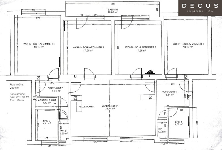
Objekt und Ausstattung

Diese großzügige Wohnung ist 1. Stock

eines generalsanierten und thermisch isolierten,
gepflegten Neubaus aus dem Jahr 1966 situiert. 



Die große Wohnküche erschliesst 

die 4 Wohn-Schafzimmer und die Nebenräume zentral.



Die Wohnung wurde durch Wohnungszusammenlegung umgestaltet,

und ist aus zwei Stiegenhäuser erschlossen,



Die Heizung:Etagenheizung mit Pelletkamin, der händisch befüllt wird,

ein gemütlicher Ofen mit sichtbarer Flamme. :)
Die Warmwasserbereitung: Warmwasserboiler.

2 geräumige Kellerabteile ( 2x7 m²)



Raumaufteilung
-  2 Vorrzimmer

-  2 Bäder mit Wanne, mit Fenster

-  2 separate WCs mit Fenster

-  Abstellraum

-  zentrale Wohnküche (ca 32m²)

   mit kompletter Einbauküche 

-  4 Wohn-Schlafzimmer

-  2 große Kellerabteile ( je 7m²)

-  kostenlose Parkplätze sind gartenseitig zur Verfügung



Preis
Kaufpreis: € 245.000
Provision: 3% + USt



Lage und Umfeld
Die Stadtgemeinde Laa an der Thaya 

bildet das Zentrum des oberen Weinviertels.



Zentrale Lage in Laa an der Thaya

- optimale infrastrukturelle Versorgung (5 Min zum Supermarkt)

- optimale öffentliche Verkehrsanbindung (Schnellbahn S2)
 


Der Vermittler ist als Doppelmakler tätig.

DECUS Immobilien GmbH – Wir beleben Räume

Für weitere Informationen und Besichtigungen steht Ihnen gerne Herr  Elemér Szüts unter der Mobilnummer +43 664 11 888 16und per E-Mail unter szuets@decus.at persönlich zur Verfügung.

www.decus.at | office@decus.at 

Wichtige Informationen

Bitte beachten Sie, dass per 13.06.2014 eine neue Richtlinie für Fernabsatz- und Auswärtsgeschäfte in Kraft getreten ist.

Ab 1.4.2024 entfallen die Grundbuchs- und Pfandrechtseintragungsgebühren vorübergehend für Eigenheime bis zu einer Bemessungsgrundlage von EUR 500.000,-. Voraussetzung ist das dringende Wohnbedürfnis, ausgenommen davon sind vererbte oder geschenkte Immobilien. Die Befreiung ist jedoch für den Einzelfall zu prüfen, DECUS Immobilien übernimmt hierzu keine Haftung.

Ab 01.07.2023 gilt das Erstauftraggeber-Prinzip bei Wohnungsmietverträgen, ausgenommen davon sind Dienst-/Natural-/Werkswohnungen. Wir dürfen gem. § 17 Maklergesetz darauf hinweisen, dass wir auf die Doppelmaklertätigkeit gem. § 5 Maklergesetz bei Wohnungsmietverträgen verzichten und nur noch einseitig tätig sind (bei den restlichen Vermittlungsarten nicht) und ein wirtschaftliches Naheverhältnis zu unseren Auftraggebern besteht. 

Im Falle eines Abschlusses mit Ihnen oder einem von Ihnen namhaft gemachten Dritten bzw. bei beidseitiger Willensübereinstimmung beträgt unser Honorar (lt. Honorarverordnung für Immobilienmakler) 2 Bruttomonatsmieten (BMM) bei Dienst-/Natural-/Werkwohnungen sowie Suchaufträgen, 3 BMM bei Gewerbe-, PKW-, Keller- und Lagermietverträgen sowie bei Kaufobjekten 3 % des Kaufpreises, zuzüglich der gesetzlichen Umsatzsteuer.

Dieses Objekt wird Ihnen unverbindlich und freibleibend angeboten. Oben angeführte Angaben basieren auf Informationen und Unterlagen des Eigentümers und sind unsererseits ohne Gewähr.

Nähere Informationen sowie unsere AGBs und die Nebenkostenübersichtsblatt finden Sie auf unserer Homepage www.decus.at unter "Service" - "Rechtliches zum FAGG" sowie im Anhang der zugesendeten Objekt-Exposés!

Infrastruktur / Entfernungen

Gesundheit
Arzt <8.000m
Apotheke <1.250m

Kinder & Schulen
Schule <500m
Kindergarten <500m

Nahversorgung
Supermarkt <250m
Bäckerei <500m
Einkaufszentrum <1.750m

Sonstige
Geldautomat <1.250m
Bank <1.250m
Polizei <1.500m
Post <1.250m

Verkehr
Bus <250m
Bahnhof <500m

Angaben Entfernung Luftlinie / Quelle: OpenStreetMap

Eckdaten Objektnr. 1151464

Art: Wohnung - Etage
Land: Österreich
Baujahr: 1964
Zustand: Voll_saniert
Alter: Neubau
Kaufpreis: 245.000,00
Provision: 3% des Kaufpreises zzgl. 20% USt.
Betriebskosten: 103,95 €
MwSt Gesamt: 10,40 €
Wohnfläche: 130,00 m²
Nutzfläche: 140,00 m²
Gesamtfläche: 130,00 m²
Zimmer: 5
Bäder: 2
WC: 2
Stellplätze: 1
Keller: 14,00 m²
Heizwärmebedarf:  C  50,30 kWh/m²a
fGEE:  C  1,58
Immobilie merken Exposé

Ausstattung

Parkett, Fliesen, Etagenheizung, Wohnküche / offene Küche, Einbauküche, Bad mit Fenster, Badewanne, Kabel/Satelliten-TV, Parkplatz


Immobilie anfragen


Ihre persönliche Beratung

DECUS Immobilien GmbH

Elemér Szüts

DECUS Immobilien GmbH

T +43 664 11 888 16

H +43 664 11 888 16

F +43 1 35 600 10