Exklusive Reihenhausanlage mit 6 Wohneinheiten Nahe Krems (www.weinrose.at)

Haus - Reiheneckhaus, 3506 Brunnkirchen


Die niederösterreichische Weinbaugemeinde Brunnkirchen befindet sich im Bezirk Krems und ist nur ca. 5km vom Stadtzentrum Krems entfernt (8 Fahrminuten mit dem Auto und 12 Minuten mit dem Bus) In Donaunähe gelegen ist Brunnkirchen ein äußerst charmanter Vorort, der Anwohnern mit seiner Nähe zur Wachau eine ideale Symbiose aus Erholungsgebiet in Donaunähe und stadtnahem Wohnen bietet. Zahlreiche Fahrradwege entlang der Donau und alle Vorzüge der angrenzenden Wachau Region bieten zahlreiche Erholungs- und Erlebnismöglichkeiten.

Beschreibung der Immobilie

Exklusive Reihenhausanlage mit 6 Wohneinheiten Nahe Krems (www.weinrose.at)

In absoluter Grün- und Ruhelage, nur wenige Fahrminuten von Krems entfernt errichtet die CEWE Gruppe eine idyllische Reihenhausanlage mit zwei Baukörpern, die in jeweils drei exklusive Wohneinheiten mit Eigengärten aufgeteilt sind. Alle Reihenhäuser werden als Eigentumsobjekte belagsfertig in hochwertiger Ausführung verkauft.



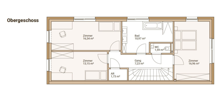
Die Reihenhäuser werden in bester Ziegelmassiv-Bauweise erbaut, haben 4 helle Wohn- und Schlafräume und überzeugen zudem durch eine einzigartige und unverbaubare Ruhelage mit Blick ins Grüne.



Änderungs- bzw. Sonderwünsche von Käufern werden, sofern umsetzbar, gerne berücksichtigt. Ein „Schlüsselfertige-Paket“ kann in unterschiedlichen Ausführungen auf Kundenwunsch gerne angeboten werden.



Highlights:



  • Ziegel-Massivhaus höchster Qualität
  • 3-fachverglaste Kunststoff-Alu-Fenster mit hochwertigen elektrischen Raffstores
  • Effiziente Luftwärmepumpe mit Markenqualität 
  • Fußbodenheizung in allen Wohn- und Schlafräumen
  • 2 separate WCs und großzügiges Bad mit Badewanne und Fenster
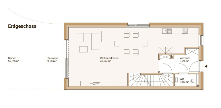
  • Süd-West-seitiger Eigengarten und Terrasse zur alleinigen Nutzung
  • 2 Stellplätze (teils mit Carport)
  • Kellergeschoß gegen Aufpreis


mehr unter:

www.weinrose.at






Wir weisen darauf hin, dass zwischen dem Vermittler und dem zu vermittelnden Dritten ein familiäres oder wirtschaftliches Naheverhältnis besteht.


Der Vermittler ist als Doppelmakler tätig.

Infrastruktur / Entfernungen

Gesundheit
Arzt <2.000m
Apotheke <2.500m
Klinik <2.500m
Krankenhaus <3.500m

Kinder & Schulen
Schule <2.000m
Kindergarten <500m
Universität <4.000m
Höhere Schule <3.000m

Nahversorgung
Supermarkt <2.000m
Bäckerei <2.000m
Einkaufszentrum <4.000m

Sonstige
Bank <2.500m
Geldautomat <2.500m
Post <3.000m
Polizei <3.000m

Verkehr
Bus <500m
Autobahnanschluss <1.000m
Bahnhof <2.000m
Flughafen <7.000m

Angaben Entfernung Luftlinie / Quelle: OpenStreetMap

Eckdaten Objektnr. 38200

Art: Haus - Reiheneckhaus
Land: Österreich
Baujahr: 2026
Zustand: Erstbezug
Alter: Neubau
Kaufpreis: 499.000,00
Provision: 3% des Kaufpreises zzgl. 20% USt.
Wohnfläche: 124,38 m²
Grundstücksfl.: 142,27 m²
Zimmer: 4
Bäder: 1
WC: 2
Terrassen: 1
Garten: 57,89 m²
Heizwärmebedarf:  B  28,00 kWh/m²a
fGEE:  A+  0,69
Immobilie merken Exposé

Ausstattung

Parkett, Fußbodenheizung, Badewanne, Bad mit Fenster, Carport


Immobilie anfragen


Ihre persönliche Beratung

Mag. Marton Matura

Wohnkonzept Immobilien GmbH

H +43 676 748 7498