Kleines, modernes Bauträgerprojekt in 8570 Voitsberg

Wohnung , 8570 Voitsberg


Beschreibung der Immobilie

Kleines, modernes Bauträgerprojekt in 8570 Voitsberg

Das moderne Bauträgerprojekt in der Franz-Schöpfer-Gasse in 8570 Voitsberg zeichnet sich durch seine durchdachten Grundrisse, dem modernen Design und die perfekte Infrastruktur aus.



Für all jene Menschen, die KLASSE, statt MASSE bevorzugen ist dieses Projekt genau das Richtige !!!



Nur 5 Wohneinheiten in Objekt I und eine Wohneinheit im Baukörper II (Bestandsumbau Top 6, freistehendes Haus).



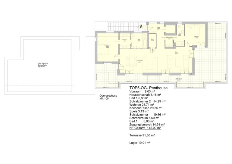
Außergewöhnlich und kompromisslos ist auch das Penthouse mit eigenem Lift direkt in den Vorraum.



Informieren Sie sich bei einem persönlichem Gespräch !



Aufpreis Stellplatz P5: € 22.000,--



Finanzierung:   10% Anzahlung - Restzahlung nach Fertigstellung bei Übergabe !


Der Vermittler ist als Doppelmakler tätig.

Infrastruktur / Entfernungen

Gesundheit
Arzt <500m
Apotheke <1.000m
Klinik <2.500m
Krankenhaus <1.000m

Kinder & Schulen
Schule <500m
Kindergarten <500m

Nahversorgung
Supermarkt <1.000m
Bäckerei <1.000m
Einkaufszentrum <1.500m

Sonstige
Geldautomat <1.000m
Bank <1.000m
Post <1.000m
Polizei <1.000m

Verkehr
Bus <500m
Bahnhof <1.500m

Angaben Entfernung Luftlinie / Quelle: OpenStreetMap

Eckdaten Objektnr. 988

Art: Wohnung
Land: Österreich
Baujahr: 2027
Alter: Neubau
Kaufpreis: 910.000,00
Provision: 32.760,00 € inkl. 20% USt.
Wohnfläche: 142,00 m²
Zimmer: 3
Bäder: 2
WC: 1
Terrassen: 1
Keller: 9,08 m²
Heizwärmebedarf:  C  63,00 kWh/m²a
fGEE:  A  0,81
Immobilie merken Exposé

Ausstattung

Fliesen, Parkettboden, Parkett, Fußbodenheizung, Dusche


Immobilie anfragen


Ihre persönliche Beratung

TERRA MISSION REAL ESTATE Ges.m.b.H

Friedrich Kutschi

TERRA MISSION REAL ESTATE Ges.m.b.H

T +43 664 192 16 49