WOHN- UND GESCHÄFTSHAUS IM HERZEN VON MARIAZELL

Zinshaus Renditeobjekt - Wohn- und Geschäftshaus, 8630 Mariazell , Hauptplatz


HISTORISCH. ZENTRAL. BEEINDRUCKEND Willkommen im malerischen Wallfahrtsort Mariazell, einem der bedeutendsten Pilgerorte Europas. Dieses einzigartige Objekt befindet sich in BESTLAGE - direkt am Hauptplatz - neben der wunderschönen, gut besuchten Basilika Mariazells. Die außergewöhnliche Lage garantiert ganzjährig hohe Frequenz durch Touristen, Pilger und Einheimische.

Beschreibung der Immobilie

WOHN- UND GESCHÄFTSHAUS IM HERZEN VON MARIAZELL

KRAFTPLATZ MARIAZELL - WOHN- UND GESCHÄFTSHAUS MIT GROSSEM POTENTIAL



Die zum Verkauf stehende Immobilie befindet sich in unverwechselbarer Lage direkt am Hauptplatz von Mariazell, unmittelbar neben der berühmten Basilika. Ursprünglich um 1900 errichtet und ehemals als Kino genutzt, bietet das Gebäude nicht nur eine spannende Geschichte, sondern heute wieder ein enormes Entwicklungspotenzial in einer touristisch attraktiven Region.





A) Objektdaten – Überblick



  • Baujahr: ca. 1900
  • Nutzfläche: aufgeteilt auf Untergeschoß, Erdgeschoss, Obergeschoss und Dachgeschoss
  • Lift: vorhanden vom Untergeschoss bis ins Dachgeschoss
  • Heizung: veraltete Ölheizung (erneuerungsbedürftig), Fernwärme-Anschluss vor dem Haus
  • Zustand: umbau- und sanierungsbedürftig, großes Potential








B) Nutzungsmöglichkeiten im Detail



1. Gewerbe (Erdgeschoss + Untergeschoss)



  • Option A: Einzelhandelsfläche – direkt im Ortszentrum mit großer Schaufensterfront, auch abtrennbar in 2 Einheiten
  • Option B: Gastronomiebetrieb – Café, Restaurant oder Weinstube mit großzügiger Fläche (siehe KI-Vorschläge in Bildgalerie)
  • Option C: Kombination: Coworking-Space, Ärztezentrum, Wellness, Galerie oder Atelier - auch mit integrierter, breiter Stiege ins Untergeschoss - mit Potenzial für Behandlungsräume                                             Personalräume oder Wellness-/Freizeiteinrichtung, Lager, Haustechnik,


2. Wohnen (Obergeschoss)



  • Entkernter Zustand erlaubt flexible Planung
  • Realisierbar: bis zu 3 Wohnungen mit Blick auf den Hauptplatz und die Basilika - besonderer Highlight!
  • Ideal als Eigennutzung, Ferienwohnungen oder Dauervermietung


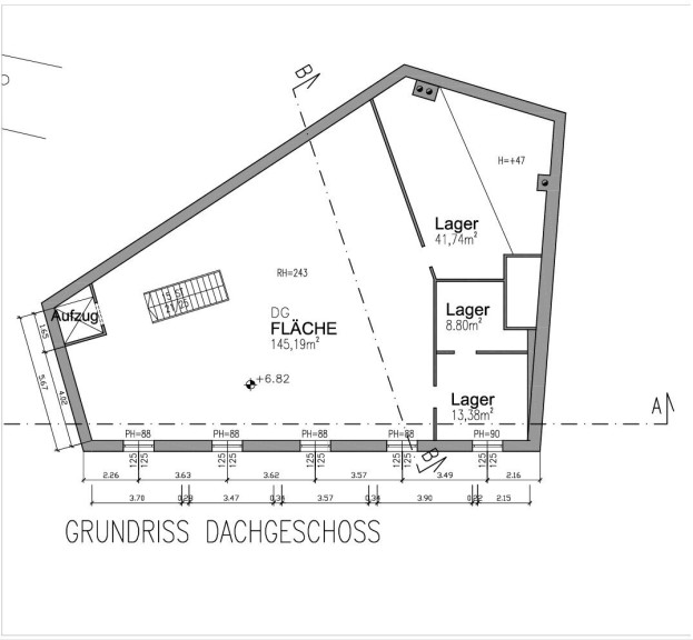
3. Dachgeschoss



  • Entkernter Zustand erlaubt auch hier eine flexible Planung für eine großzügige Dachwohnung mit Panoramablick auf Basilika, Stadtzentrum Mariazells, Berglandschaft







C) Für Investoren – Chancen & Mehrwert



Mariazell ist einer der bedeutendsten Wallfahrtsorte Mitteleuropas mit jährlich hunderttausenden Besuchern. Diese Immobilie bietet daher eine seltene Gelegenheit für:



Touristische Nutzung / Beherbergung



  • Entwicklung eines Boutique-Hotels oder Boardinghouse-Konzepts ("Zuhause auf Zeit")
  • Betrieb von Ferienwohnungen oder Apartments im OG und DG
  • Kombination mit Gastronomie im EG: Frühstücks-/Kaffeebetrieb oder Vinothek


Wohnbauprojekt



  • Attraktive Vermietbarkeit für Einheimische, Saisonkräfte oder Zweitwohnsitzsuchende
  • Förderungen für Sanierungen evtl. denkbar (je nach Lage, Nutzung, Energieeffizienz)


Gewerbliche Nutzung & Investment-Portfolio



  • Sicherer Standort mit guter Fußgängerfrequenz
  • Kombination von Mieteinnahmen aus Wohneinheiten und Gewerbefläche
  • Wertsteigerungspotenzial nach Sanierung und Modernisierung





D) Sanierungsbedarf – mit solider Basis



Die Immobilie verlangt eine umfassenden Sanierung – bietet jedoch:



  • einen massiven Altbaukörper
  • beste Innenstadtlage
  • bestehenden Lift (TÜV-Zulassung noch einzuholen)
  • ausgebautes Untergeschoss integriert mit Erdgeschoss durch breiten Stiegenaufgang (2010)
  • Fernwärme-Anschluss vor dem Haus
  • E-Leitungen neuwertig (2010)
  • neue, straßenseitige Fassade (2024)
  • und vor allem: einzigartige Lage mit Geschichte



Diese Immobilie ist ideal für kreative Investoren, Projektentwickler oder Unternehmer mit Sinn für Geschichte und Potenzial. 



Vereinbaren Sie jetzt einen Besichtigungstermin und nutzen diese besondere Chance im Herzen Mariazells - ich freue mich auf Ihre Anfrage und stehe Ihnen für Besichtigungen gerne zur Verfügung.



Wir ersuchen Sie um Verständnis, dass wir von Ihnen vor der Zusendung des Exposés die Bestätigung des sofortigen Tätigwerdens sowie die Aufklärung des Rücktrittsrechtes gemäß FAGG (Fern- und Auswärtsgeschäfte-Gesetz) benötigen. Dies ist eine seit 13.06.2014 geänderte Konsumentenschutzbestimmung nach den EU Verbraucherrechte-Richtlinien. Nach Ihrer schriftlichen Anfrage erhalten Sie die entsprechenden Unterlagen von uns, um deren Bestätigung wir Sie bitten. Anschließend freuen wir uns über eine Terminvereinbarung mit Frau Doris Rotschopf unter 0664 302 30 53. Die Verpflichtung zur Zahlung einer Vermittlungsprovision entsteht für Sie selbstverständlich nur bei erfolgreicher Vermittlung und wird erst mit der Rechtswirksamkeit des vermittelten Geschäfts fällig.



Alle Daten stammen vom Eigentümer, der Baubehörde oder der Verwaltung und wurden mit Sorgfalt erhoben. Für die Richtigkeit und Vollständigkeit kann keine Haftung übernommen werden. Es wird darauf hingewiesen, dass sich der Interessent vor Abschluss des Rechtsgeschäftes aus eigener Wahrnehmung d.h. Besichtigung vom Objekt zu überzeugen hat. Zahlenangaben können gerundet oder geschätzt sein. Das Anbot ist freibleibend und unverbindlich. Irrtümer und Änderungen vorbehalten. Wir weisen darauf hin, dass die Firma Immobilien Rot, Doris Rotschopf als Doppelmakler tätig ist (§5 Abs. 3 Maklergesetz).Nachgezeichnete Pläne können von den Originalplänen abweichen und sind eventuell nicht maßstabgetreu. Verträge, die nicht in der jeweiligen Muttersprache verfasst sind, sind vom Mieter selbst in die jeweilige Sprache zu übersetzen. Gerichtsstand: Wien



Datenschutz-Grundverordnung, 25. Mai 2018: Ihre personenbezogenen Kundendaten werden von uns zum Zwecke der Vertragserfüllung erfasst, gespeichert und verarbeitet.






Hinweis gemäß Energieausweisvorlagegesetz: Ein Energieausweis wurde vom Eigentümer bzw. Verkäufer, nach unserer Aufklärung über die generell geltende Vorlagepflicht, sowie Aufforderung zu seiner Erstellung noch nicht vorgelegt. Daher gilt zumindest eine dem Alter und der Art des Gebäudes entsprechende Gesamtenergieeffizienz als vereinbart. Wir übernehmen keinerlei Gewähr oder Haftung für die tatsächliche Energieeffizienz der angebotenen Immobilie.


Der Vermittler ist als Doppelmakler tätig.

Infrastruktur / Entfernungen

Gesundheit
Arzt <250m
Krankenhaus <2.250m
Apotheke <250m

Kinder & Schulen
Schule <250m
Kindergarten <250m

Nahversorgung
Supermarkt <250m
Bäckerei <500m

Sonstige
Geldautomat <250m
Bank <250m
Post <250m
Polizei <5.000m

Verkehr
Bus <250m
Straßenbahn <750m
Bahnhof <1.500m
Flughafen <2.250m

Angaben Entfernung Luftlinie / Quelle: OpenStreetMap

Eckdaten Objektnr. 2637

Art: Zinshaus Renditeobjekt - Wohn- und Geschäftshaus
Land: Österreich
Baujahr: 1900
Zustand: Entkernt
Alter: Altbau
Kaufpreis: 590.000,00
Provision: 3% des Kaufpreises zzgl. 20% USt.
Betriebskosten: 90,00 €
MwSt Gesamt: 9,00 €
Grundstücksfl.: 245,00 m²
Gesamtfläche: 718,00 m²
Keller: 18,00 m²
Immobilie merken Exposé

Ausstattung

Estrichboden, Öl, Fernwärme, Zentralheizung, Personenaufzug


Immobilie anfragen


Ihre persönliche Beratung

Immobilien ROT - Doris Rotschopf

Doris Rotschopf

iMMobilien ROT - Doris Rotschopf

T +436643023053