TERRASSENWOHNUNG MIT FERNBLICK - GESTALTEN SIE IHRE TRAUMWOHNUNG SELBST

Wohnung - Dachgeschoß, 1200 Wien


RUHIGE LAGE MIT CHARME

Beschreibung der Immobilie

TERRASSENWOHNUNG MIT FERNBLICK - GESTALTEN SIE IHRE TRAUMWOHNUNG SELBST

VOM SONNENAUFGANG BIS ZUM SONNENUNTERGANG - HIER KÖNNEN SIE ALLES ERLEBEN!



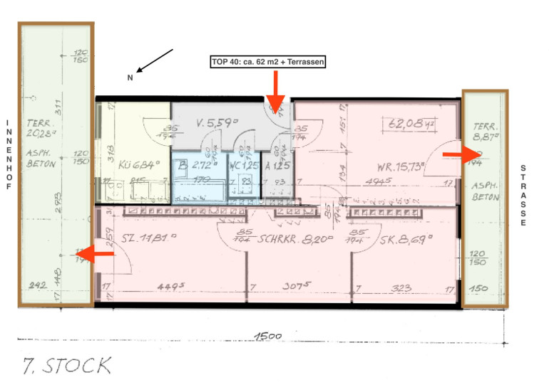
GESTALTEN SIE IHRE TRAUMWOHNUNG SELBST IN EINER DACHGESCHOSS-WOHNUNG OHNE DACHSCHRÄGEN MIT 2 TERRASSEN!



AUSRICHTUNG DER TERRASSEN: SW (straßenseitig) und NO (hofseitig)



Durch die großzügigen Terrassen, die sich auf beiden Seiten der Wohnung verteilen, sowie durch die ruhige und dennoch zentrale Lage in der beliebten Gegend um die Vorgartenstraße bietet diese Eigentumswohnung ein ganz besonderes Wohnerlebnis. Das Haus selbst wurde vor Kurzem umfassend saniert und präsentiert sich jetzt sehr in einem Top Zustand mit einem zeitgemäßen Heizsystem.



Die Wohnung selbst befindet sich noch im Rohzustand und bietet die perfekte Möglichkeit, die Räume nach eigenen Vorstellungen zu gestalten und zu modernisieren. Auf Wunsch kann die Bauführung auch vom Verkäufer durchgeführt werden. Der Verkaufspreis würde sich dann je nach Ausstattungswünschen erhöhen. 



HINWEIS: Im Exposé befinden sich einige Räume, die im derzeitigen Zustand abgebildet sind und daneben KI-bearbeitete Fotos mit Gestaltungsvorschlägen. Die Umsetzbarkeit dieser Vorschläge muss noch im Einzelnen geprüft werden.



Weiters bieten die Terrassen einen fantastischen Ausblick auf die Wiener Hausberge, den Millenium Tower, die UNO-City, den DC-Tower sowie den Donauturm. Ob zu Fuß oder mit dem Rad erreicht man die beliebte Donauinsel, das Naherholungsgebiet der Wiener, in wenigen Minuten sowie einige Parkanlagen, wie den Allerheiligenpark oder den Mortarapark, die zum Verweilen und Entspannen im Grünen einladen. 



BAUJAHR: 1960



ERSTBEZUG: 1963



THEWOSANSANIERUNG: 2024/2025



RAUMAUTEILUNG:



  • VORRAUM
  • KÜCHE
  • WOHNZIMMER
  • SCHLAFZIMMER
  • KABINETT
  • SCHRANKRAUM
  • BAD
  • WC
  • ABSTELLRAUM


AUSSTATTUNG:



  • LIFT
  • SICHERHEITSWOHNUNGSTÜRE
  • NEU SANIERTES, SEHR GEPFLEGTES WOHNHAUS
  • THEWOSANFASSADE
  • FERNWÄRME
  • NEUE HOLZ-ALU-FENSTER / DREIFACHVERGLASUNG / MIT ROLLÄDEN
  • THEWOSANSANIERUNG
  • KEINE DACHSCHRÄGEN
  • BEGRÜNTER INNENHOF ZUM ENTSPANNEN MIT SPIELMÖGLICHKEIT
  • FAHRRADRAUM
  • WASCHKÜCHE IM SELBEN STOCKWERK
  • KELLERABTEIL


LAGE UND INFRASTRUKTUR:



Die Wohnung liegt in einer ruhigen und einer der attraktivsten Wohngegenden im 20. Bezirk, Brigittenau. Einkaufsmöglichkeiten, Cafés, Restaurants und Grünflächen sind bequem zu Fuß erreichbar. Zum Entspannen und für sportliche Aktivitäten erreichen Sie in ca. 500 m die beliebte Donauinsel, die das gesamte Jahr als Oase der Erholung dient. Auch Kindergärten, Schulen (Europaschule, Gymnasium Schulschiff, TGM sowie die TU-Wien Racing befinden sich in der näheren Umgebung.



ÖFFENTLICHE VERKEHRSANBINDUNG:




  • Straßenbahnlinien: 2, 12



  • Buslinien: 5A, 11A, 11B, 37A



  • Schnellbahn-Station: Traisengasse



  • U6: Handelskai




INDIVIDUALVERKEHR:



  • ca. 200 m zum Handelskai
  • ca. 500 m über die Brigittenauer Brücke zur A22


RESÜMEE:



Traumhafte Terrassenwohnung - für Menschen die das Besondere lieben!





ZÖGERN SIE NICHT UND VEREINBAREN SIE EINEN BESICHTIGUNGSTERMIN!



WIR FREUEN UNS IHNEN DIESE LIEGENSCHAFT AUSFÜHRLICH ZU PRÄSENTIEREN!




Wir weisen darauf hin, dass zwischen dem Vermittler und dem zu vermittelnden Dritten ein familiäres oder wirtschaftliches Naheverhältnis besteht.


Der Vermittler ist als Doppelmakler tätig.

Infrastruktur / Entfernungen

Gesundheit
Arzt <500m
Apotheke <500m
Klinik <500m
Krankenhaus <500m

Kinder & Schulen
Schule <500m
Kindergarten <500m
Universität <1.000m
Höhere Schule <2.000m

Nahversorgung
Supermarkt <500m
Bäckerei <500m
Einkaufszentrum <1.000m

Sonstige
Geldautomat <500m
Bank <1.000m
Post <1.000m
Polizei <500m

Verkehr
Bus <500m
U-Bahn <1.000m
Straßenbahn <500m
Bahnhof <500m
Autobahnanschluss <1.500m

Angaben Entfernung Luftlinie / Quelle: OpenStreetMap

Eckdaten Objektnr. 2398

Art: Wohnung - Dachgeschoß
Land: Österreich
Baujahr: 1960
Alter: Neubau
Kaufpreis: 360.000,00
Provision: 3% des Kaufpreises zzgl. 20% USt.
Betriebskosten: 170,98 €
MwSt Gesamt: 18,82 €
Wohnfläche: 62,00 m²
Zimmer: 2,50
Bäder: 1
WC: 1
Terrassen: 2
Heizwärmebedarf:  B  27,40 kWh/m²a
fGEE:  B  1,00
Immobilie merken Exposé

Ausstattung

Fernwärme, Personenaufzug, Badewanne, Wasch/Trockenraum


Immobilie anfragen


Ihre persönliche Beratung

Mag. Sabine Klein

Immobilien Klein

T + 43 676 33 33 668

H +43 676 3333 668