Gewerbeimmobilie mit Potenzial im Ortskern von Müllendorf

Einzelhandel , 7052 Müllendorf


Beschreibung der Immobilie

Gewerbeimmobilie mit Potenzial im Ortskern von Müllendorf

Müllendorf ist eine kleine, aber dynamische Gemeinde im Bezirk Eisenstadt-Umgebung, im nördlichen Burgenland.



Die Liegenschaft befindet sich in zentraler Lage im Ortskern, zwischen Hauptstraße und Gartengasse. Die Zufahrt als auch der Zugang ist von beiden Seiten des Grundstücks möglich.



Grundstück



  • Grundstücksfläche: ca. 1.268 m²
  • Straßenfront: ca. 10,30 m
  • Grundstückstiefe: ca. 131 m
  • Widmung: BD – Bauland Dorfgebiet
  • Bauweise: geschlossene oder halboffene Bebauung
  • Zufahrt und Zugang von zwei Seiten


Gebäude & Ausstattung
Das Grundstück ist mit einem Betriebsgebäude bebaut, bestehend aus einem Straßengebäude und einem Hofgebäude.



Straßengebäude (Baujahr 1969) 



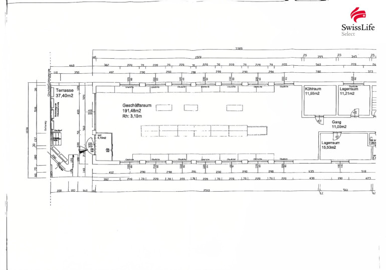
  • Erdgeschoss: Geschäftsraum, ca. 191 m², Raumhöhe 3,10 m, 2 Lagerräume; Kühlraum, Toilette mit Vorraum
  • Kellergeschoss: 1 großer Kellerraum, 1 Heizraum, 1 Raum mit Waschmaschinenanschluss


Hofgebäude | Umbau und Zubau: (Baujahr 1986 (Erweiterung des bestehenden Geschäftslokals)



  • 3 Zimmer, Küche, Toilette mit Vorraum, zusätzliche Toilette mit Pissoir und Vorraum


Technische Ausstattung



  • Heizung: Warmwasserzentralheizung mit Gasbefeuerung
  • Lüftung: Be- und Entlüftungsanlage


Nutzung
Das Gebäude wurde bisher für den Lebensmittelhandel genutzt und bietet vielfältige Möglichkeiten zur gewerblichen oder kombinierten Nutzung.



Lage
Der Ort profitiert von seiner günstigen Verkehrslage: Nähe zur Landeshauptstadt Eisenstadt sowie gute Anbindung Richtung Wien und zum benachbarten Ungarn.

Müllendorf ist eine Gemeinde, die zunehmend von Betrieben als Standort wahrgenommen wird.





Für weitere Fragen bzw. zur Vereinbarung von Besichtigungsterminen stehen wir Ihnen unter der Telefonnummer +43 676 320 76 23 zur Verfügung, oder Sie senden uns ein Anfragemail an belinda.poell@swisslife-select.at. Wir freuen uns auch über Ihren Besuch auf unserer Website https://www.swisslife-select.at/immobilien, wo Sie laufend neue Objekte und wertvolle Informationen rund um Immobilien finden.



Allgemeine Hinweise



Alle Angaben sind ohne Gewähr und basieren ausschließlich auf Informationen, die uns von unserem Auftraggeber übermittelt wurden. Eine Weitergabe der übermittelten Daten an Dritte ist nicht gestattet. Wir übernehmen keine Gewähr für die Vollständigkeit, Richtigkeit und Aktualität dieser Angaben. Irrtum und Zwischenverkauf vorbehalten. Pläne/Maßangaben entsprechen möglicherweise nicht den genauen Naturmaßen.



Die Bilder sind möglicherweise KI generiert, Visualisierungen oder Symbolbilder. Abänderungen zur tatsächlichen Ausführung können resultieren. 



UNSER SERVICE FÜR SIE: Gerne beraten wir Sie unverbindlich in allen Vermietungs-, Verkaufs- oder Bewertungs- und Verwertungsfragen zu Ihrer Immobilie.



BARGELD FÜR SIE: Für die Vermittlung von Objekten aus dem Bekannten-/Verwandtenkreis zeigen wir uns mit einer Tippgeberprovision immer erkenntlich! Wir informieren Sie gerne!



Das passende Immobilienobjekt und maßgeschneiderte Finanzierung aus einer Hand - gemeinsam mit unseren erfahrenen Finanzberaterinnen schaffen wir für Sie einen umfassenden Überblick über die besten Finanzierungsangebote bei allen relevanten Banken und Bausparkassen. Wir erledigen für Sie das mühselige Vergleichen der Angebote. Mit unserer Finanzierungs- Strategie bieten wir Ihnen mehr als nur einen Kredit: Ausgezeichnete Konditionen, flexible Rahmengestaltung sowie kompetente und zuverlässige Beratung - die auf einem breiten Marktüberblick beruht und dabei die besten Produkte auch auf die bestmögliche Weise miteinander verbindet.


Wir weisen darauf hin, dass zwischen dem Vermittler und dem zu vermittelnden Dritten ein familiäres oder wirtschaftliches Naheverhältnis besteht.


Der Vermittler ist als Doppelmakler tätig.

Infrastruktur / Entfernungen

Gesundheit
Arzt <1.000m
Apotheke <4.500m
Klinik <4.500m
Krankenhaus <4.500m

Kinder & Schulen
Schule <500m
Kindergarten <1.000m
Universität <4.500m
Höhere Schule <6.000m

Nahversorgung
Supermarkt <1.000m
Bäckerei <4.000m
Einkaufszentrum <5.500m

Sonstige
Bank <500m
Geldautomat <3.500m
Post <1.000m
Polizei <4.500m

Verkehr
Bus <500m
Autobahnanschluss <1.000m
Bahnhof <1.000m

Angaben Entfernung Luftlinie / Quelle: OpenStreetMap

Eckdaten Objektnr. 6013/1118

Art: Einzelhandel
Land: Österreich
Baujahr: 1969
Zustand: Teil_vollrenovierungsbed
Alter: Neubau
Kaufpreis: 350.000,00
Kaufpreis / m²: 276,03 €
Provision: 3% des Kaufpreises zzgl. 20% USt.
Wohnfläche: 191,00 m²
Grundstücksfl.: 1.268,00 m²
Verkaufsfläche: 191,00 m²
Bäder: 1
WC: 2
Terrassen: 1
Immobilie merken Exposé

Immobilie anfragen


Ihre persönliche Beratung

Swiss Life Select Österreich GmbH

Belinda Pöll

Swiss Life Select Österreich GmbH

T +43 676 32 076 23

H +43 676 32 076 23