360° TOUR // GENERALSANIERTE PRAXIS/ ALTBAUBÜRO in OPERNNÄHE

Büro / Praxis , 1010 Wien


Staatsoper - Mahlerstraße

Beschreibung der Immobilie

360° TOUR // GENERALSANIERTE PRAXIS/ ALTBAUBÜRO in OPERNNÄHE

BÜRO / ORDINATION nahe STAATSOPER & RINGSTRAßEN GALERIEN


Diese barrierefreie, im zweiten Liftstock eines Innenstadt-Palais gelegene Bürofläche/ Ordination biete folgende



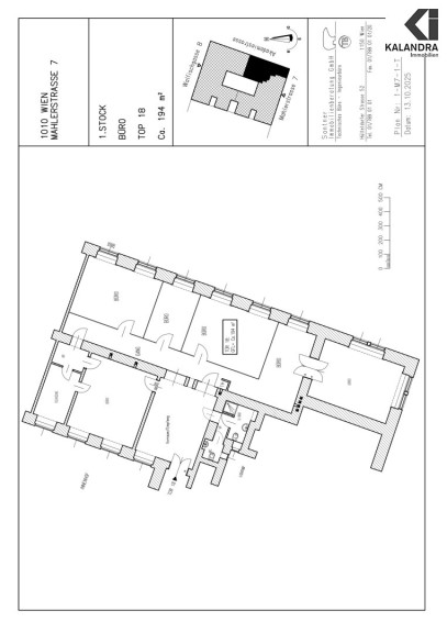
Raumaufteilung:

- zentraler Flur

- 6 große Räume 

- 2 WC-Anlagen

- Küche

- Serverraum




Ausstattung:

- Teppichboden



- Sanitärräume modern verfliest



- Fensterbank-Kabelkanäle



- eingerichtete Küche



- Beleuchtungskörper (Pendelleuchten)



- Gas-Etagenheizung




Tiefgaragen-Parkplätze wären in den nahegelegenen Ringstraßen-Galerien anmietbar.



Angeboten wird ein auf 10 Jahre befristetes Mietverhältnis mit 3-jährigem, mieterseitigen Kündigungsverzicht.



Kautionsbetrag:  6 Bruttomonatsmieten (Bankgarantie möglich)




Es handelt sich hierbei um eine ehemalige Ordination (grundsätzliche Eignung für Arzt oder Beauty Salon), die entsprechend gut ausgebaut ist.



Achtung: Bei unecht steuerbefreiten Mietern werden 20% VSt.-Äquivalent auf den Hauptmietzins zusätzlich verrechnet.







 

Infrastruktur / Entfernungen

Gesundheit
Arzt <500m
Apotheke <500m
Klinik <1.000m
Krankenhaus <1.500m

Kinder & Schulen
Schule <500m
Kindergarten <500m
Universität <500m
Höhere Schule <500m

Nahversorgung
Supermarkt <500m
Bäckerei <500m
Einkaufszentrum <500m

Sonstige
Geldautomat <500m
Bank <500m
Post <500m
Polizei <500m

Verkehr
Bus <500m
U-Bahn <500m
Straßenbahn <500m
Bahnhof <500m
Autobahnanschluss <3.500m

Angaben Entfernung Luftlinie / Quelle: OpenStreetMap

Eckdaten Objektnr. 18531

Art: Büro / Praxis
Land: Österreich
Baujahr: 1910
Zustand: Neuwertig
Kaltmiete (netto): 4.454,64 €
Kaltmiete: 4.882,67 €
Provision: 3 Bruttomonatsmieten zzgl. 20% USt.
Betriebskosten: 428,03 €
MwSt Gesamt: 976,54 €
Nutzfläche: 194,00 m²
Zimmer: 6
WC: 2
Heizwärmebedarf:  D  117,27 kWh/m²a
Immobilie merken Exposé

Ausstattung

Zentralheizung, Personenaufzug


Immobilie anfragen


Ihre persönliche Beratung

KALANDRA Immobilien Robert Kalandra e.U.

Mag. Robin Kalandra

KALANDRA Immobilien Robert Kalandra e.U.

T +43-1533326913

H +43-69911804004

F +43-1-533-32-69-20