Rohdachboden mit Ausbaupotenzial in Linz-Ebelsberg – Nähe Schloss Ebelsberg

Wohnung - Rohdachboden, 4030 Linz


Beschreibung der Immobilie

Rohdachboden mit Ausbaupotenzial in Linz-Ebelsberg – Nähe Schloss Ebelsberg

Rohdachboden mit Ausbaupotenzial in Linz-Ebelsberg – Nähe Schloss Ebelsberg



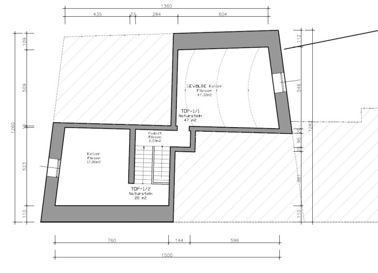
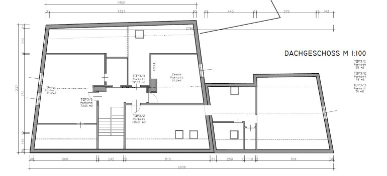
Zum Verkauf steht ein großzügiger Rohdachboden mit ca. 395,88 m², ideal für den Ausbau zu modernen Wohnungen oder individuellen Projekten. Das Hauptgebäude, in dem sich der Dachboden befindet, wurde ursprünglich um 1940 errichtet und seither regelmäßig modernisiert.



Lage 



Der Rohdachboden punktet mit einer hervorragenden Lage und Infrastruktur: Direkt gegenüber dem Gebäude befinden sich Haltestellen für Bus und Straßenbahn, wodurch eine optimale Anbindung an das öffentliche Verkehrsnetz gewährleistet ist. Eine Kurzparkzone vor dem Haus erleichtert die Erreichbarkeit zusätzlich. Ein besonderes Highlight ist die direkte angrenzende Lage des hinteren Grundstücksteils an das Naherholungsgebiet Ebelsberger Schlossberg – ein wertvoller Grünraum, der sowohl für Wohn- als auch Gewerbenutzung einen hohen Freizeitwert bietet.



Sie haben Interesse?
Ansehen lohnt sich - wir freuen uns über Ihr Interesse! Für weitere Fragen stehen wir Ihnen gerne unter der Rufnummer 0664 386 26 80 zur Verfügung.



Rechtliche Informationen
Bitte beachten Sie, dass aufgrund unserer ALLEINBEAUFTRAGUNG und Nachweispflicht für den Abgeber ausschließlich Anfragen unter Angabe Ihrer VOLLSTÄNDIGEN DATEN bearbeiten können ( NAME,ANSCHRIFT, E MAIL, Telefonnummer).

Explizit weisen wir daraufhin , dass alle Angaben nach besten Wissen erstellt wurden . Irrtümer , Druckfehler und Änderungen vorbehalten.

Für Auskünfte u. Angaben, die uns von Seiten der Eigentümer und Dritten zur Verfügung gestellt wurden, können wir keine Haftung übernehmen. Besichtigungen u. Beratungen erfolgen kostenlos , lediglich im Falle einer erfolgreichen Vermittlung ist die gesetzliche Provision zur Zahlung fällig.


Wir weisen darauf hin, dass zwischen dem Vermittler und dem zu vermittelnden Dritten ein familiäres oder wirtschaftliches Naheverhältnis besteht.


Der Vermittler ist als Doppelmakler tätig.

Infrastruktur / Entfernungen

Gesundheit
Arzt <500m
Apotheke <500m
Krankenhaus <4.500m
Klinik <3.000m

Kinder & Schulen
Kindergarten <500m
Schule <1.000m
Universität <5.500m
Höhere Schule <7.000m

Nahversorgung
Supermarkt <500m
Bäckerei <500m
Einkaufszentrum <3.500m

Sonstige
Bank <500m
Geldautomat <1.500m
Post <1.500m
Polizei <1.500m

Verkehr
Bus <500m
Straßenbahn <500m
Bahnhof <2.000m
Autobahnanschluss <2.500m
Flughafen <6.000m

Angaben Entfernung Luftlinie / Quelle: OpenStreetMap

Eckdaten Objektnr. 5950/4342

Art: Wohnung - Rohdachboden
Land: Österreich
Baujahr: 1945
Kaufpreis: 289.000,00
Provision: 3% des Kaufpreises zzgl. 20% USt.
Nutzfläche: 395,88 m²
Heizwärmebedarf:  D  121,00 kWh/m²a
fGEE:  D  1,95
Immobilie merken Exposé

Ausstattung

Gas, Fernwärme


Immobilie anfragen


Ihre persönliche Beratung

Thomas Girkinger Immobilien GmbH

Thomas Girkinger akad.IM

Thomas Girkinger Immobilien GmbH

T +43 732 77 52 00

H +43 664 386 26 80