Beschreibung der Immobilie
Großzügige 5-Zimmer-Wohnung in Toplage von Linz-Ebelsberg
Großzügige 5-Zimmer-Wohnung in Toplage von Linz-Ebelsberg
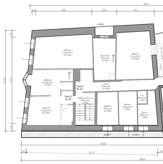
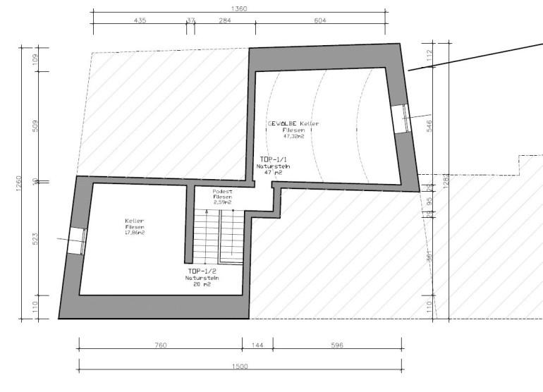
Diese großzügig geschnittene Wohnung im 2. Obergeschoss eines Wohn- und Gewerbeobjekts bietet auf rund 147 m² viel Potenzial zur individuellen Gestaltung. Mit fünf Zimmern eignet sie sich ideal für große Haushalte, Wohngemeinschaften oder als Kapitalanlage mit Entwicklungsperspektive. Die Wohnung ist sanierungsbedürftig und befindet sich in einem Gebäude, das ursprünglich um 1940 errichtet und seither mehrfach erweitert wurde. Die Wohnung ist ausschließlich über das Stiegenhaus erreichbar – ein Aufzug ist nicht vorhanden. Ein Kellerabteil ist vorhanden.
Raumaufteilung
Vorraum - Schlafzimmer - Küche - Kinderzimmer - Ankleideraum - Büro - Wohnzimmer - WC - Badezimmer
Lage
Die Wohnung punktet mit einer hervorragenden Lage und Infrastruktur: Direkt gegenüber dem Gebäude befinden sich Haltestellen für Bus und Straßenbahn, wodurch eine optimale Anbindung an das öffentliche Verkehrsnetz gewährleistet ist. Eine Kurzparkzone vor dem Haus erleichtert die Erreichbarkeit zusätzlich. Ein besonderes Highlight ist die direkte angrenzende Lage des hinteren Grundstücksteils an das Naherholungsgebiet Ebelsberger Schlossberg – ein wertvoller Grünraum, der sowohl für Wohn- als auch Gewerbenutzung einen hohen Freizeitwert bietet.
Sie haben Interesse?
Ansehen lohnt sich - wir freuen uns über Ihr Interesse! Für weitere Fragen stehen wir Ihnen gerne unter der Rufnummer 0664 386 26 80 zur Verfügung.
Rechtliche Informationen
Bitte beachten Sie, dass aufgrund unserer ALLEINBEAUFTRAGUNG und Nachweispflicht für den Abgeber ausschließlich Anfragen unter Angabe Ihrer VOLLSTÄNDIGEN DATEN bearbeiten können ( NAME,ANSCHRIFT, E MAIL, Telefonnummer).
Explizit weisen wir daraufhin , dass alle Angaben nach besten Wissen erstellt wurden . Irrtümer , Druckfehler und Änderungen vorbehalten.
Für Auskünfte u. Angaben, die uns von Seiten der Eigentümer und Dritten zur Verfügung gestellt wurden, können wir keine Haftung übernehmen. Besichtigungen u. Beratungen erfolgen kostenlos , lediglich im Falle einer erfolgreichen Vermittlung ist die gesetzliche Provision zur Zahlung fällig.
Wir weisen darauf hin, dass zwischen dem Vermittler und dem zu vermittelnden Dritten ein familiäres oder wirtschaftliches Naheverhältnis besteht.
Der Vermittler ist als Doppelmakler tätig.
Infrastruktur / Entfernungen
Gesundheit
Arzt <500m
Apotheke <500m
Krankenhaus <4.500m
Klinik <3.000m
Kinder & Schulen
Kindergarten <500m
Schule <1.000m
Universität <5.500m
Höhere Schule <7.000m
Nahversorgung
Supermarkt <500m
Bäckerei <500m
Einkaufszentrum <3.500m
Sonstige
Bank <500m
Geldautomat <1.500m
Post <1.500m
Polizei <1.500m
Verkehr
Bus <500m
Straßenbahn <500m
Bahnhof <2.000m
Autobahnanschluss <2.500m
Flughafen <6.000m
Angaben Entfernung Luftlinie / Quelle: OpenStreetMap
Eckdaten Objektnr. 5950/4341
| Art: | Wohnung | 
| Land: | Österreich | 
| Baujahr: | 1945 | 
| Kaufpreis: | 449.000,00 € | 
| Provision: | 3% des Kaufpreises zzgl. 20% USt. | 
| Betriebskosten: | 420,00 € | 
| Wohnfläche: | 147,08 m² | 
| Zimmer: | 5 | 
| Bäder: | 1 | 
| WC: | 1 | 
| Heizwärmebedarf: | D 121,00 kWh/m²a | 
| fGEE: | D 1,95 | 
Ausstattung
Fliesen, Gas, Fernwärme, Einbauküche, Badewanne
Ihre persönliche Beratung
 
                                                        Thomas Girkinger akad.IM
Thomas Girkinger Immobilien GmbH
T +43 732 77 52 00
H +43 664 386 26 80
 
                 
                 
                 
                 
                 
                 
                 
                 
                 
                 
                 
                 
                 
                