Charmante Garconniere, Nähe Meiselmarkt

Wohnung , 1150 Wien,Rudolfsheim-Fünfhaus


Beschreibung der Immobilie

Charmante Garconniere, Nähe Meiselmarkt

Im Falle der Notwendigkeit einer Fremdfinanzierung Ihrer Wunschimmobilie ermittelt unser Wohnbau-Finanzierungsexperte gerne die optimale Finanzierungslösung und findet das passende Zins- und Konditionsangebot für Sie. Er vergleicht die aktuellen Angebote aller relevanten Banken und Bausparkassen. Der Angebotsvergleich kann aus einem Portfolio von über 120 Banken erfolgen. Das Erstgespräch ist für Sie kostenfrei und unverbindlich, gerne auch bei Ihnen vor Ort. So sparen Sie Ihre wertvolle Zeit und erhalten eine professionelle und unabhängige Finanzierungslösung vom Spezialisten. Sprechen Sie uns wegen eines Termins gerne an!





Zum Verkauf gelangt eine schöne Garconniere im 15. Wiener Gemeindebezirk.



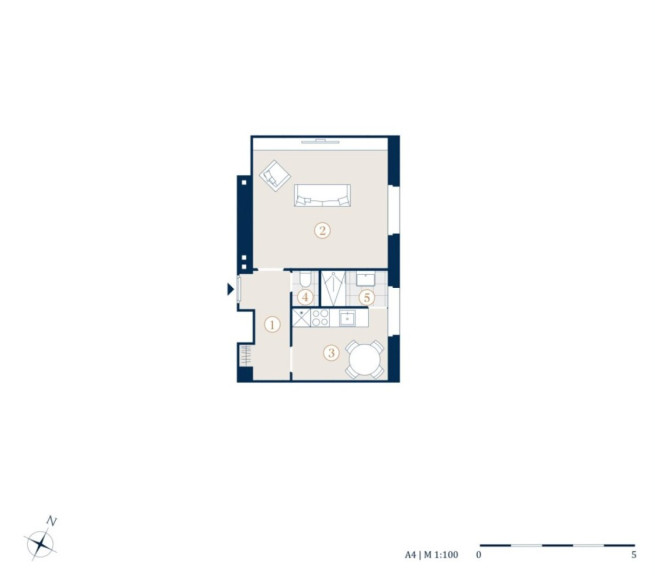
Sie befindet verfügt über ca. 34 m² und befindet sich im 1. Stock eines im Jahr 1936 erbauten Altbaus, welcher zwei Stiegen mit insgesamt 28 Wohneinheiten umfasst. 



Die Wohnung gliedert sich in einen Vorraum, einen Wohn- Schlafraum, eine Küche, ein Badezimmer und ein separates WC.



Sie betreten die Wohnung und befinden sich im Vorraum. Linkerhand gelangen Sie in den Wohn- Schlafraum. Des Weiteren gelangen Sie vom Vorraum in die voll ausgestattete Küche und in das Bad mit Fenster. Dieses ist mit einer Dusche und einem Waschbecken ausgestattet. Das separate WC ist auch vom Vorraum erreichbar.



Die Wohnräume sind mit einem Parkettboden ausgestattet und die Nassräume sind verfliest.



in der Liegenschaft sind 27 Wohnungen derzeit sofort bezugsfrei, während eine Einheit unbefristet vermietet ist. Die Wohnungen weisen Wohnflächen zwischen ca. 34 m² und 66 m² auf und überzeugen durch ihre durchdachten, kompakten Grundrisse. Einige Einheiten verfügen über offene Wohn-/Essbereiche und andere über separate Küchen. Die Vielfalt an Größen und Raumaufteilungen schafft attraktives Potenzial für unterschiedlichste Wohnbedürfnisse. Das Gebäude befindet sich in einem soliden und gepflegten Zustand, die allgemeine Bausubstanz ist gut erhalten. 



Die Infrastruktur ist optimal, die Nähe zum Meiselmarkt und zur Hütteldorfer Straße bietet zahlreiche Einkaufsmöglichkeiten, öffentliche Einrichtungen, Parkanlagen und Geschäfte für den täglichen Bedarf. Die U3-Station Johnstraße und die Buslinie 10A sind auch schnell erreichbar. Das Schloss Schönbrunn mit der traumhaften Parkanlage bietet einen perfekten Rückzugsort, welchen Sie in nur ca. 15 Minuten erreichen können. 



Die Vertragserrichtung und Treuhandabwicklung ist gebunden an die Kanzlei Drachsler Linzer, 1060 Wien, Mariahilfer Straße 103. Die Kosten betragen 1,5 % des Kaufpreises zzgl. USt. sowie Barauslagen und Beglaubigung. Bei Fremdfinanzierung erhöht sich das Honorar auf 1,8 % vom Kaufpreis zzgl. 20 % USt., Barauslagen und Beglaubigung.



Überzeugen Sie sich selbst von dieser Immobilie.



Für Besichtigungen und nähere Informationen stehen wir Ihnen gerne zur Verfügung!



Frau Marie-Louise Eisenburger

national - Tel: 0676 605 9800
international - Tel.: +43 676 605 9800
e-mail: eisenburger@lifestyle-properties.at


Wir weisen darauf hin, dass zwischen dem Vermittler und dem zu vermittelnden Dritten ein familiäres oder wirtschaftliches Naheverhältnis besteht.


Der Vermittler ist als Doppelmakler tätig.

Infrastruktur / Entfernungen

Gesundheit
Arzt <500m
Apotheke <500m
Klinik <1.000m
Krankenhaus <2.000m

Kinder & Schulen
Schule <500m
Kindergarten <500m
Universität <1.000m
Höhere Schule <2.000m

Nahversorgung
Supermarkt <500m
Bäckerei <500m
Einkaufszentrum <1.000m

Sonstige
Geldautomat <500m
Bank <500m
Post <500m
Polizei <1.000m

Verkehr
Bus <500m
U-Bahn <500m
Straßenbahn <500m
Bahnhof <500m
Autobahnanschluss <4.500m

Angaben Entfernung Luftlinie / Quelle: OpenStreetMap

Eckdaten Objektnr. 5059

Art: Wohnung
Land: Österreich
Baujahr: 1936
Zustand: Gepflegt
Alter: Altbau
Kaufpreis: 155.000,00
Wohnfläche: 34,00 m²
Zimmer: 1
Bäder: 1
WC: 1
Heizwärmebedarf:  E  151,60 kWh/m²a
fGEE: 2,82
Immobilie merken Exposé

Ausstattung

Fliesen, Parkett, Gas, Etagenheizung, Einbauküche, Dusche


Immobilie anfragen


Ihre persönliche Beratung

IM Lifestyle Properties GmbH

Marie-Louise Eisenburger

Lifestyle Properties

T +43 1 512 14 84

H +43 676 6059800