PROVISIONSFREI! LEO AM TEICH - URLAUBSFEELING IN WIEN!

Wohnung , 1220 Wien , Ziegelhofstraße 72


Beschreibung der Immobilie

PROVISIONSFREI! LEO AM TEICH - URLAUBSFEELING IN WIEN!

IHR NEUES ZUHAUSE DIREKT AM HIRSCHSTETTNER BADETEICH  – URLAUBSFEELING IN WIEN!



Willkommen in dieser einzigartigen Erstbezugswohnung im begehrten 1220 Wien! Diese Immobilie ist ideal für junge Familien, die ein harmonisches und komfortables Zuhause suchen, sowie für Investoren, die in eine attraktive Lage investieren möchten.



  • Erstbezug: Genießen Sie die Vorzüge einer nagelneuen Wohnung und einem frischen Wohngefühl.
  • Heizung: Die Fußbodenheizung sorgt für eine angenehme Wärmeverteilung und ein behagliches Ambiente in jedem Raum.
  • Technologie: Dank der Glasfaseranbindung sind Sie bestens vernetzt und genießen schnelles Internet.


Die Verkehrsanbindung ist äußerst praktisch: Bus und Straßenbahn befinden sich in unmittelbarer Nähe, sodass Sie schnell und unkompliziert in die Innenstadt gelangen.



In der Umgebung finden Sie alles, was das Herz begehrt: Ärzte, Apotheken, Kliniken, Schulen und Kindergärten sind bequem zu Fuß erreichbar. Supermärkte und weitere Einkaufsmöglichkeiten sorgen für eine optimale Versorgung im Alltag.



Erleben Sie das Urlaubsfeeling direkt vor Ihrer Haustür am Hirschstettner Badeteich. Ob entspannende Spaziergänge, Picknicks mit der Familie oder sportliche Aktivitäten – dieser Standort bietet Ihnen eine hohe Lebensqualität und zahlreiche Freizeitmöglichkeiten.



Verpassen Sie nicht die Chance auf dieses besondere Wohngefühl! Kontaktieren Sie uns noch heute für weitere Informationen und einen Besichtigungstermin!




Infrastruktur / Entfernungen

Gesundheit
Arzt <300m
Apotheke <500m
Klinik <775m
Krankenhaus <3.000m

Kinder & Schulen
Schule <400m
Kindergarten <150m
Universität <3.075m
Höhere Schule <3.025m

Nahversorgung
Supermarkt <550m
Bäckerei <600m
Einkaufszentrum <1.450m

Sonstige
Bank <775m
Geldautomat <550m
Post <825m
Polizei <900m

Verkehr
Bus <175m
U-Bahn <1.225m
Straßenbahn <450m
Bahnhof <1.225m
Autobahnanschluss <1.100m

Angaben Entfernung Luftlinie / Quelle: OpenStreetMap

Eckdaten Objektnr. 2632

Art: Wohnung
Land: Österreich
Baujahr: 2023
Zustand: Erstbezug
Alter: Neubau
Kaufpreis: 425.371,00
Kaufpreis / m²: 6.658,17 €
Provision: Provisionsfrei
Betriebskosten: 185,46 €
MwSt Gesamt: 18,55 €
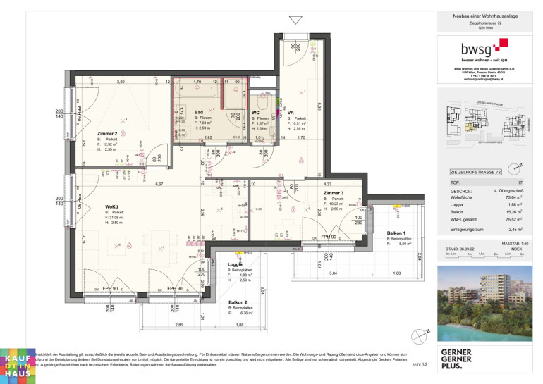
Wohnfläche: 73,64 m²
Nutzfläche: 75,52 m²
Lagerfläche: 2,45 m²
Zimmer: 3
Balkone: 1
Heizwärmebedarf:  C  52,57 kWh/m²a
fGEE:  A  0,74
Immobilie merken Exposé

Ausstattung

Fliesen, Parkettboden, Fernwärme, Fußbodenheizung, Personenaufzug, Badewanne


Immobilie anfragen


Ihre persönliche Beratung

KDH Immobilien GmbH

Simone Unger-Ullmann

KDH Immobilien GmbH

T +43 660 340 32 29