Miete mit Kaufoption | Jetzt mieten – in 5 Jahren Eigentümer werden!
                                                            Haus
                                - Doppelhaushälfte,
                            
                            
                                
                                                                            2462
                                    
                                                                            Wilfleinsdorf
                                    
                                    
                                
                                                                    
                                        
                                    
                                
                            
                        
                        Wilfleinsdorf – idyllisch, ruhig und doch so nah an der Stadt! Nur 5 Minuten zu Fuß zum Bahnhof, von wo aus Sie in ca. 45 Minuten direkt zum Wiener Hauptbahnhof fahren – perfekt für Pendler, die das Beste aus beiden Welten genießen möchten. Mit dem Auto erreichen Sie die Wiener Stadtgrenze in nur 20 Minuten. Hier leben Sie im charmanten Landleben, ohne auf die Nähe zur pulsierenden Hauptstadt verzichten zu müssen.
Beschreibung der Immobilie
Miete mit Kaufoption | Jetzt mieten – in 5 Jahren Eigentümer werden!
Wohnpark Wilfleinsdorf – Einzel- und Doppelhäuser zur Miete mit Kaufoption
 
Adresse:
Hauptstraße 148–152, 2462 Wilfleinsdorf
Musterhaus:
Hauptstraße 152, Top 4 (erste Reihe) - Besichtigung nach Terminvereinbarung.
Jetzt mieten – in 5 Jahren Eigentümer werden
Sie möchten Ihren Traum vom Eigenheim verwirklichen, aber nicht sofort kaufen?
Mit unserer attraktiven Kaufoption ist genau das möglich.
Ihre Vorteile:
- Fixierter Kaufpreis ab Vertragsbeginn – volle Planungssicherheit
- Der Finanzierungsbeitrag beim Mietstart wird später als Anzahlung angerechnet
- Unbefristeter Mietvertrag – ohne zeitlichen Druck
- Ideal für alle, die sich Eigentum schrittweise und sicher aufbauen möchten
Sie genießen bereits heute alle Vorteile Ihres neuen Zuhauses und legen gleichzeitig den Grundstein für Ihr künftiges Eigentum – ganz ohne Risiko.
Einzelhaus oder Doppelhaushälfte – Ihre Wohnmöglichkeit
- Miete mit Kaufoption nach 5 Jahren
- Miete ab: 1.479,09 Euro pro Monat
- Finanzierungsbeitrag ab: 91.800 Euro (gilt als Anzahlung beim späteren Kauf)
- Kaufpreis ab: 517.363,00 Euro
- Unbefristeter Mietvertrag
- Verfügbar: freifinanzierte Einzelhäuser und Doppelhäuser
- Luftwärmepumpe
- Solar
- Fußbodenheizung
- Kamin- und Klimavorbereitung
- nur ca. 37 Minuten vom Wiener Hauptbahnhof entfernt
Ihre Fixpreis-Garantie
Bereits im Mietvertrag sichern wir Ihnen den heutigen Kaufpreis, der in fünf Jahren gilt. So können Sie langfristig planen – ohne Preissteigerungen oder Unsicherheiten.
Vereinbaren Sie jetzt Ihren Besichtigungstermin.
Bitte verwenden Sie dafür das Kontaktformular. Vielen Dank! 
Das Musterhaus ist fertiggestellt, weitere freie Einheiten stehen ebenfalls zur Besichtigung bereit.
Gerne senden wir Ihnen auf Anfrage Terminmöglichkeiten zu.
Bilder verstehen sich teilweise als Symbolbilder und sind nicht dem jeweiligen Hause direkt zugeordnet. 
Änderungen und Irrtümer vorbehalten. Einige Bilder können ganz oder teilweise durch KI erstellt oder bearbeitet worden sein
Wilfleinsdorf, Hauptstraße 152
Das neue Projekt in Wilfleinsdorf bietet eine einzigartige Gelegenheit, ein modernes und komfortables Zuhause zu erwerben. Die Reihenhäuser und Einzelhäuser sind hochwertig ausgestattet und bieten viel Platz für Familien oder Paare.
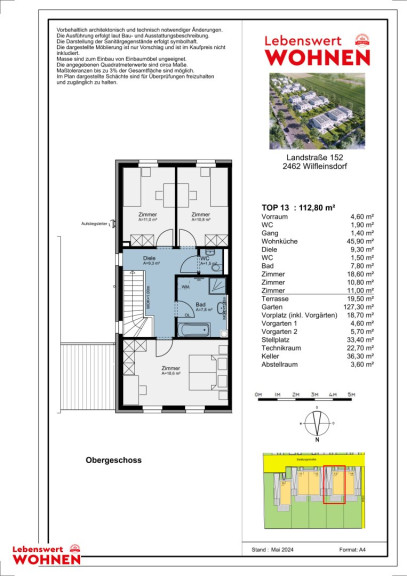
Jedes Haus verfügt über einen geräumigen Keller, einen Technikraum und eine großzügige Wohnküche mit direktem Zugang zur Terrasse und zum Garten. Im oberen Stockwerk befinden sich drei Schlafzimmer, ein Badezimmer und ein Vorraum in angenehmer Größe. Die Häuser sind in einem zeitgemäßen Stil gestaltet und bieten modernen Komfort für ein angenehmes Wohngefühl.
Die Autoabstellplätze für zwei Fahrzeuge sind direkt bei den Häusern vorhanden, was den Komfort für die Bewohner zusätzlich erhöht. Der Erstbezug der Häuser ist für das Jahr 2024 geplant.
Das Musterhaus wird in Kürze fertiggestellt sein und steht Interessenten demnächst zur Besichtigung offen. Die detaillierten Pläne der einzelnen Objekte sind im Exposé verfügbar, so dass Sie sich einen genauen Eindruck von den verschiedenen Wohnmöglichkeiten machen können. Bitte beachten Sie, dass Änderungen und Anpassungen noch möglich sind und betrachten Sie den Plan daher als Orientierung.
Nutzen Sie die Gelegenheit, Teil dieses spannenden Projekts in Wilfleinsdorf zu werden und sichern Sie sich Ihr neues Traumhaus in einer attraktiven Umgebung.
Infrastruktur / Entfernungen
Gesundheit
Arzt <4.500m
Apotheke <4.500m
Klinik <5.000m
Kinder & Schulen
Schule <4.500m
Kindergarten <1.000m
Nahversorgung
Supermarkt <1.000m
Bäckerei <4.500m
Einkaufszentrum <7.000m
Sonstige
Bank <4.500m
Geldautomat <4.500m
Post <4.500m
Polizei <5.000m
Verkehr
Bus <500m
Autobahnanschluss <4.000m
Bahnhof <1.000m
Angaben Entfernung Luftlinie / Quelle: OpenStreetMap
Eckdaten Objektnr. 5114/364456143
| Art: | Haus - Doppelhaushälfte | 
| Land: | Österreich | 
| Kaufpreis: | 537.652,00 € | 
| Betriebskosten: | 291,97 € | 
| Wohnfläche: | 112,80 m² | 
| Zimmer: | 4 | 
| Terrassen: | 1 | 
| Stellplätze: | 2 | 
| Garten: | 127,30 m² | 
| Keller: | 36,30 m² | 
Ausstattung
Parkplatz
Ihre persönliche Beratung
 
                                                        Christina-Maria Edlinger-Unger, MBA
Wohnbauvereinigung GFW Gemeinnützige GmbH
T +43160573505
H +43 664 831 8278
 
                 
                 
                