Heller 3-Zimmer Erstbezug mit Terrasse, Nähe Kutschkermarkt

Wohnung , 1180 Wien


Beschreibung der Immobilie

Heller 3-Zimmer Erstbezug mit Terrasse, Nähe Kutschkermarkt

Im Falle der Notwendigkeit einer Fremdfinanzierung Ihrer Wunschimmobilie ermittelt unser Wohnbau-Finanzierungsexperte gerne die optimale Finanzierungslösung und findet das passende Zins- und Konditionsangebot für Sie. Er vergleicht die aktuellen Angebote aller relevanten Banken und Bausparkassen. Der Angebotsvergleich kann aus einem Portfolio von über 120 Banken erfolgen. Das Erstgespräch ist für Sie kostenfrei und unverbindlich, gerne auch bei Ihnen vor Ort. So sparen Sie Ihre wertvolle Zeit und erhalten eine professionelle und unabhängige Finanzierungslösung vom Spezialisten. Sprechen Sie uns wegen eines Termins gerne an!





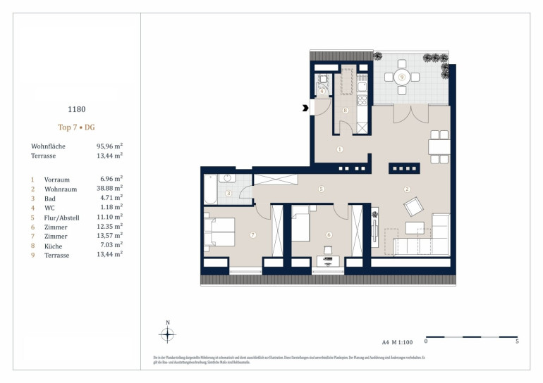
Zum Verkauf gelang eine 4-Zimmer Wohnung mit Terrasse im 18. Wiener Gemeindebezirk.



Sie befindet sich im DG eines in der Jahrhundertwende erbauten Altbaus und verfügt über eine Wohnfläche von ca. 96 m². Diese gliedert sich in einen Vorraum, 3 Zimmer, eine Küche, ein Bad und ein separates WC. Zusätzlich zur Wohnfläche überzeugt die Wohnung mit einer ca. 13 m² großen Terrasse. Diese Wohnung wurde mit viel Liebe zum Detail und hochwertigen Materialien umfassend saniert. Das Badezimmer wurde mit modernen Sanitärobjekten ausgestattet und bietet sowohl funktionale als auch ästhetische Highlights. Der Parkettboden in hochwertiger Ausführung sorgt für eine elegante und warme Atmosphäre in allen Wohnräumen. Auch die Terrasse wurde mit einem neuen, exklusiven Terrassenbelag versehen.



Bei Betreten der Wohnung gelangen Sie in den großzügigen Vorraum, an der Küche vorbei, gelangen Sie nahtlos in das offen gestaltete ca. 39 m² große Wohnzimmer mit Zugang zur Terrasse. Eine Mauer im Wohnraum schafft eine gedankliche Raumtrennung zwischen Ess- und Wohnbereich.  Die schrägen Dachfenster sorgen für viel natürliches Tageslicht, den ganzen Tag über. Vom Wohnraum aus gelangen Sie über einen Gang zu den zwei ca. 13 m² großen Schlafzimmern. Am Ende des Ganges befindet sich das Badezimmer. Das separate WC befindet sich direkt beim Eingang.



Die Fassade des Hauses wurde neu gestaltet und verleiht dem Gebäude einen frischen, zeitgemäßen Look, der perfekt zu seiner klassischen Altbau-Ästhetik passt. Das Stiegenhaus wurde ebenfalls neu verfliest und erstrahlt in frischen Farben, die den Altbaucharme auf moderne Weise unterstreichen. Viele Bereiche des Hauses wurden mit großer Sorgfalt renoviert, um eine gelungene Mischung aus historischem Flair und zeitgemäßem Komfort zu schaffen.



Im Angebot befinden sich fünf hochwertige Wohnungen, von denen drei nach einer umfangreichen Sanierung in Top-Zustand präsentiert werden. Die Wohnflächen variieren zwischen 51 m² und 109 m² und bieten für unterschiedliche Bedürfnisse und Lebensstile das passende Raumangebot. 



Für zusätzlichen Komfort können auf Wunsch Stapelparkplätze im Haus erworben werden. Der Preis für den oberen Stapelparker beträgt € 45.000, während der Preis für den unteren Stapelparker bei € 37.500 liegt.



Die Liegenschaft befindet nur wenige Minuten vom Kutschkermarkt und dem Sternwartepark entfernt. In unmittelbarer Gehweite befinden sich diverse Einkaufsmöglichkeiten wie Supermärkte, das Marktgebiet Gersthof/Kutschkermarkt etc. sowie eine optimale öffentliche Verkehrsanbindung durch die Straßenbahnen (9, 40 und 41), der Buslinie (10A) und der S-Bahn (S45) sowie die U-Bahn Linie 6.



Die Vertragserrichtung und Treuhandabwicklung ist gebunden an die Kanzlei Giebl & Zirm Rechtsanwälte, Dr. Karl Lueger-Platz 5, A-1010 Wien . Die Kosten betragen 1,5% + 20% Ust + Barauslagen.



Überzeugen Sie sich selbst von dieser Immobilie.



Gerne lassen wir Ihnen bei ernsthaftem Interesse – vor Kaufanbotlegung – weitere vertrauliche Unterlagen zu dieser Liegenschaft zukommen, welche nicht veröffentlicht werden dürfen.



Für Besichtigungen und nähere Informationen stehen wir Ihnen gerne zur Verfügung!



Frau Marie-Louise Eisenburger

national - Tel: 0676 605 9800
international - Tel.: +43 676 605 9800
e-mail: eisenburger@lifestyle-properties.at


Hinweis gemäß Energieausweisvorlagegesetz: Ein Energieausweis wurde vom Eigentümer bzw. Verkäufer, nach unserer Aufklärung über die generell geltende Vorlagepflicht, sowie Aufforderung zu seiner Erstellung noch nicht vorgelegt. Daher gilt zumindest eine dem Alter und der Art des Gebäudes entsprechende Gesamtenergieeffizienz als vereinbart. Wir übernehmen keinerlei Gewähr oder Haftung für die tatsächliche Energieeffizienz der angebotenen Immobilie.


Wir weisen darauf hin, dass zwischen dem Vermittler und dem zu vermittelnden Dritten ein familiäres oder wirtschaftliches Naheverhältnis besteht.


Der Vermittler ist als Doppelmakler tätig.

Infrastruktur / Entfernungen

Gesundheit
Arzt <500m
Apotheke <500m
Klinik <500m
Krankenhaus <1.000m

Kinder & Schulen
Schule <500m
Kindergarten <500m
Universität <500m
Höhere Schule <500m

Nahversorgung
Supermarkt <500m
Bäckerei <500m
Einkaufszentrum <2.000m

Sonstige
Geldautomat <500m
Bank <500m
Post <500m
Polizei <1.000m

Verkehr
Bus <500m
U-Bahn <500m
Straßenbahn <500m
Bahnhof <500m
Autobahnanschluss <2.000m

Angaben Entfernung Luftlinie / Quelle: OpenStreetMap

Eckdaten Objektnr. 5072

Art: Wohnung
Land: Österreich
Baujahr: 1900
Zustand: Erstbezug
Alter: Altbau
Kaufpreis: 859.000,00
Provision: 3% des Kaufpreises zzgl. 20% USt.
Wohnfläche: 95,96 m²
Zimmer: 3
Bäder: 1
WC: 1
Terrassen: 1
Immobilie merken Exposé

Ausstattung

Fliesen, Parkett, Gas, Etagenheizung, Einbauküche, Personenaufzug, Dusche


Immobilie anfragen


Ihre persönliche Beratung

IM Lifestyle Properties GmbH

Marie-Louise Eisenburger

Lifestyle Properties

T +43 1 512 14 84

H +43 676 6059800