Beschreibung der Immobilie
DAS HAFENPORTAL I BÜROFLÄCHE IM 4.OG
Die Zukunft beginnt im Hafen Linz - werden Sie Teil des Projektes! Die wirtschaftliche Spitzenlage im industriellen Herz Österreichs sowie im Zentrum des oberösterreichischen Technologie- und Innovationsclusters verleiht Ihrem Unternehmensstandort nachhaltige Stärke und höchste Attraktivität. Auf ganzen 6 Ebenen bietet das Hafenportal modernste und hochflexible Flächen für Büros und Geschäftsflächen. Dank durchdachter Architektur lassen sich individuelle Raumkonzepte problemlos realisieren – ideal für Unternehmen mit speziellen Anforderungen an Layout und Nutzung.
DETAILS HAFENPORTAL
- insgesamt ca. 18.000 m² Bürofläche (1.OG - 6. OG)
- bereits ca. 2/3 an ein weltweit bekanntes Unternehmen (AAA Rating) vermietet 
- insgesamt ca. 923 m² Geschäftsflächen (EG)
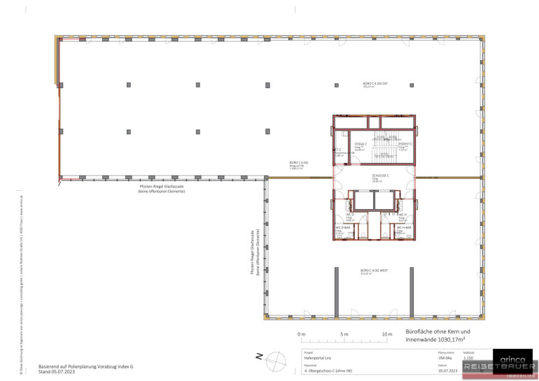
- Raumaufteilung ist individuell teilbar
- Deckenheiz- und Kühlsystem
- Personenlifte
- Fernwärme / Fernkälte
- zusätzliche Lüftung durch Bodeninduktivauslässe
- außenliegende, elektrische Raffstores
- LED Grundbeleuchtung
- Boden: belagsfertiger Doppelboden
- Fenster: Kunststoff Fenster
- Zutrittssystem: elektronische Schließanlage
- Miete: abhängig von Lage im Objekt bzw. Ausstattung
- Befristung: nach Vereinbarung
- Tiefgaragenstellplatz: EUR 125 zzgl. EUR 25 Betriebskosten
Die Lage an der Regensburger Straße / Industriezeile überzeugt mit exzellenter Verkehrsanbindung: In wenigen Minuten erreicht man die Stadtautobahn A7 und von dort die A1. Auch mit öffentlichen Verkehrsmitteln ist der Standort optimal angebunden: Eine direkt im Gebäude gelegene Bushaltestelle verbindet das Areal in etwa 15 Minuten mit dem Linzer Hauptbahnhof.
Infrastruktur / Entfernungen
Gesundheit
Arzt <1.000m
Apotheke <750m
Klinik <1.750m
Krankenhaus <1.000m
Kinder & Schulen
Kindergarten <250m
Schule <750m
Universität <1.000m
Höhere Schule <1.750m
Nahversorgung
Supermarkt <500m
Bäckerei <1.000m
Einkaufszentrum <2.000m
Sonstige
Bank <750m
Geldautomat <750m
Post <2.000m
Polizei <750m
Verkehr
Bus <250m
Straßenbahn <2.000m
Bahnhof <2.750m
Autobahnanschluss <1.000m
Flughafen <2.250m
Angaben Entfernung Luftlinie / Quelle: OpenStreetMap
Eckdaten Objektnr. 5738/2419
| Art: | Büro / Praxis - Bürofläche | 
| Land: | Österreich | 
| Baujahr: | 2024 | 
| Zustand: | Erstbezug | 
| Alter: | Neubau | 
| Kaltmiete (netto): | 16.826,00 € | 
| Kaltmiete: | 19.975,85 € | 
| Miete / m²: | 15,50 € | 
| Provision: | 3 Bruttomonatsmieten zzgl. 20% USt. | 
| Betriebskosten: | 3.149,85 € | 
| MwSt Gesamt: | 3.995,17 € | 
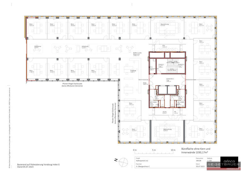
| Nutzfläche: | 1.085,74 m² | 
| Bürofläche: | 1.030,17 m² | 
| Heizwärmebedarf: | B 27,00 kWh/m²a | 
| fGEE: | A 0,71 | 
Ausstattung
Zentralheizung, Personenaufzug
Ihre persönliche Beratung
 
                                                        Fritz Reisetbauer
Reisetbauer Immobilien GmbH
T +43 732 665180
H +43 664 3605605
F +43 732 665180-9
 
                 
                 
                 
                 
                 
                 
                 
                 
                 
                 
                 
                