DAS HAFENPORTAL I BÜROFLÄCHEN

Büro / Praxis , 4020 Linz , Regensburger Straße


Beschreibung der Immobilie

DAS HAFENPORTAL I BÜROFLÄCHEN

Die Zukunft beginnt im Hafen Linz - werden Sie Teil des Projektes! Die wirtschaftliche Spitzenlage im industriellen Herz Österreichs sowie im Zentrum des oberösterreichischen Technologie- und Innovationsclusters verleiht Ihrem Unternehmensstandort nachhaltige Stärke und höchste Attraktivität. Auf ganzen 6 Ebenen bietet das Hafenportal modernste und hochflexible Flächen für Büros und Geschäftsflächen. Dank durchdachter Architektur lassen sich individuelle Raumkonzepte problemlos realisieren – ideal für Unternehmen mit speziellen Anforderungen an Layout und Nutzung.



DETAILS HAFENPORTAL



- insgesamt ca. 18.000 m² Bürofläche (1.OG - 6. OG)

- bereits ca. 2/3 an ein weltweit bekanntes Unternehmen (AAA Rating) vermietet 

- insgesamt ca. 923 m² Geschäftsflächen (EG)

- Raumaufteilung ist individuell teilbar

- Deckenheiz- und Kühlsystem

- Personenlifte

- Fernwärme / Fernkälte

- zusätzliche Lüftung durch Bodeninduktivauslässe

- außenliegende, elektrische Raffstores

- LED Grundbeleuchtung

- Boden: belagsfertiger Doppelboden

- Fenster: Kunststoff Fenster

- Zutrittssystem: elektronische Schließanlage

- Miete: abhängig von Lage im Objekt bzw. Ausstattung

- Befristung: nach Vereinbarung

- Tiefgaragenstellplatz: EUR 125 zzgl. EUR 25 Betriebskosten



Freie Büro- und Geschäftsflächen

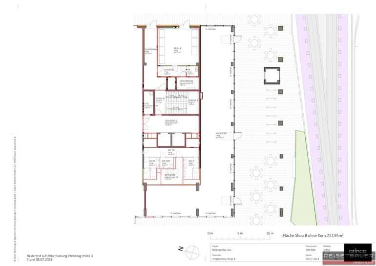
- EG ca. 218 m²

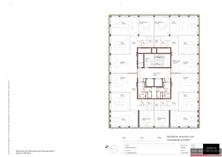
- 1.OG ca. 672 m²

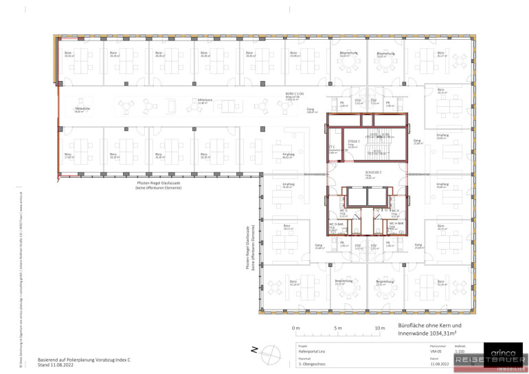
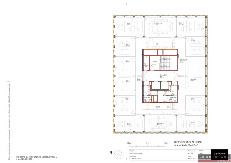
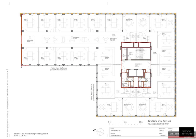
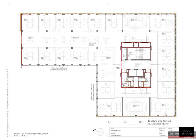
- 4.OG ca. 1.086 m²

- 5.OG ca. 1.090 m²

- 6.OG ca. 1.089 m²



Mietpreis: 15,00 €/m² bis 18,50 €/m² - je nach Lage, Größe und Ausstattung.



Die Lage an der Regensburger Straße / Industriezeile überzeugt mit exzellenter Verkehrsanbindung: In wenigen Minuten erreicht man die Stadtautobahn A7 und von dort die A1. Auch mit öffentlichen Verkehrsmitteln ist der Standort optimal angebunden: Eine direkt im Gebäude gelegene Bushaltestelle verbindet das Areal in etwa 15 Minuten mit dem Linzer Hauptbahnhof.



Ob Geschäfts- oder Bürofläche – in diesem Neubauprojekt finden Sie die perfekte Lösung. Gerne unterstützen wir Sie dabei, Ihre individuellen Wünsche zu realisieren, und stehen Ihnen jederzeit unter der Telefonnummer 0664 3605605 oder per E-Mail an office@reisetbauer.at zur Verfügung. Ob Geschäfts- oder Bürofläche – in diesem Neubauprojekt finden Sie die perfekte Lösung. Gerne unterstützen wir Sie dabei, Ihre individuellen Wünsche zu realisieren, und stehen Ihnen jederzeit unter der Telefonnummer 0664 3605605 oder per E-Mail an office@reisetbauer.at zur Verfügung.

Infrastruktur / Entfernungen

Gesundheit
Arzt <1.000m
Apotheke <750m
Klinik <1.750m
Krankenhaus <1.000m

Kinder & Schulen
Kindergarten <250m
Schule <750m
Universität <1.000m
Höhere Schule <1.750m

Nahversorgung
Supermarkt <500m
Bäckerei <1.000m
Einkaufszentrum <2.000m

Sonstige
Bank <750m
Geldautomat <750m
Post <2.000m
Polizei <750m

Verkehr
Bus <250m
Straßenbahn <2.000m
Bahnhof <2.750m
Autobahnanschluss <1.000m
Flughafen <2.250m

Angaben Entfernung Luftlinie / Quelle: OpenStreetMap

Eckdaten Objektnr. 5738/2424

Art: Büro / Praxis
Land: Österreich
Baujahr: 2024
Zustand: Erstbezug
Alter: Neubau
Heizwärmebedarf:  B  27,00 kWh/m²a
fGEE:  A  0,71
Immobilie merken Exposé

Ausstattung

Zentralheizung, Personenaufzug, Tiefgarage


Immobilie anfragen


Ihre persönliche Beratung

Reisetbauer Immobilien GmbH

Fritz Reisetbauer

Reisetbauer Immobilien GmbH

T +43 732 665180

H +43 664 3605605

F +43 732 665180-9