MONTE LAA - PERFEKTE BALANCE ZWISCHEN URBANEM LEBEN UND ERHOLUNG IN GRÜNRUHELAGE
                                                            Wohnung
                                - Dachgeschoß,
                            
                            
                                
                                                                            1100
                                    
                                                                            Wien
                                    
                                    
                                
                                                                    
                                        
                                    
                                
                            
                        
                        Beschreibung der Immobilie
MONTE LAA - PERFEKTE BALANCE ZWISCHEN URBANEM LEBEN UND ERHOLUNG IN GRÜNRUHELAGE
MAISONETTEWOHNUNG MIT TERRASSE – TRAUMLAGE IN 1100 WIEN - MONTE LAA - verfügbar ab April 2026
Diese großzügige Terrassen-Maisonette in einer gepflegten, kleinen Wohnhausanlage im 10. Bezirk bietet höchsten Wohnkomfort auf zwei Ebenen. Eine Freifläche in Innenhoflage, eine moderne Küche und ein herrlicher Grünblick machen dieses Zuhause zu etwas ganz Besonderem.Umgeben von viel Grün und dennoch bestens angebunden, bietet diese Lage eine perfekte Balance zwischen urbanem Leben und Erholung.
2 KFZ-STELLPLÄTZE können dazugemietet werden.
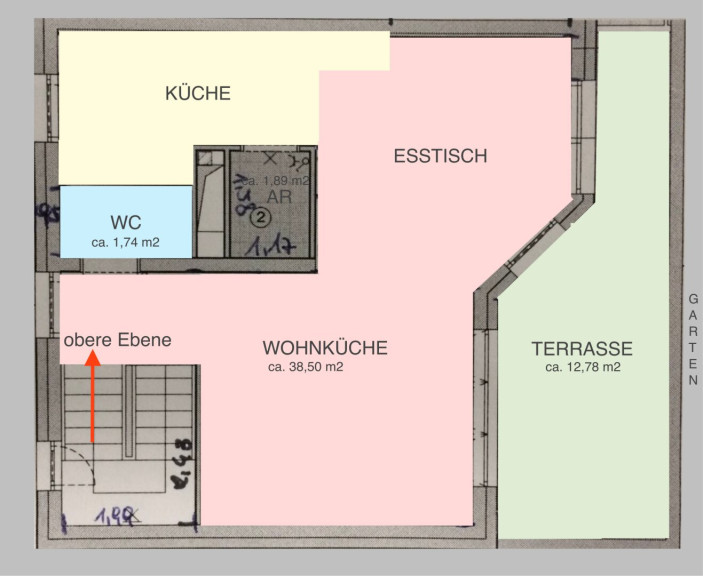
RAUMAUFTEILUNG
1. EBENE:
- VORRAUM
- 3 ZIMMER
- BAD MIT DUSCHE UND BADEWANNE
- WC MIT HANDWASCHBECKEN
2. EBENE:
- WOHNKÜCHE
- WC MIT HANDWASCHBECKEN
- TERRASSE MIT TRAUMHAFTEN GRÜNBLICK
AUSSTATTUNG
- SEHR GESCHMACKVOLLE, HOCHWERTIGE AUSSTATTUNG
- MODERNE EINBAUKÜCHE MIT MARKENGERÄTEN VON NEFF UND SIEMENS
- BAD MIT DOPPELWASCHBECKEN, DUSCHE UND BADEWANNE
- 2 WCs MIT HANDWASCHBECKEN
- WASCHMASCHINENANSCHLUSS
- PARKETTBODEN UND FLIESEN
- GEMEINSCHAFTSGARTEN
- KINDERSPIELPLATZ
- KELLERABTEIL
- FAHRRADRAUM
- GEMEINSCHAFTSRAUM VOLLAUSGESTATTET, MIT KÜCHE UND WC
LAGE UND INFRASTRUKTUR
Die Moselgasse liegt in einer aufgrund der Grünruhelage beliebten Wohngegend des 10. Bezirks. Der ideale Ort für Familien! Die grüne Umgebung sorgt für eine hohe Lebensqualität - eine perfekte Kombination aus Stadtleben und Erholung. Der Laaer Wald und der Laaer Berg laden zu ausgedehnten Spaziergängen ein. Entspannung an kalten Tagen findet man im nahe gelegen Thermenbad Oberlaa. Weiters erreicht mach schnell den Böhmische Prater, das Sommerbad Laaerberg, das Amalienbad oder das Franz-Horr-Stadion. Kindergärten, Schulen sowie Einkaufsmöglichkeiten sind ebenfalls vorhanden.
ÖFFENTLICHE ANBINDUNG
- die Buslinien 68A, 68B bringt Sie direkt zur U1 Reumannplatz
- N68
RESÜMEE
Ein echter Wohntraum in einer grünen Oase Wiens – ideal für Paare oder Familien, die das Besondere suchen.
ZÖGERN SIE NICHT UND VEREINBAREN SIE EINEN BESICHTIGUNGSTERMIN UM SICH VON DIESER TOLLEN WOHNUNG SELBST ZU ÜBERZEUGEN!
Der Immobilienmakler erklärt, dass er – entgegen dem in der Immobilienwirtschaft üblichen Geschäftsgebrauch des Doppelmaklers – einseitig nur für den Vermieter tätig ist.
Infrastruktur / Entfernungen
Gesundheit
Arzt <1.000m
Apotheke <1.000m
Klinik <1.500m
Krankenhaus <3.500m
Kinder & Schulen
Schule <500m
Kindergarten <1.000m
Universität <1.500m
Höhere Schule <3.000m
Nahversorgung
Supermarkt <500m
Bäckerei <1.000m
Einkaufszentrum <1.500m
Sonstige
Geldautomat <1.500m
Bank <1.500m
Post <1.500m
Polizei <1.000m
Verkehr
Bus <500m
U-Bahn <1.000m
Straßenbahn <1.500m
Bahnhof <1.000m
Autobahnanschluss <1.000m
Angaben Entfernung Luftlinie / Quelle: OpenStreetMap
Eckdaten Objektnr. 2411
| Art: | Wohnung - Dachgeschoß | 
| Land: | Österreich | 
| Baujahr: | 2009 | 
| Zustand: | Gepflegt | 
| Alter: | Neubau | 
| Gesamtmiete: | 2.300,00 € | 
| Kaltmiete (netto): | 2.083,72 € | 
| Kaltmiete: | 2.300,00 € | 
| Provision: | Gemäß Erstauftraggeberprinzip bezahlt der Abgeber die Provision. | 
| Betriebskosten: | 216,28 € | 
| Wohnfläche: | 104,00 m² | 
| Zimmer: | 4 | 
| Bäder: | 1 | 
| WC: | 2 | 
| Terrassen: | 1 | 
| Heizwärmebedarf: | B 42,37 kWh/m²a | 
| fGEE: | B 0,88 | 
Ausstattung
Fliesen, Parkett, Fernwärme, Zentralheizung, Einbauküche, Wohnküche / offene Küche, Personenaufzug, Badewanne, Dusche, Tiefgarage
Ihre persönliche Beratung
 
                    Mag. Sabine Klein
Immobilien Klein
T + 43 676 33 33 668
H +43 676 3333 668
 
                 
                 
                 
                 
                 
                 
                 
                 
                 
                 
                 
                 
                 
                 
                 
                 
                 
                 
                 
                 
                 
                 
                 
                