Moderne 243m² Büroeinheit im Gewerbepark Inzersdorf - 1230 Wien
Büro / Praxis
,
1230
Wien
Richard-Strauss-Straße
Beschreibung der Immobilie
Moderne 243m² Büroeinheit im Gewerbepark Inzersdorf - 1230 Wien
Neuwertige 243m² Büroeinheit im Gewerbepark Inzersdorf.
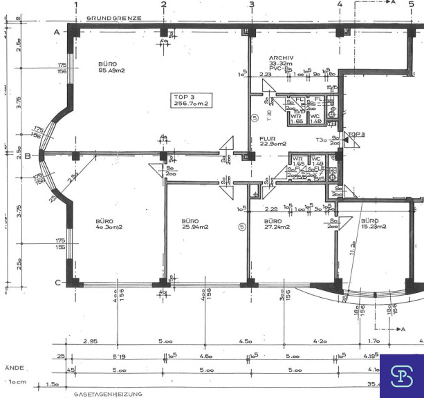
Das angebotene Büro befindet sich im 1. Stock (kein Lift) und besteht aus 5 Büroräumen, 1 gr. Archivraum mit Anschlüssen für Teeküche, Abstellraum sowie Sanitärräumlichkeiten,. Alle Räume sind von einem zentralen Vorraum begehbar.
Änderungswünsche wie Raumteiler o.ä. können nach Absprache berücksichtigt werden. Bei Bedarf kann auch 1 zusätzlicher PKW-Stellplatz angemietet werden.
Ausstattung: Modernes Bürohaus mit Gasetagenheizung, Büroteppichen, Deckenleuchten, komplette Kabelkanäle und Verrohrungen,.
Sehr gute Verkehrsanbindung durch den zentralen Standort Nähe Anschlussstelle Inzersdorf (A23, A2 und S1). Öffentlich ist der Standort mit der Autobuslinie 16A erreichbar.
Bitte geben Sie bei Ihrer Anfrage unbedingt die geplante Nutzung/Branche an!
Die Büroeinheit wird ab sofort in befristeter Hauptmiete (5 Jahre+) vermietet.
Gesamtmiete inkl. Bk und 20% USt. € 1.819.33
(HMZ € 1.200,- + Bk € 316,11 + 20% USt. € 303,22)
Kaution 5.460,-
Vermittlungshonorar 3MM (€ 5.448,33 zuzügl. 20% USt.)
KONTAKT: Anfragen bitte per Email-Anfragefunktion! Keine telefonische Terminvergabe!
Besuchen Sie für unsere weiteren Angebote bitte auch unsere Homepage: www.sitarz.at
Der Mieter zahlt im Erfolgsfall an die Firma Sitarz & Partner Immobilien GmbH eine Maklerprovision in Höhe von 1 Nettomonatsmiete zzgl. 20% USt. bei einer Befristung von weniger als 2 Jahren, bzw. 2 Nettomonatsmieten zzgl. 20% USt. bei einer Befristung von mehr als 2 Jahren, jedoch nicht mehr als 3 Jahren. Bei einer Befristung über 3 Jahren sowie bei unbefristeten Verträgen sind 3 Nettomonatsmieten zzgl. 20% USt. fällig. Die Provision errechnet sich aus der im Mietvertrag vereinbarten Nettomiete inkl. Betriebskosten. Ausdrücklich vereinbart wird dieser Provisionsanspruch in gleicher Höhe auch für die in § 15 MaklerG vorgesehenen Fälle (Unterlassung eines notwendigen Rechtsaktes wider Treu und Glauben, Abschluss eines zweckgleichen Geschäftes, Abschluss mit einem Dritten aufgrund der Weitergabe der Abschlussmöglichkeit, Ausübung eines Vorkaufs-, Wiederkaufs- oder Eintrittsrechtes). Falls Ihnen dieses Objekt bereits als verkauf- oder vermietbar bekannt ist, ersuchen wir innerhalb von 3 Werktagen um Ihre schriftliche Nachricht, ansonsten gilt die Provisionsregelung als vereinbart. Bei den Größen und Ertragsangaben handelt es sich um die von Abgeber/in (Eigentümer/in bzw. Hausverwaltung) zur Verfügung gestellten Informationen. Die Angaben wurden von uns kontrolliert, eine Gewähr für die Richtigkeit, Vollständigkeit und Letztstand müssen wir allerdings ausschließen. Es wird darauf hingewiesen, dass zwischen dem Abgeber und dem Immobilienmakler ein wirtschaftliches bzw. familiäres Nahverhältnis besteht und der Immobilienmakler auch für diesen tätig ist (Doppelmakler).
Wir weisen darauf hin, dass zwischen dem Vermittler und dem zu vermittelnden Dritten ein familiäres oder wirtschaftliches Naheverhältnis besteht.
Infrastruktur / Entfernungen
Gesundheit
Arzt <1.500m
Apotheke <1.500m
Klinik <2.000m
Krankenhaus <3.000m
Kinder & Schulen
Schule <2.000m
Kindergarten <1.000m
Universität <4.000m
Höhere Schule <4.500m
Nahversorgung
Supermarkt <1.000m
Bäckerei <2.500m
Einkaufszentrum <1.500m
Sonstige
Geldautomat <1.500m
Bank <1.500m
Post <500m
Polizei <2.000m
Verkehr
Bus <500m
U-Bahn <2.000m
Straßenbahn <2.000m
Bahnhof <1.500m
Autobahnanschluss <500m
Angaben Entfernung Luftlinie / Quelle: OpenStreetMap
Eckdaten Objektnr. 7582
Art: | Büro / Praxis |
Land: | Österreich |
Zustand: | Neuwertig |
Alter: | Neubau |
Kaltmiete (netto): | 1.200,00 € |
Kaltmiete: | 1.516,11 € |
Miete / m²: | 4,96 € |
Provision: | 6.538,00 € inkl. 20% USt. |
Betriebskosten: | 316,11 € |
MwSt Gesamt: | 303,22 € |
Nutzfläche: | 242,10 m² |
Bürofläche: | 242,10 m² |
Zimmer: | 5 |
WC: | 2 |
Heizwärmebedarf: | C 24,50 kWh/m²a |
fGEE: | C 1,02 |
Ausstattung
Teppichboden, Gas, Etagenheizung, Parkplatz, Teeküche
Ihre persönliche Beratung

Sitarz & Partner Immobilien GmbH
Sitarz & Partner Immobilien GmbH
T +4318907940