Ebenerdige 218m² Lagerfläche mit Rolltor Nähe Rautenweg - 1220 Wien

Halle / Lager / Produktion - Lager, 1220 Wien


Wagramer Straße

Beschreibung der Immobilie

Ebenerdige 218m² Lagerfläche mit Rolltor Nähe Rautenweg - 1220 Wien

Geschlossener 218m² Lagerraum mit Rolltor zu vermieten!



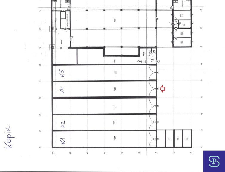
Zur Vermietung gelangen geschlossene Lagerräume mit jeweils 218m² Nutzfläche auf der Wagramer Straße, in unmittelbarer Nähe zum Rautenweg. Diese Anzeige betrifft die Einheit Lager K4. Die Anmietung ist nur zu Lagerzwecken möglich!  



Ausstattung: Ebenerdiger Lagerraum mit Eingangstüre und Rolltor, Deckenbeleuchtung, Gemeinschafts-WC und Dusche zur Mitbenutzung,.  



Großzügige Lagerfläche mit Zufahrts- und Parkmöglichkeit. Es können bei Bedarf derzeit insgesamt 2 Lagereinheiten (Lager K3 + Lager K4) mit je 218m² Lagerfläche und eigenem Rolltor angemietet werden. Sehr gute Anbindung zur A23 und öffentliche Verkehrsanbindung durch U1 sowie den Autobuslinien 28A und 520 in Gehdistanz. 



Bitte beachten Sie, dass die Vermietung nur an vorsteuerabzugsberechtigte Unternehmen oder Personen möglich ist! Die Vermietung erfolgt ausschließlich zu Lagerzwecken! 



Bitte geben Sie bei Ihrer Anfrage unbedingt die geplante Nutzung/Branche an!



Das Mietobjekt wird ab sofort in befristeter Hauptmiete (5 Jahre) vermietet.

Gesamtmiete inkl. Bk und 20% USt. € 1.926,50
(HMZ netto € 1.300,- + Bk € 305,42 + 20% USt. € 321,08)

Kaution € 5.780,-

Vermittlungshonorar 3MM (€ 4.816,26 zuzügl. 20% USt.)



KONTAKT: Anfragen bitte per Email-Anfragefunktion! Keine telefonische Terminvergabe!




Besuchen Sie für unsere weiteren Angebote bitte auch unsere Homepage: www.sitarz.at




Der Mieter zahlt im Erfolgsfall an die Firma Sitarz & Partner Immobilien GmbH eine Maklerprovision in Höhe von 1 Nettomonatsmiete zzgl. 20% USt. bei einer Befristung von weniger als 2 Jahren, bzw. 2 Nettomonatsmieten zzgl. 20% USt. bei einer Befristung von mehr als 2 Jahren, jedoch nicht mehr als 3 Jahren. Bei einer Befristung über 3 Jahren sowie bei unbefristeten Verträgen sind 3 Nettomonatsmieten zzgl. 20% USt. fällig. Die Provision errechnet sich aus der im Mietvertrag vereinbarten Nettomiete inkl. Betriebskosten. Ausdrücklich vereinbart wird dieser Provisionsanspruch in gleicher Höhe auch für die in § 15 MaklerG vorgesehenen Fälle (Unterlassung eines notwendigen Rechtsaktes wider Treu und Glauben, Abschluss eines zweckgleichen Geschäftes, Abschluss mit einem Dritten aufgrund der Weitergabe der Abschlussmöglichkeit, Ausübung eines Vorkaufs-, Wiederkaufs- oder Eintrittsrechtes). Falls Ihnen dieses Objekt bereits als verkauf- oder vermietbar bekannt ist, ersuchen wir innerhalb von 3 Werktagen um Ihre schriftliche Nachricht, ansonsten gilt die Provisionsregelung als vereinbart. Bei den Größen und Ertragsangaben handelt es sich um die von Abgeber/in (Eigentümer/in bzw. Hausverwaltung) zur Verfügung gestellten Informationen. Die Angaben wurden von uns kontrolliert, eine Gewähr für die Richtigkeit, Vollständigkeit und Letztstand müssen wir allerdings ausschließen. Es wird darauf hingewiesen, dass zwischen dem Abgeber und dem Immobilienmakler ein wirtschaftliches bzw. familiäres Nahverhältnis besteht und der Immobilienmakler auch für diesen tätig ist (Doppelmakler).




Wir weisen darauf hin, dass zwischen dem Vermittler und dem zu vermittelnden Dritten ein familiäres oder wirtschaftliches Naheverhältnis besteht.


Der Vermittler ist als Doppelmakler tätig.

Infrastruktur / Entfernungen

Gesundheit
Arzt <1.000m
Apotheke <1.000m
Klinik <2.500m
Krankenhaus <4.000m

Kinder & Schulen
Schule <1.000m
Kindergarten <1.000m
Universität <3.000m
Höhere Schule <2.500m

Nahversorgung
Supermarkt <500m
Bäckerei <500m
Einkaufszentrum <1.000m

Sonstige
Bank <1.000m
Geldautomat <1.000m
Post <1.000m
Polizei <1.000m

Verkehr
Bus <500m
U-Bahn <1.000m
Straßenbahn <2.500m
Bahnhof <1.000m
Autobahnanschluss <1.500m

Angaben Entfernung Luftlinie / Quelle: OpenStreetMap

Verfügbare Flächen

Stiege/Bauteil


Stockwerk
Top
Art
Fläche
Terrasse
Nettomiete/m²
BK/m²

-
-
Halle / Lager / Produktion
218,16 m2
-
-

1. Etage
-
Büro / Praxis
24,75 m2
-
-

2. Etage
-
Büro / Praxis
68,38 m2
-
-

1. Etage
-
Büro / Praxis
72,08 m2
-
-

1. Etage
-
Büro / Praxis
27,03 m2
-
-

1. Etage
-
Büro / Praxis
101,23 m2
-
-

1. Etage
-
Büro / Praxis
39,86 m2
-
-

1. Etage
-
Büro / Praxis
47,88 m2
-
-

verfügbare flächen

Stiege/Bauteil

Stockwerk
Top
Art
Fläche
Teilbar ab
Terrasse
Nettomiete/m2 von-bis
BK/m2
-
-
Halle / Lager / Produktion
218,16 m2
-
-
-
-
Stockwerk
Top
Art
Fläche
Teilbar ab
Terrasse
Nettomiete/m2 von-bis
BK/m2
1. Etage
-
Büro / Praxis
24,75 m2
-
-
-
-
Stockwerk
Top
Art
Fläche
Teilbar ab
Terrasse
Nettomiete/m2 von-bis
BK/m2
2. Etage
-
Büro / Praxis
68,38 m2
-
-
-
-
Stockwerk
Top
Art
Fläche
Teilbar ab
Terrasse
Nettomiete/m2 von-bis
BK/m2
1. Etage
-
Büro / Praxis
72,08 m2
-
-
-
-
Stockwerk
Top
Art
Fläche
Teilbar ab
Terrasse
Nettomiete/m2 von-bis
BK/m2
1. Etage
-
Büro / Praxis
27,03 m2
-
-
-
-
Stockwerk
Top
Art
Fläche
Teilbar ab
Terrasse
Nettomiete/m2 von-bis
BK/m2
1. Etage
-
Büro / Praxis
101,23 m2
-
-
-
-
Stockwerk
Top
Art
Fläche
Teilbar ab
Terrasse
Nettomiete/m2 von-bis
BK/m2
1. Etage
-
Büro / Praxis
39,86 m2
-
-
-
-
Stockwerk
Top
Art
Fläche
Teilbar ab
Terrasse
Nettomiete/m2 von-bis
BK/m2
1. Etage
-
Büro / Praxis
47,88 m2
-
-
-
-

Eckdaten Objektnr. 7589

Art: Halle / Lager / Produktion - Lager
Land: Österreich
Zustand: Teil_vollrenoviert
Alter: Neubau
Kaltmiete (netto): 1.300,00 €
Kaltmiete: 1.605,42 €
Miete / m²: 10,10 €
Provision: 5.779,51 € inkl. 20% USt.
Betriebskosten: 305,42 €
MwSt Gesamt: 321,08 €
Nutzfläche: 218,16 m²
Lagerfläche: 218,16 m²
Heizwärmebedarf:  C  47,50 kWh/m²a
fGEE:  B  0,96
Immobilie merken Exposé

Ausstattung

Estrichboden, Dusche


Immobilie anfragen


Ihre persönliche Beratung

Sitarz & Partner Immobilien GmbH

Sitarz & Partner Immobilien GmbH

Sitarz & Partner Immobilien GmbH

T +4318907940