Sanierungsbedürftiges Zweifamilienhaus in Gunskirchen, ruhig gelegen

Haus , 4623 Gunskirchen


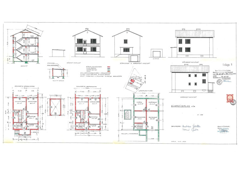
Beschreibung der Immobilie

Sanierungsbedürftiges Zweifamilienhaus in Gunskirchen, ruhig gelegen

Dieses Haus punktet mit seiner zentralen Lage, dem großen Grundstück und mit der Möglichkeit von 2 getrennten Wohneinheiten. Eine Garage für zwei Fahrzeuge und der großzügige Keller (71,46 m2) bieten viel Platz für Ihre Hobbys oder für Kellerabteile je Wohneinheit. Es gilt die OÖ. Bauordnung bzw. OÖ. BauTG. Das Haus ist für jedes Bedürfnis perfekt zu adaptieren. Sanierungsarbeiten sind durchzuführen.



* Ziegel-Massiv-Bauweise, Kelleraußenmauer Beton

* Satteldach Eternitplatten

* Zweifamilienhaus - 2 getrennte Wohneinheiten mit je 75,65 m2 Wohnfläche

* Gastherme NEU 2000

* Kunststoff & Holzfenster Fenster (2-fach verglast) - sanierungsbedürftig

* großer Keller mit Starkstromanschluss, Aus- und Zugang vom Haus und Garten

* 2 Bäder und 2 Toiletten (jeweils mit Fenster)

* Tief-Garage mit Kraftstromanschluss

* ruhige Wohnstraße

 



Lt. Auskunft Gemeinde Gunskirchen: Grundstücksteilung nicht möglich, da in den hinteren Bereich nicht gebaut werden darf - keine Zufahrt möglich. Doppelhaus nach Abriss wäre möglich, aber es muss in der Flucht der Nachbarn gebaut werden (GZ 0,5) 2 Wohneinheiten kein Problem. DG-Ausbau mit Flachdach ist aufgrund Ortsplaner nicht möglich, da ein einziges dreigeschoßiges Wohngebäude in isolierter Form mitten in einer zweigeschoßigen Wohnanlage nicht in die Umgebung passt und keine ausreichenden Stellplätze zur Verfügung stehen würden. Anbau in Flucht der Nachbargebäude möglich.




Zusatzinformation:

Anzahl Etagen: 2

Garagenplätze: 2 (1x Tiefgarage, 1x Garage)

Stellplatz: vor Garagen bzw. in der Wohnstraße

Baujahr: 1967

monatliche Kosten (inkl. MWSt): zur Zeit ca. EUR 250,00



Dieses Zweifamilienhaus befindet sich 1,4 km zum Zentrum der beliebten Gemeinde Gunskirchen entfernt. In unmittelbarer Nähe erreichen Sie zwei Lebensmittelmärkte, Bäckerei Rohrer, Fleischerei Staudinger, Apotheke, Ärzte etc., sowie mehrere gastronomische Betriebe, ebenso Kindergarten und Krabbelstube, eine Volks- und Mittelschule, einen Freizeitpark u.v.a.m. Auch öffentliche Verkehrsmittel, wie Bus und Bahn, sind in kurzer Distanz vorhanden. Innerhalb 9 km (15 min) erreichen Sie den Stadtplatz in Wels, in ca. 44 km (35 min) den Linzer Hauptplatz. Die nächstgelegene Autobahnauffahrt ist unweit entfernt.



FINANZIERUNG:



Sie haben die passende Immobilie gefunden, wissen aber nicht wie Sie sie finanzieren sollen?



Auch bei diesem Thema unterstützen wir wo wir können. KOSTENLOS und UNVERBINDLICH!





Unverbindliches, freibleibendes Angebot. Informationen nach bestem Wissen und Gewissen vom Abgeber erhalten - für die Richtigkeit wird keine Haftung übernommen. Irrtümer, Druckfehler und Änderungen vorbehalten. Besichtigungen und Beratungen erfolgen kostenlos, lediglich im Falle einer erfolgreichen Vermittlungstätigkeit ist die gesetzliche bzw. angeführte Provision von 3% zzgl. 20% USt zur Zahlung fällig. Es besteht zwischen dem Vermittler und dem Abgeber kein wirtschaftliches und familiäres Naheverhältnis.



Sofern es sich bei den Bildern um Visualisierungen handelt, kann es zu Abänderungen zur tatsächlichen Ausführung kommen.



Informationen zum Datenschutz unter www.stummerimmo.at/datenschutz/


Der Vermittler ist als Doppelmakler tätig.

Infrastruktur / Entfernungen

Gesundheit
Arzt <1.500m
Apotheke <1.500m
Klinik <6.000m
Krankenhaus <8.500m

Kinder & Schulen
Schule <1.000m
Kindergarten <1.000m
Universität <8.000m

Nahversorgung
Supermarkt <500m
Bäckerei <1.000m
Einkaufszentrum <3.500m

Sonstige
Bank <1.000m
Geldautomat <1.500m
Post <1.500m
Polizei <1.500m

Verkehr
Bus <500m
Autobahnanschluss <4.500m
Bahnhof <1.000m
Flughafen <10.000m

Angaben Entfernung Luftlinie / Quelle: OpenStreetMap

Eckdaten Objektnr. 8461/196

Art: Haus
Land: Österreich
Baujahr: 1967
Zustand: Sanierungsbeduerftig
Alter: Altbau
Kaufpreis: 330.000,00
Provision: 3% des Kaufpreises zzgl. 20% USt.
Wohnfläche: 151,30 m²
Nutzfläche: 222,76 m²
Grundstücksfl.: 1.020,00 m²
Zimmer: 6
Bäder: 2
WC: 2
Terrassen: 1
Stellplätze: 2
Keller: 71,46 m²
Heizwärmebedarf:  G  308,30 kWh/m²a
fGEE:  F  3,82
Immobilie merken Exposé

Ausstattung

Gas, Zentralheizung


Immobilie anfragen


Ihre persönliche Beratung

Stummer Immobilien

Heike Stummer

Stummer Immobilien

T +43 676 6332731

H +43 676 6332731