Das älteste Bordell Europas sucht neuen Pächter

Gastgewerbe , 4400 Steyr


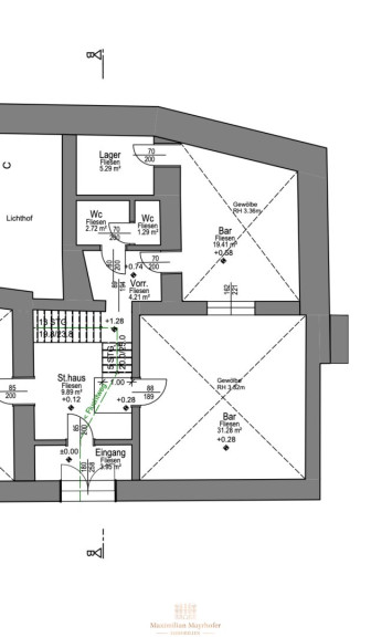
Beschreibung der Immobilie

Das älteste Bordell Europas sucht neuen Pächter

Wir bieten Ihnen die einmalige Chance, ein Stück Geschichte zu übernehmen: Das älteste Bordell Österreichs – und möglicherweise Europas – sucht einen neuen Pächter. Dieses außergewöhnliche Objekt vereint historische Bedeutung, architektonischen Charme und modernste Ausstattung in einem beeindruckenden Gesamtensemble.



Das Gebäude aus dem Jahr 1477 erzählt auf jeder Etage seine eigene Geschichte. Mit seinen ehrwürdigen Mauern, den gotischen Gewölben und dem einzigartigen Ambiente zählt es zu den bedeutendsten historischen Liegenschaften seiner Art. In den letzten Jahren wurde das gesamte Objekt umfassend generalsaniert und technisch auf den neuesten Stand gebracht – dabei blieb der historische Charakter vollständig erhalten. So entstand ein harmonisches Zusammenspiel aus mittelalterlicher Atmosphäre und zeitgemäßem Komfort, das seinesgleichen sucht.



Im Obergeschoss erwarten Sie elf stilvoll gestaltete Zimmer, die großteils mit Dusche, Waschbecken und Whirlpool ausgestattet sind. Ergänzt wird dieses Niveau durch private Rückzugsräume für Betreiber und Mitarbeiter. Der großzügige Barbereich im Erdgeschoss begeistert mit seiner voll ausgestatteten Theke, der eindrucksvollen Animierstange und dem imposanten Kreuzgewölbe – ein Ambiente, das Gäste wie Betreiber gleichermaßen in seinen Bann zieht.



Ergänzend stehen mehrere Nebenräume, drei WCs, ein Schminkraum, Abstellflächen und eine Waschküche zur Verfügung. Sämtliche Installationen, Beleuchtungen und Belüftungen wurden im Zuge der Sanierung erneuert, wodurch ein sofortiger Betrieb ohne zusätzliche Investitionen möglich ist.



Alle erforderlichen behördlichen Genehmigungen liegen vor und sind aktuell. Auf Wunsch kann zusätzlich eine Betreiberwohnung im selben Gebäude sowie ein weiterer Geschäfts- oder Veranstaltungsraum angemietet werden.



Dieses Objekt bietet nicht nur die Möglichkeit, eine geschichtsträchtige Adresse zu übernehmen, sondern auch die Chance, sie mit einem neuen, zukunftsorientierten Konzept fortzuführen.





Was diese Immobilie auszeichnet:




  • Historisches Gebäude aus dem Jahr 1477 – das älteste, noch aktive, Bordell Europas



  • Vollständig generalsaniert und modern ausgestattet



  • 11 stilvolle Damenzimmer mit modernen Sanitäranlagen



  • Großzügiger Barbereich mit Kreuzgewölbe und Animierstange



  • Mehrere Nebenräume, Schminkraum, Abstellflächen und Waschküche



  • Alle Genehmigungen aufrecht, sofort betriebsbereit



  • Optional: Betreiberwohnung und zusätzlicher Geschäftsraum im selben Haus



  • Einzigartige Atmosphäre mit geschichtsträchtigem Flair






Lage:



Die Liegenschaft befindet sich in der Badgasse, einer der traditionsreichsten Straßen der Innenstadt – nur wenige Schritte vom Zentrum entfernt und dennoch in einer angenehm unaufdringlichen Lage. Diese Kombination aus zentraler Erreichbarkeit und diskretem Umfeld bietet ideale Voraussetzungen für den Bordellbetrieb.



Die Badgasse ist verkehrstechnisch hervorragend angebunden, sowohl für lokale Stammkundschaft als auch für Gäste aus dem weiteren Umland. In unmittelbarer Nähe finden sich öffentliche Parkmöglichkeiten, gastronomische Betriebe und Hotels – Faktoren, die einen kontinuierlichen Gästefluss begünstigen.



Durch die jahrzehntelange Nutzung des Hauses in dieser Funktion ist die Adresse überregional bekannt und genießt einen entsprechend hohen Wiedererkennungswert. In Verbindung mit der kulturellen und touristischen Bedeutung der Stadt ergibt sich daraus ein hervorragendes wirtschaftliches Umfeld für eine seriöse und erfolgreiche Weiterführung des Betriebes.







Hinweis zu den Übernahmekonditionen:



Das Lokal wird ablösefrei angeboten. Im Rahmen der Übernahme sind jedoch folgende Anfangsinvestitionen zu berücksichtigen, welche fix und nicht verhandelbar sind:




  • Gesamtmiete: € 5.160,– (inkl. MwSt. und Betriebskosten)



  • Kaution: € 15.000,–



  • Provision: € 15.480,– (inkl. 20 % USt.)




Die Vergabe erfolgt ausschließlich an branchenerfahrene Interessenten, die in der Lage sind, die genannten Anfangsinvestitionen zu leisten und einen ordnungsgemäßen Betrieb sicherzustellen.



Seitens des Verpächters wird ausschließlich die Liegenschaft samt bestehender, umfassender Ausstattung bereitgestellt. Eine betriebsbezogene Beratung, Unterstützung oder Mitwirkung erfolgt nicht.



Diese Konditionen bilden die verbindliche Grundlage für eine allfällige Anmietung bzw. Übernahme.


Wir weisen darauf hin, dass zwischen dem Vermittler und dem zu vermittelnden Dritten ein familiäres oder wirtschaftliches Naheverhältnis besteht.


Der Vermittler ist als Doppelmakler tätig.

--

Wir unterstützen Sie gerne auch bei der Finanzierung Ihrer Traumimmobilie – ganz ohne Mindesteigenkapital und zu besten Konditionen. Kontaktieren Sie uns unverbindlich!

Maximilian Mayrhofer - Ihr Immobilienpartner mit Handschlagqualität!

www.maximilian-mayrhofer.at | info@maximilian-mayrhofer.at | Mayrhofer GmbH (FN597782t)

Dieses Angebot ist unverbindlich und freibleibend. Die Angaben basieren auf Informationen des Abgebers, für deren Richtigkeit keine Haftung übernommen wird. Mündliche Nebenabreden bedürfen zu ihrer Wirksamkeit der Schriftform.

Behördliche Genehmigungen und Auflagen sind vom Käufer/Mieter/Pächter eigenständig zu erfüllen.

Irrtümer, Druckfehler und Änderungen bleiben vorbehalten. Besichtigungen und Beratungen sind kostenlos, die Provision wird nur im Erfolgsfall fällig.

Infrastruktur / Entfernungen

Gesundheit
Arzt <500m
Apotheke <500m
Klinik <1.000m
Krankenhaus <2.000m

Kinder & Schulen
Schule <500m
Kindergarten <500m
Universität <500m
Höhere Schule <1.000m

Nahversorgung
Supermarkt <500m
Bäckerei <500m
Einkaufszentrum <1.000m

Sonstige
Bank <500m
Geldautomat <500m
Post <1.000m
Polizei <500m

Verkehr
Bus <500m
Bahnhof <1.000m

Angaben Entfernung Luftlinie / Quelle: OpenStreetMap

Eckdaten Objektnr. 7984/193

Art: Gastgewerbe
Land: Österreich
Baujahr: 1477
Zustand: Modernisiert
Alter: Altbau
Kaltmiete (netto): 4.000,00 €
Kaltmiete: 4.300,00 €
Provision: 15.480,00 € inkl. 20% USt.
Betriebskosten: 300,00 €
MwSt Gesamt: 860,00 €
Nutzfläche: 325,00 m²
Zimmer: 11
Heizwärmebedarf: 392,00 kWh/m²a
fGEE: 3,39
Immobilie merken Exposé

Ausstattung

Gas, Zentralheizung, Einbauküche, Kabel/Satelliten-TV, Alarmanlage, Wasch/Trockenraum


Immobilie anfragen


Ihre persönliche Beratung

Maximilian Mayrhofer Immobilien

Maximilian Mayrhofer

Mayrhofer GmbH

T +43 664 515 59 85