Charmante Gartenwohnung in 1180 Wien – Ihr grünes Paradies auf 48,61 m²!

Wohnung , 1180 Wien


Beschreibung der Immobilie

Charmante Gartenwohnung in 1180 Wien – Ihr grünes Paradies auf 48,61 m²!

Willkommen in Ihrem neuen Zuhause in der charmanten Gartenwohnung in 1180 Wien!



Diese exquisite Immobilie bietet Ihnen nicht nur ein stilvolles und modernes Wohnambiente, sondern auch die Möglichkeit, in einer der lebenswertesten Gegenden Wiens zu wohnen. Mit einer großzügigen Fläche von 48,61 m² ist diese Wohnung ideal für Singles, Paare oder kleine Familien, die das Stadtleben mit den Vorzügen einer grünen Oase verbinden möchten.



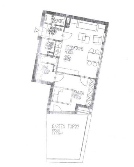
Die Wohnung besticht durch die gute Aufteilung. Ein großzügiges Wohnzimmer mit Küche, ein Schlafzimmer, von dem aus direkt ins Bad und in den Garten gelangt werden kann und es gibt ein separates WC sowie einen Abstellraum. Die Küche ist bis zu einem Geschirrspüler und einer Einbaumikrowelle voll eingerichtet.



Auch ein vollwertiger Tiefgaragenplatz kann für 100€ pro Monat dazu gemietet werden.



Der besondere Charme dieser Gartenwohnung liegt in ihrem eigenen Garten, der Ihnen einen Rückzugsort im Freien bietet. Stellen Sie sich vor, wie Sie an warmen Sommertagen in Ihrem eigenen Garten entspannen, Freunde einladen oder einfach nur die Ruhe genießen. Dieser private Außenbereich ist der perfekte Ort, um die Natur zu genießen und neue Energie zu tanken.



Die Lage dieser Wohnung ist unschlagbar. Sie profitieren von einer hervorragenden Verkehrsanbindung, die Ihnen den Zugang zu allen Teilen der Stadt erleichtert. Ob Bus, U-Bahn oder Straßenbahn – die öffentlichen Verkehrsmittel sind in unmittelbarer Nähe und bringen Sie schnell und bequem zu Ihrem Ziel. Auch der Bahnhof ist nur einen Katzensprung entfernt, was Pendlern und Reisenden zusätzliche Flexibilität bietet.



Doch nicht nur die Anbindung ist ideal. In der Umgebung finden Sie eine Vielzahl von Einrichtungen, die Ihren Alltag erleichtern. Ärzte, Apotheken und Kliniken sind in der Nähe, sodass Sie sich um Ihre Gesundheit keine Sorgen machen müssen. Schulen und Kindergärten sind ebenfalls in unmittelbarer Umgebung, was diese Wohnung besonders attraktiv für Familien macht. Auch Supermärkte und Bäckereien sind fußläufig erreichbar, sodass Sie alles für den täglichen Bedarf bequem und schnell besorgen können.



Die Gartenwohnung in 1180 Wien bietet Ihnen nicht nur ein Zuhause, sondern auch Lebensqualität. Genießen Sie die Ruhe einer Wohngegend, während Sie gleichzeitig alle Vorzüge einer Großstadt in unmittelbarer Nähe haben.



Zögern Sie nicht länger und machen Sie den ersten Schritt zu Ihrem neuen Lebensabschnitt in dieser traumhaften Gartenwohnung. Kontaktieren Sie uns für weitere Informationen oder einen Besichtigungstermin. Ihr neues Zuhause wartet auf Sie!


Der Immobilienmakler erklärt, dass er – entgegen dem in der Immobilienwirtschaft üblichen Geschäftsgebrauch des Doppelmaklers – einseitig nur für den Vermieter tätig ist.

Infrastruktur / Entfernungen

Gesundheit
Arzt <500m
Apotheke <500m
Klinik <500m
Krankenhaus <1.500m

Kinder & Schulen
Schule <500m
Kindergarten <500m
Universität <1.500m
Höhere Schule <1.000m

Nahversorgung
Supermarkt <500m
Bäckerei <500m
Einkaufszentrum <2.000m

Sonstige
Geldautomat <1.000m
Bank <1.000m
Post <1.000m
Polizei <1.000m

Verkehr
Bus <500m
U-Bahn <1.000m
Straßenbahn <500m
Bahnhof <1.000m
Autobahnanschluss <3.500m

Angaben Entfernung Luftlinie / Quelle: OpenStreetMap

Eckdaten Objektnr. 5915/387

Art: Wohnung
Land: Österreich
Gesamtmiete: 1.099,99
Kaltmiete (netto): 835,84 €
Kaltmiete: 999,99 €
Provision: Gemäß Erstauftraggeberprinzip bezahlt der Abgeber die Provision.
Betriebskosten: 164,15 €
MwSt Gesamt: 100,00 €
Wohnfläche: 48,61 m²
Garten: 18,16 m²
Heizwärmebedarf: 46,48 kWh/m²a
Immobilie merken Exposé

Ausstattung

Parkett, Gas, Zentralheizung, Einbauküche, Personenaufzug, Südbalkon, Badewanne


Immobilie anfragen


Ihre persönliche Beratung

Peschak Immobilien GmbH

Ralph Peschak

Peschak Immobilien GmbH

T +43 69910835028