| ZWEI ZIMMER | GARTEN | AB FEBRUAR | NAHE ENKPLATZ U3

Wohnung , 1110 Wien , Dittmanngasse


Beschreibung der Immobilie

| ZWEI ZIMMER | GARTEN | AB FEBRUAR | NAHE ENKPLATZ U3

Dittmanngasse 1110 Wien – Nähe Enkplatz und Simmeringer Hauptstraße



Informationen zum Objekt 



Im  Wohnprojekt Dittmanngasse wurden soeben 104 exklusive Mietwohnungen errichtet.



Die attraktive Wohnanlage gliedert sich in zwei Baukörper und einer von der Straße geschützten großzügigen Grünanlage mit wertvollem Baumbestand.



Beide Häuser mit jeweils einem Stiegenhaus und barrierefreiem Aufzug sind unterirdisch direkt über eine Tiefgarage mit 55 Stellplätzen, davon 6 Lade-Stellplätze für E-Mobilität, verbunden.



Die Wohnungsgrößen reichen von 2 bis 3 Zimmern mit ca. 40 m² bis 75 m².

Jede Wohnung verfügt über schöne Freiflächen wie Loggia, Balkon, Terrasse oder Garten.



Das Wohngebäude wurde in energiesparender Niedrigenergiebauweise errichtet.





Ausstattung



- alle Wohnungen werden mit hochwertigen Tischler-Küchen samt Geräten von Zanussi (Geschirrspüler, Kühlschrank und Herd) ausgestattet

- Eichenparkettboden in sämtlichen Wohn- und Schlafräumen 

- Fußbodenheizung

- Internetanschluss / Glasfaseranschluss / Magenta / A1

- hauseigene SAT-Anlage für DVB-S-Empfang (der erforderliche SAT-Receiver ist vom    

  Mieter beizustellen).

- Beschattung je nach Wohnungstyp / Außenrollläden mit Kurbel händisch bedienbar

- Kunststofffenster mit 3-fach Verglasung

- Video-Gegensprechanlage mit Monitor



- Kellerabteile 

- Fahrrad- und Kinderwagen-Abstellräume

- Kinder- und Jugendspielplatz im großen Innenhof

- Kleinkinderspielplatz mit Sandkiste, Wipptier und Sitzbänken 

- Tiefgarage mit 55 Stellplätzen / € 110,00 pro Monat 

- Aufzug behindertengerecht





Infrastruktur und öffentliche Verkehrsmittel 



Das Wohnprojekt befindet sich in einer sehr guten und begehrten Lage zwischen Enkplatz und Simmeringer Hauptstraße. In der umliegenden Umgebung finden Sie Einkaufsmöglichkeiten wie Billa, Penny Markt, Post, Bank, eine Apotheke sowie einige Restaurants für Ihre kulinarischen Bedürfnisse.



Die U3-Station "Enkplatz" erreichen Sie in 2 Gehminuten, die Buslinien 76A und 76B liegen direkt vor der Haustüre.



 





Bei den Fotos handelt es sich um Beispielmaterial.


Der Immobilienmakler erklärt, dass er – entgegen dem in der Immobilienwirtschaft üblichen Geschäftsgebrauch des Doppelmaklers – einseitig nur für den Vermieter tätig ist.

DECUS Immobilien GmbH – Wir beleben Räume

Für weitere Informationen und Besichtigungen steht Ihnen gerne Frau  Jasmin Heida unter der Mobilnummer +43 660 850 78 07und per E-Mail unter heida@decus.at persönlich zur Verfügung.

www.decus.at | office@decus.at 

Wichtige Informationen

Bitte beachten Sie, dass per 13.06.2014 eine neue Richtlinie für Fernabsatz- und Auswärtsgeschäfte in Kraft getreten ist.

Ab 1.4.2024 entfallen die Grundbuchs- und Pfandrechtseintragungsgebühren vorübergehend für Eigenheime bis zu einer Bemessungsgrundlage von EUR 500.000,-. Voraussetzung ist das dringende Wohnbedürfnis, ausgenommen davon sind vererbte oder geschenkte Immobilien. Die Befreiung ist jedoch für den Einzelfall zu prüfen, DECUS Immobilien übernimmt hierzu keine Haftung.

Ab 01.07.2023 gilt das Erstauftraggeber-Prinzip bei Wohnungsmietverträgen, ausgenommen davon sind Dienst-/Natural-/Werkswohnungen. Wir dürfen gem. § 17 Maklergesetz darauf hinweisen, dass wir auf die Doppelmaklertätigkeit gem. § 5 Maklergesetz bei Wohnungsmietverträgen verzichten und nur noch einseitig tätig sind (bei den restlichen Vermittlungsarten nicht) und ein wirtschaftliches Naheverhältnis zu unseren Auftraggebern besteht. 

Im Falle eines Abschlusses mit Ihnen oder einem von Ihnen namhaft gemachten Dritten bzw. bei beidseitiger Willensübereinstimmung beträgt unser Honorar (lt. Honorarverordnung für Immobilienmakler) 2 Bruttomonatsmieten (BMM) bei Dienst-/Natural-/Werkwohnungen sowie Suchaufträgen, 3 BMM bei Gewerbe-, PKW- und Lagermietverträgen sowie bei Kaufobjekten 3 % des Kaufpreises, zuzüglich der gesetzlichen Umsatzsteuer.

Dieses Objekt wird Ihnen unverbindlich und freibleibend angeboten. Oben angeführte Angaben basieren auf Informationen und Unterlagen des Eigentümers und sind unsererseits ohne Gewähr.

Nähere Informationen sowie unsere AGBs und die Nebenkostenübersichtsblatt finden Sie auf unserer Homepage www.decus.at unter "Service" - "Rechtliches zum FAGG" sowie im Anhang der zugesendeten Objekt-Exposés!

Infrastruktur / Entfernungen

Gesundheit
Arzt <250m
Apotheke <250m
Klinik <1.000m
Krankenhaus <2.500m

Kinder & Schulen
Schule <250m
Kindergarten <250m
Universität <1.500m
Höhere Schule <1.750m

Nahversorgung
Supermarkt <250m
Bäckerei <250m
Einkaufszentrum <500m

Sonstige
Geldautomat <250m
Bank <250m
Post <250m
Polizei <250m

Verkehr
Bus <250m
U-Bahn <250m
Straßenbahn <250m
Bahnhof <250m
Autobahnanschluss <1.250m

Angaben Entfernung Luftlinie / Quelle: OpenStreetMap

Eckdaten Objektnr. 1151360

Art: Wohnung
Land: Österreich
Baujahr: 2020
Zustand: Erstbezug
Alter: Neubau
Gesamtmiete: 999,00
Kaltmiete (netto): 824,27 €
Kaltmiete: 908,18 €
Provision: Gemäß Erstauftraggeberprinzip bezahlt der Abgeber die Provision.
Betriebskosten: 83,91 €
MwSt Gesamt: 90,82 €
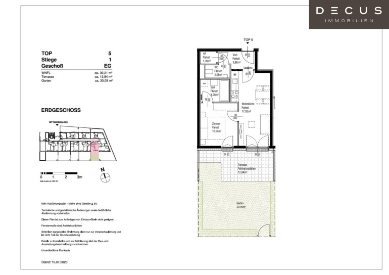
Wohnfläche: 39,21 m²
Nutzfläche: 39,21 m²
Zimmer: 2
Bäder: 1
WC: 1
Terrassen: 1
Garten: 30,09 m²
Keller: 1,76 m²
Heizwärmebedarf:  A  19,74 kWh/m²a
fGEE:  A  0,73
Immobilie merken Exposé

Ausstattung

Parkett, Gas, Solarenergie, Fußbodenheizung, Zentralheizung, Einbauküche, Personenaufzug, Kabel/Satelliten-TV


Immobilie anfragen


Ihre persönliche Beratung

DECUS Immobilien GmbH

Jasmin Heida

DECUS Immobilien GmbH

T +43 660 850 78 07

H +43 660 850 78 07

F +43 1 35 600 10