Beschreibung der Immobilie
Befristet vermietet - Eigennutzer oder Anleger
Projekt & Gebäude
Adresse: Kinskygasse 3 / Anton-Baumgartner-Straße 9–11, 1230 Wien.
Zwei hofseitige Baukörper mit 3 Geschoßen (Zugang über Kinskygasse 3).
Freiflächen für jede Wohnung (Loggia, Balkon, Terrasse oder Garten); EG-Gärten im ruhigen Innenhof.
Tiefgarage (Zufahrt Kinskygasse), Kinderwagen- & Fahrradraum, Kellerabteile, Müllräume in den straßenseitigen Gebäuden.
Zentrale Haustechnik für Energie & Warmwasser.
Ausstattungs-Highlights
Außenliegender Sonnenschutz, im DG elektrisch (EG straßenseitig Rollläden mit Einbruchschutz).
DG-Wohnungen klimatisiert.
Großzügige Freiflächen je Einheit.
Hochwertiger Parkett (Weitzer).
Lage & Anbindung
Nahversorgung fußläufig. Freizeit in unmittelbarer Nähe (u. a. Steinsee Alt-Erlaa, Schubertpark, Bogi Park, Maxx Entertainment Wien 23; Bowling Alterlaa ca. 6 Min.).
Öffi-Anbindung: Bus 65A/66A/67B (Willendorfer Gasse ~1 Min.), WLB-Station Inzersdorf ~3 Min.; Karlsplatz ~30 Min. öffentlich.
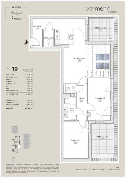
Top C19
Kaufpreis netto zzgl 20% Ust // Kaufpreis Eigennutzer: 495.000€
OBJEKTBESCHREIBUNG:
Aufgeteilt auf 3 Zimmer befinden sich auf ca 77m² Wohnfläche insgesamt 1 Vorzimmer, 1 Toilette, 1 Abstellraum, 1 Wohnzimmer mit offener Wohnküche und angrenzender 8m² Terrasse, sowie 2 Schlafzimmer, beide mit Ausgang auf die 8m² große Terrasse, und 1 Badezimmer
Highlight hier ist jedenfalls die 98m² große Dachterrasse.
Bei Bedarf kann ein Garagenplatz um 22.500€ netto zzgl 20% Ust (Anleger) oder 25.000€ (Eigennutzer) dazu erworben werden.
Wir weisen darauf hin, dass zwischen dem Vermittler und dem zu vermittelnden Dritten ein familiäres oder wirtschaftliches Naheverhältnis besteht.
Herr Manuel Plachner, MSc MRICS, Mobil: , Mail: m.plachner@advanta.at, steht für ein persönliches Gespräch sowie für einen Besichtigungstermin gerne zur Verfügung.
Infrastruktur / Entfernungen
Gesundheit
Arzt <250m
Apotheke <250m
Klinik <1.500m
Krankenhaus <1.500m
Kinder & Schulen
Schule <1.250m
Kindergarten <1.000m
Universität <3.500m
Höhere Schule <3.000m
Nahversorgung
Supermarkt <250m
Bäckerei <1.250m
Einkaufszentrum <1.000m
Sonstige
Geldautomat <1.000m
Bank <1.000m
Post <1.250m
Polizei <250m
Verkehr
Bus <250m
U-Bahn <1.250m
Straßenbahn <1.250m
Bahnhof <250m
Autobahnanschluss <500m
Angaben Entfernung Luftlinie / Quelle: OpenStreetMap
Eckdaten Objektnr. 6515
Art: | Wohnung - Dachgeschoß |
Land: | Österreich |
Baujahr: | 2018 |
Zustand: | Neuwertig |
Kaufpreis: | 445.500,00 € |
Provision: | 3% des Kaufpreises zzgl. 20% USt. |
Betriebskosten: | 165,58 € |
MwSt Gesamt: | 19,00 € |
Wohnfläche: | 77,00 m² |
Zimmer: | 3 |
Bäder: | 1 |
WC: | 1 |
Terrassen: | 3 |
Heizwärmebedarf: | B 24,38 kWh/m²a |
fGEE: | A 0,77 |
Ausstattung
Fußbodenheizung, Einbauküche, Personenaufzug, Badewanne, Dusche, Kabel/Satelliten-TV
Ihre persönliche Beratung

Manuel Plachner
ADVANTA – Immobilienvermittlungs GmbH
T +43 1 409 84 00
H +43 699 12 55 87 28
F +43 1 409 84 00 33