ANLEGERPREIS | GARTENWOHNUNG | 2-ZIMMER | MODERNE AUSSTATTUNG | SCHLÜSSELFERTIG
Wohnung
- Erdgeschoß,
1230
Wien
,
Erlaaer Straße
THE 150 ist gut an den öffentlichen Verkehr angebunden, wodurch eine bequeme Erreichbarkeit des Stadtzentrums und anderer Teile Wiens gewährleistet ist. Sowohl U6 U-Bahn als auch Autobus und die Badner Bahn sind zu Fuß in paar Minuten erreichbar. Mit dem Auto ist Knoten Vösendorf (A2,A21,S1) sowie Süd-Ost Tangente (A23) schnell erreichbar.
Beschreibung der Immobilie
ANLEGERPREIS | GARTENWOHNUNG | 2-ZIMMER | MODERNE AUSSTATTUNG | SCHLÜSSELFERTIG
| THE 150 |
Fertigstellung Q4 - 2025
Vereinbaren Sie JETZT einen Termin für die Besichtigung der Musterwohnungen (2 und 3 Zimmer)
Willkommen zu unserem exklusiven Neubauprojekt in einer ruhigen Nebenstraße Wiens mit 16 hochwertigen Eigentumswohnungen sowie einem Geschäftslokal. Diese Wohnungen bieten Singles, Anlegern und Familien gleichermaßen ein perfektes Zuhause, mit einer Auswahl von 1 bis 4 Zimmern für ein vielfältiges Wohnkonzept.
Architektonisches Konzept: Das Objekt besteht aus zwei Bauteilen, wobei die meisten Wohneinheiten eine eigene Außenfläche besitzen.
Alle Dachgeschoßwohnungen sowie das Townhouse sind mit großzügigen Dachterrassen ausgestattet.
Materialien und Technik: Hochwertige und Umweltfreundliche Materialien, moderne ALU-Kunststoff Fenster und Luft-Wasser-Wärmepumpe für Heizung, Warmwasser und Kühlung sorgen für erstklassigen Komfort und reduzieren den CO2 Fußabdruck des Gebäude erheblich.
Besondere Highlights:
- Massive Ziegel-Bauweise
- Umweltfreundliche Glaswolle für optimale Dämmung und Nachhaltigkeit
- Luft-Wasser-Wärmepumpe mit PV-Unterstützung für niedrigsten Energieverbrauch
- Komfortable Ausstattung mit Fußbodenheizung und Handtuchtrockner in den Badezimmern
- Fenster mit 3-fach-Isolierverglasung und UV-Schutz
- Wohnungseingangstüren für maximale Sicherheit und Brandschutz
- Effiziente Energieausnutzung mit niedrigem Heizwärmebedarf
- Klimatisierung für ganzjährigen Komfort
- Ab dem 1.OG ist eine Vorbereitung für die Split Geräte in jedem Wohnraum vorhanden
- Jeder Garagenplatz verfügt über eine „Wallbox“ Elektroladestation
- Die Wohnung sind mit einer Videogegensprechanlage ausgestattet
Schlüsselfertiges Paket: Jede Wohnung wird mit einem hochwertigen Schlüsselfertig-Paket ausgestattet, das höchsten Ansprüchen an Qualität und Design gerecht wird. Die Ausstattung umfasst elegante Dielenböden, die einen Hauch von Luxus verleihen, sowie exquisit gestaltete Sanitäranlagen, die Komfort und Eleganz vereinen. Darüber hinaus zeichnen sich die Badezimmer durch erstklassige Fliesen aus, die eine harmonische Atmosphäre schaffen und den zeitlosen Stil der Wohnungen unterstreichen.
Freiflächen und Ausstattung: Ein kleiner Kinderspielplatz und eine Eigengartenzone zwischen den Gebäuden bieten zusätzlichen Freiraum. Die Tiefgarage mit 9 PKW-Stellplätzen, Abstellräumen für Fahrräder und Kinderwagen sowie Technik- und Erschließungsräumen im Untergeschoss bieten maximalen Komfort.
Ein Garagenplatz kostet EUR 30.000,--
Die kalkulierten Betriebskosten für Garagenplätze belaufen sich auf: 22,40 € pro Monat, Brutto
Die kalkulierten Betriebskosten für die Wohneinheiten belaufen sich auf: 2,11€/m² und Monat, inkl. der Rücklage und zzgl. Ust.
Auf das wirtschaftliche Naheverhältnis zur Verkäuferin wird hingewiesen. Abweichungen von den Plänen und Änderungen sind vorbehalten! Die gezeigten Fotos sind mit KI-Software bearbeitet, und stammen von den beiden Musterwohnungen in diesem Haus. Bitte orientieren Sie sich zunächst am Plan.
Die Wohnungen werden ohne Küche übergeben.
Wir weisen darauf hin, dass zwischen dem Vermittler und dem zu vermittelnden Dritten ein familiäres oder wirtschaftliches Naheverhältnis besteht.
Der Vermittler ist als Doppelmakler tätig.
DECUS Immobilien GmbH – Wir beleben Räume
Für weitere Informationen und Besichtigungen steht Ihnen gerne Herr Ing. Nicolas Putzlager unter der Mobilnummer +43 660 302 61 70und per E-Mail unter putzlager@decus.at persönlich zur Verfügung.
www.decus.at | office@decus.at
Wichtige Informationen
Bitte beachten Sie, dass per 13.06.2014 eine neue Richtlinie für Fernabsatz- und Auswärtsgeschäfte in Kraft getreten ist.
Ab 1.4.2024 entfallen die Grundbuchs- und Pfandrechtseintragungsgebühren vorübergehend für Eigenheime bis zu einer Bemessungsgrundlage von EUR 500.000,-. Voraussetzung ist das dringende Wohnbedürfnis, ausgenommen davon sind vererbte oder geschenkte Immobilien. Die Befreiung ist jedoch für den Einzelfall zu prüfen, DECUS Immobilien übernimmt hierzu keine Haftung.
Ab 01.07.2023 gilt das Erstauftraggeber-Prinzip bei Wohnungsmietverträgen, ausgenommen davon sind Dienst-/Natural-/Werkswohnungen. Wir dürfen gem. § 17 Maklergesetz darauf hinweisen, dass wir auf die Doppelmaklertätigkeit gem. § 5 Maklergesetz bei Wohnungsmietverträgen verzichten und nur noch einseitig tätig sind (bei den restlichen Vermittlungsarten nicht) und ein wirtschaftliches Naheverhältnis zu unseren Auftraggebern besteht.
Im Falle eines Abschlusses mit Ihnen oder einem von Ihnen namhaft gemachten Dritten bzw. bei beidseitiger Willensübereinstimmung beträgt unser Honorar (lt. Honorarverordnung für Immobilienmakler) 2 Bruttomonatsmieten (BMM) bei Dienst-/Natural-/Werkwohnungen sowie Suchaufträgen, 3 BMM bei Gewerbe-, PKW- und Lagermietverträgen sowie bei Kaufobjekten 3 % des Kaufpreises, zuzüglich der gesetzlichen Umsatzsteuer.
Dieses Objekt wird Ihnen unverbindlich und freibleibend angeboten. Oben angeführte Angaben basieren auf Informationen und Unterlagen des Eigentümers und sind unsererseits ohne Gewähr.
Nähere Informationen sowie unsere AGBs und die Nebenkostenübersichtsblatt finden Sie auf unserer Homepage www.decus.at unter "Service" - "Rechtliches zum FAGG" sowie im Anhang der zugesendeten Objekt-Exposés!
Infrastruktur / Entfernungen
Gesundheit
Arzt <250m
Apotheke <500m
Klinik <1.750m
Krankenhaus <1.750m
Kinder & Schulen
Schule <750m
Kindergarten <250m
Universität <5.000m
Höhere Schule <4.500m
Nahversorgung
Supermarkt <500m
Bäckerei <1.500m
Einkaufszentrum <1.000m
Sonstige
Geldautomat <500m
Bank <1.500m
Post <1.500m
Polizei <1.500m
Verkehr
Bus <250m
U-Bahn <750m
Straßenbahn <2.750m
Bahnhof <500m
Autobahnanschluss <1.000m
Angaben Entfernung Luftlinie / Quelle: OpenStreetMap
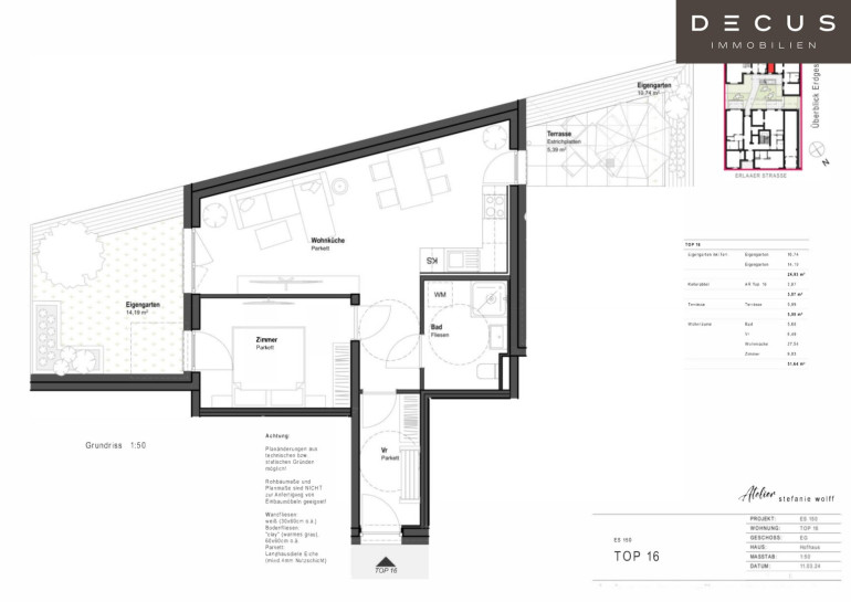
Eckdaten Objektnr. 1150878
Art: | Wohnung - Erdgeschoß |
Land: | Österreich |
Baujahr: | 2024 |
Zustand: | Erstbezug |
Alter: | Neubau |
Kaufpreis: | 378.561,60 € |
Provision: | 3% des Kaufpreises zzgl. 20% USt. |
Wohnfläche: | 51,64 m² |
Zimmer: | 2 |
Bäder: | 1 |
WC: | 1 |
Terrassen: | 1 |
Garten: | 24,93 m² |
Keller: | 3,13 m² |
Heizwärmebedarf: | B 41,30 kWh/m²a |
fGEE: | A+ 0,68 |
Ausstattung
Dielenboden, Fliesen, Fußbodenheizung, Wohnküche / offene Küche, Personenaufzug, Dusche, Tiefgarage
Ihre persönliche Beratung

Ing. Nicolas Putzlager
DECUS Immobilien GmbH
T +43 660 302 61 70
H +43 660 302 61 70
F +43 1 35 600 10