360 TOUR // BÜROFLÄCHE im ARES TOWER
Büro / Praxis
,
1220
Wien
Beschreibung der Immobilie
360 TOUR // BÜROFLÄCHE im ARES TOWER
BÜROFLÄCHEN im ARES TOWERDer im Zeitraum von 1999 bis 2001 nach Plänen von Prof. Heinz Neumann errichtete Ares Tower befindet sich im Stadtteil Donau City.
Er überzeugt nicht nur durch seine klassische Eleganz sondern auch durch die hervorragende Infrastruktur.
Die im obersten Stockwerk errichtete Eventlocation, "Wolke 19", erstreckt sich über zwei Stockwerke und eignet sich perfekt für Unternehmensevents.
Aufgrund der Lage, mitten in der Donau City im 22. Bezirk, kann die Infrastruktur als sehr gut bezeichnet werden. In unmittelbarer Nähe befinden sich Banken, sowie Geschäfte des täglichen Bedarfs, eine Apotheke, ein Ärztetetrum, Hotels und Kindergärten. Auch durch seine Nähe zum Erholungsgebiet Neue Donau kann der Ares Tower punkten.
Auch die Verkehrsanbindung ist sehr gut. Mit der U1 erreicht man das Stadtzentrum in nur 9 Minuten. Auch der Flughafen Wien-Schwechat ist in nur ca. 20-25 Minuten über die Autobahn erreichbar.
Durch all die genannten Vorzüge zählt die Lage des Ares Towers zu den erfolgreichsten Standorten Europas.
Die Form des Towers, zwei gegeneinander verschobene Gebäudescheiben, ermöglicht eine effizente Nutzung.
Eine weitere bautechnische Besonderheit sind die Fenster, die sich öffnen lassen.
Durch qualitativ hochwertige technische Ausstattung und ein 24 Stunden Technikservice wird ein reibungsloser Büroalltag garantiert.
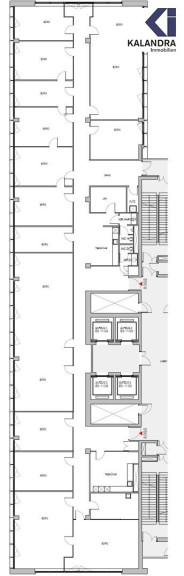
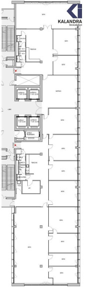
Die Einheit im Tower gliedert sich wie folgt:
12 getrennte Büros und 1 Großraumbüro, 1 Teeküche, 1 Serverraum, 1 Abstellraum, 2 Herren WC Einheiten mit Waschräumen und 2 Damen WC Einheiten mit dazugehörigen Waschräumen.
Mietpreis:
Nettomiete 15,5 Euro /m -> 10.764,13 Euro
Nettobertriebskosten: 4,70 Euro /m -> 3.263,96 Euro
360 Tour:
https://360.kalandra.at/view/portal/id/VVQR5
Infrastruktur / Entfernungen
Gesundheit
Arzt <500m
Apotheke <500m
Klinik <1.500m
Krankenhaus <2.500m
Kinder & Schulen
Schule <500m
Kindergarten <500m
Universität <2.000m
Höhere Schule <3.000m
Nahversorgung
Supermarkt <500m
Bäckerei <500m
Einkaufszentrum <2.000m
Sonstige
Geldautomat <500m
Bank <500m
Post <500m
Polizei <1.000m
Verkehr
Bus <500m
U-Bahn <500m
Straßenbahn <1.500m
Bahnhof <500m
Autobahnanschluss <500m
Angaben Entfernung Luftlinie / Quelle: OpenStreetMap
Eckdaten Objektnr. 18335
Art: | Büro / Praxis |
Land: | Österreich |
Baujahr: | 2001 |
Zustand: | Neuwertig |
Kaltmiete (netto): | 21.514,00 € |
Kaltmiete: | 29.080,46 € |
Provision: | 3 Bruttomonatsmieten zzgl. 20% USt. |
Betriebskosten: | 7.566,46 € |
MwSt Gesamt: | 5.816,09 € |
Nutzfläche: | 1.388,92 m² |
Zimmer: | 28 |
WC: | 12 |
Heizwärmebedarf: | C 61,00 kWh/m²a |
Ausstattung
Zentralheizung, Personenaufzug
Ihre persönliche Beratung

Mag. Robin Kalandra
KALANDRA Immobilien Robert Kalandra e.U.
T +43-1533326913
H +43-69911804004
F +43-1-533-32-69-20