Wohnen am Puls von Mauer – Exklusive Maisonette mit Terrasse und Stil | ZELLMANN IMMOBILIEN
Wohnung
- Maisonette,
1230
Wien
Beschreibung der Immobilie
Wohnen am Puls von Mauer – Exklusive Maisonette mit Terrasse und Stil | ZELLMANN IMMOBILIEN
Exklusive 4-Zimmer-Maisonette mit Terrasse im Herzen von Mauer
Stilvolles Wohnen in einer der begehrtesten Wohngegenden Wiens
Diese hochwertig sanierte Maisonettewohnung vereint großzügige Wohnflächen mit modernem Komfort und ruhiger, grüner Umgebung. Das Wohnjuwel erstreckt sich über zwei Etagen und bietet durchdachte Raumaufteilung, eine großzügige Südterrasse sowie einen herrlichen Blick ins Grüne – ideal für anspruchsvolle Paare, Familien oder Menschen mit dem Wunsch nach einem Homeoffice mit Stil.
Highlights der Wohnung
Wohnfläche gesamt: ca. 105 m²
Sonnige Terrasse mit ca. 14 m² Südausrichtung
4 Zimmer + Abstellraum + 2 Vorräume + separate Küche
Komplettsanierung 2017/2018
Ruhelage im begrünten Innenhofbereich
Vollwärmeschutzfassade & Thermoverglasung
Kosten für Heizung und Strom (4-köpfige) Familie: 180,-/Monat
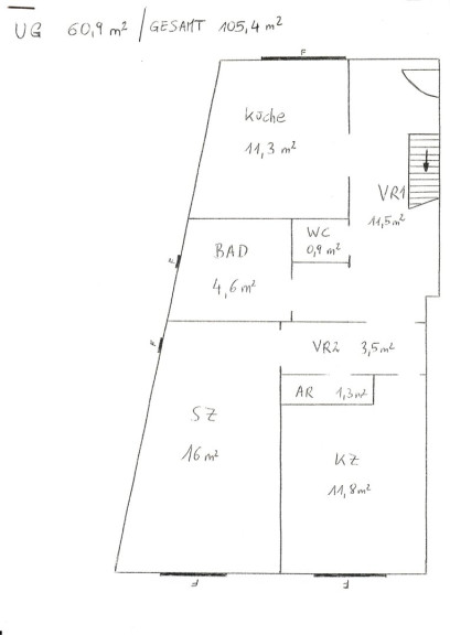
Raumaufteilung
Untere Etage (ca. 61 m²):
Großzügige Küche mit Essbereich (11,3 m²)
Schlafzimmer (16 m²)
Kinderzimmer (11,8 m²)
Badezimmer mit Wanne (4,6 m²)
Separates WC
Abstellraum & Vorzimmer
Obere Etage (ca. 44 m²):
Wohnbereich mit Ausgang auf die Terrasse (24,5 m²)
Zusätzliches Zimmer, ideal als Büro oder Gästezimmer (13,8 m²)
Galerievorraum mit Dachflächenfenster
Terrasse mit Grünblick (14 m²)
Ausstattung
Einbauküche mit Geräten
Massivbauweise, Parkett- & Fliesenböden
Etagenheizung (Luftwärmepumpe)
Südseitige Terrasse mit freiem Blick
Kunststofffenster mit Doppelverglasung
Kabel- und Satellitenanschluss
Die Lage – Wohnen rund um den Maurer Hauptplatz
Diese Wohnung befindet sich in einer der charmantesten Wohngegenden Wiens – Wien-Mauer, einem Stadtteil mit dem Flair eines Wiener Vororts und gleichzeitig exzellenter Anbindung an das Zentrum. Der beliebte Maurer Hauptplatz mit seinem dörflichen Charakter bildet das Herz der Umgebung. Er ist geprägt von kleinen Geschäften, gemütlichen Cafés, traditionsreichen Heurigenlokalen und viel Grün.
In unmittelbarer Umgebung befinden sich:
Bus, Straßenbahn und S-Bahn in Gehdistanz
Schulen, Kindergärten und medizinische Versorgung
Supermärkte, Apotheken und Bäckereien
Spazier- und Radwege durch den Maurer Wald und das Liesingbach-Ufer
Naherholungsgebiete wie der Lainzer Tiergarten und die Perchtoldsdorfer Heide
Die Kombination aus urbaner Infrastruktur und naturnahem Wohnen macht diese Lage zu einer der begehrtesten in ganz Wien.
Ein Zuhause für Menschen mit Anspruch
Die Wohnung ist sofort beziehbar und eignet sich ideal für:
Familien mit 2 Kindern
Homeoffice-Nutzer:innen
Paare mit Platzbedarf
Ruhesuchende Genießer
Grundriss
Die beiden Ebenen dieser Maisonettewohnung sind optimal gegliedert. Detaillierte Grundrisse finden Sie auf den nächsten Seiten.
Wenn Sie ein Zuhause suchen, das stilvolles Design, hochwertige Ausstattung und eine herausragende Lage vereint, dann ist diese Wohnung die perfekte Wahl.
Da e-mails leider manchmal in SPAM oder WERBE Ordnern landen, ersuchen wir Sie diese zu kontrollieren. Wir antworten in der Regel binnen weniger Stunden. Auch am Wochenende! Teilen Sie uns bitte auch Ihre Telefonnummer mit, da wir Sie per SMS über die Versendung des Exposés verständigen können!
Dieses Objekt wird Ihnen unverbindlich und freibleibend zum Kauf angeboten. Oben angeführte Angaben basieren auf Informationen und Unterlagen des Eigentümers und sind unsererseits ohne Gewähr. Der guten Ordnung halber halten wir fest, dass, sofern im Angebot nicht anders vermerkt, bei erfolgreichem Abschlussfall eine Provision anfällt, die den in der Immobilienmaklerverordnung BGBI. 262 und 297/1996 festgelegten Sätzen entspricht – das sind 3 % des Kaufpreises zzgl. 20 % USt. Diese Provisionspflicht besteht auch dann, wenn Sie die Ihnen überlassenen Informationen an Dritte weitergeben.
Noch nichts gefunden? Wir informieren Sie über geeignete Immobilienangebote noch vor allen anderen.
Legen Sie jetzt Ihren individuellen Suchagenten unter folgendem Link an. Wir schicken Ihnen passende Immobilien exklusiv vorab zu.
-> Suchagent anlegen
Der Vermittler ist als Doppelmakler tätig.
ZELLMANN IMMOBILIEN GmbH
Vertrauen. Service. Qualität.
Infrastruktur / Entfernungen
Gesundheit
Arzt <500m
Apotheke <500m
Klinik <2.000m
Krankenhaus <1.500m
Kinder & Schulen
Schule <500m
Kindergarten <500m
Universität <4.000m
Höhere Schule <6.000m
Nahversorgung
Supermarkt <500m
Bäckerei <500m
Einkaufszentrum <2.000m
Sonstige
Geldautomat <500m
Bank <500m
Post <500m
Polizei <2.000m
Verkehr
Bus <500m
U-Bahn <3.500m
Straßenbahn <500m
Bahnhof <1.500m
Autobahnanschluss <4.000m
Angaben Entfernung Luftlinie / Quelle: OpenStreetMap
Eckdaten Objektnr. 24092
Art: | Wohnung - Maisonette |
Land: | Österreich |
Baujahr: | 1961 |
Zustand: | Gepflegt |
Alter: | Neubau |
Kaufpreis: | 499.000,00 € |
Provision: | 3% des Kaufpreises zzgl. 20% USt. |
Betriebskosten: | 167,29 € |
MwSt Gesamt: | 16,73 € |
Wohnfläche: | 100,00 m² |
Nutzfläche: | 106,00 m² |
Zimmer: | 4,50 |
Bäder: | 1 |
WC: | 1 |
Terrassen: | 1 |
Stellplätze: | 1 |
Heizwärmebedarf: | B 49,00 kWh/m²a |
Ausstattung
Dielenboden, Fliesen, Elektro, Etagenheizung, Einbauküche, Südbalkon, Badewanne, Kabel/Satelliten-TV
Ihre persönliche Beratung

Christian Zellmann
ZELLMANN IMMOBILIEN
H +43 699 15 15 22 00