Rohbau: 77m² Büro- oder Geschäftslokal Nähe Taborstraße - 1020 Wien
Einzelhandel
,
1020
Wien
Große Mohrengasse
Beschreibung der Immobilie
Rohbau: 77m² Büro- oder Geschäftslokal Nähe Taborstraße - 1020 Wien
Gewerbe-/Bürofläche: 77m² Geschäftslokal in befristeter Hauptmiete! Kein Gastro!
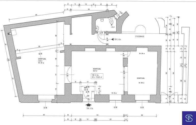
Das angebotene Gassenlokal wird als Rohbau (wie abgebildet) vermietet und befindet sich in einem schönen Altbau in der Großen Mohrengasse. Das Mietobjekt hat eine Nutzfläche von ca. 77m² und besteht derzeit aus 2 großen Räumen, kl. Teeküche, Abstellraum und 2 Sanitärräumen.
Ausstattung: Rohbau (wie abgebildet), 2 Sanitärbereiche, 2 Eingänge (Straßenzugang + Hauszugang), UPC Telekabel- und Internet-Vorbereitung im Haus,.
Achtung: Heizung, Elektrik, Sanitärbereiche, Bodenbeläge, Wandmalerei und Oberflächengestaltung usw. sind vom Mieter fertigzustellen!
Das Geschäftslokal wird nicht für Gastronomie vermietet! Bitte geben Sie bei Ihrer Anfrage unbedingt die geplante Nutzung an!
Sehr gute und zentrale Lage in der Großen Mohrengasse, in Gehweite zum Karmelitermarkt und zum Augarten. Auch die Innenstadt ist zu Fuß in 10 Minuten erreichbar. Ausgezeichnete Infrastruktur durch zahlreiche Einkaufsmöglichkeiten in unmittelbarer Umgebung und öffentliche Verkehrsanbindung. In Gehweite erreichbar sind U2, U1, Straßenbahnlinie 2 und Autobus 5A, 5B,.
Das Mietobjekt wird ab sofort in befristeter Hauptmiete (10 Jahre) vermietet.
Gesamtmiete inkl. Bk und 20% USt. € 1.120,50
(HMZ € 766,70 + Bk € 166,20 + 20% USt. € 186,58 + Manip. € 1,-)
Kaution € 3.400,-
Vermittlungshonorar 3MM (€ 2.801,67 zuzügl. 20% USt.)
KONTAKT: Terminvergabe nur per Email-Anfragefunktion! Keine telefonische Terminvergabe!
Besuchen Sie für unsere weiteren Angebote bitte auch unsere Homepage: www.sitarz.at
Der Mieter zahlt im Erfolgsfall an die Firma Sitarz & Partner Immobilien GmbH eine Maklerprovision in Höhe von 1 Nettomonatsmiete zzgl. 20% USt. bei einer Befristung von weniger als 2 Jahren, bzw. 2 Nettomonatsmieten zzgl. 20% USt. bei einer Befristung von mehr als 2 Jahren, jedoch nicht mehr als 3 Jahren. Bei einer Befristung über 3 Jahren sowie bei unbefristeten Verträgen sind 3 Nettomonatsmieten zzgl. 20% USt. fällig. Die Provision errechnet sich aus der im Mietvertrag vereinbarten Nettomiete inkl. Betriebskosten. Ausdrücklich vereinbart wird dieser Provisionsanspruch in gleicher Höhe auch für die in § 15 MaklerG vorgesehenen Fälle (Unterlassung eines notwendigen Rechtsaktes wider Treu und Glauben, Abschluss eines zweckgleichen Geschäftes, Abschluss mit einem Dritten aufgrund der Weitergabe der Abschlussmöglichkeit, Ausübung eines Vorkaufs-, Wiederkaufs- oder Eintrittsrechtes). Falls Ihnen dieses Objekt bereits als verkauf- oder vermietbar bekannt ist, ersuchen wir innerhalb von 3 Werktagen um Ihre schriftliche Nachricht, ansonsten gilt die Provisionsregelung als vereinbart. Bei den Größen und Ertragsangaben handelt es sich um die von Abgeber/in (Eigentümer/in bzw. Hausverwaltung) zur Verfügung gestellten Informationen. Die Angaben wurden von uns kontrolliert, eine Gewähr für die Richtigkeit, Vollständigkeit und Letztstand müssen wir allerdings ausschließen. Es wird darauf hingewiesen, dass zwischen dem Abgeber und dem Immobilienmakler ein wirtschaftliches bzw. familiäres Nahverhältnis besteht und der Immobilienmakler auch für diesen tätig ist (Doppelmakler).
Infrastruktur / Entfernungen
Gesundheit
Arzt <500m
Apotheke <500m
Klinik <500m
Krankenhaus <500m
Kinder & Schulen
Schule <500m
Kindergarten <500m
Universität <500m
Höhere Schule <1.000m
Nahversorgung
Supermarkt <500m
Bäckerei <500m
Einkaufszentrum <1.500m
Sonstige
Geldautomat <500m
Bank <500m
Post <500m
Polizei <1.000m
Verkehr
Bus <500m
U-Bahn <500m
Straßenbahn <500m
Bahnhof <500m
Autobahnanschluss <3.000m
Angaben Entfernung Luftlinie / Quelle: OpenStreetMap
Eckdaten Objektnr. 7572
Art: | Einzelhandel |
Land: | Österreich |
Baujahr: | 1918 |
Zustand: | Sanierungsbeduerftig |
Alter: | Altbau |
Kaltmiete (netto): | 766,70 € |
Kaltmiete: | 933,92 € |
Provision: | 3.362,00 € inkl. 20% USt. |
Betriebskosten: | 166,22 € |
MwSt Gesamt: | 186,58 € |
Nutzfläche: | 77,00 m² |
Zimmer: | 3 |
WC: | 2 |
Heizwärmebedarf: | F 207,00 kWh/m²a |
fGEE: | D 1,99 |
Ausstattung
Estrichboden, Gas, Kabel/Satelliten-TV
Ihre persönliche Beratung

Edith Gruber
Sitarz & Partner Immobilien GmbH
T +43 660 650 59 22