TOP – NEUBAU – EIGENTUMSWOHNUNGEN mit Gärten, Terrassen, Balkonen in bester ZENTRUMSRUHELAGE!
Wohnung
,
2020
Hollabrunn
Beschreibung der Immobilie
TOP – NEUBAU – EIGENTUMSWOHNUNGEN mit Gärten, Terrassen, Balkonen in bester ZENTRUMSRUHELAGE!
HERMES – Eigentumswohnungen in bester Zentrumsruhelage
Das neue Wohnhausprojekt HERMES in Ziegelmassiv-Niedrigenergiebauweise – schlüsselfertig wird in bester Ruhelage im Zentrum von Hollabrunn, auf einem rechteckig konfigurierten, ebenen Grundstück (insgesamt ca. 2.493 m² Gesamtfläche) eingebettet und in bester Infrastruktur und Anbindungen errichtet!
Baubeginn war März 2022 - das Projekt wurde bereits fertiggestellt!!!
Bis auf 4 Wohnungen (STIEGE 1, Tür 4, sowie STIEGE 2, Tür 2) sind alle Wohnungen verkauft und bereits übergeben!
Bei diesen noch "zu kaufenden Wohnungen" können Sie sich noch die Fliesen, sowie Parkettböden nach Ihrem Wunsch aussuchen!!!
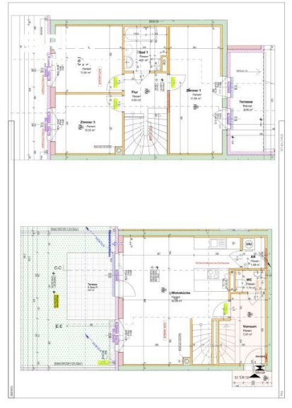
Es entstehen 28 hochwertige – auf zwei Häusern/Stiegen verteilte helle Eigentumswohnungen mit Gärten, Terrassen und Balkonen. Weiteres stehen 42 PKW-Stellplätze (im Eigentum-Grundbuch) zum Kauf zur Verfügung!
STIEGE 1 (insgesamt 18 Wohneinheiten) – westseitig „Rapfstraße“ orientiert
- 1. OG: 3 x 2 Zimmerwohnungen, 2 x 3 Zimmerwohnungen, 1 x 4 Zimmerwohnungen
- 2. OG: 3 x 2 Zimmerwohnungen, 2 x 3 Zimmerwohnungen, 1 x 4 Zimmerwohnungen
- DG: 3 x 2 Zimmerwohnungen, 2 x 3 Zimmerwohnungen, 1 x 4 Zimmerwohnungen
STIEGE 2 (insgesamt 10 Wohneinheiten) – gartenseitig, ost- süd orientiert
- EG: 5 Maisonette-Wohnungen (EG + OG): 3 x 4 Zimmer, 1 x 3 Zimmer, 1 x 5 Zimmer > alle mit Terrassen/Balkonen
- EG: 2 x 3 Zimmerwohnung inkl. Garten/Terrasse
- 1.OG: 1 x 2 Zimmer, 2 x 3 Zimmer (alle mit Balkonen)
Die Zufahrt/Eingang erfolgt von der Rapfstraße über die Stiege 1/Haus 1 - mittels einem ferngesteuerten Sektionaltor, somit ist der Zugang nur für Wohnungseigentümer möglich. Über den fein gestalteten PKW-Parkplatz – mit der im Zentrum thronenden-historischen „Hermesstatue“ erreichen Sie die Stiege 2/Haus 2 mit den Garten- sowie Maisonnette-Wohnungen.
Die einzelnen Wohneinheiten weisen alle große Terrassen, Balkone oder Gärten mit verschiedenen Ausrichtungen auf; aufgrund des vorhandenen Liftes in Stiege 1/Haus 1 sind alle Wohnungen barrierefrei.
Ausreichend Parkplätze im Freien (27) aber auch „als Multiparking-System“ in Stiege 1/Haus 1 (15) im EG und Untergeschoss (ähnlich Tiefgarage) sind vorhanden. Bei Kauf erfolgt Eigentums-Eintragung im Grundbuch!
„Visuelle Erklärung/Info“ des Multiparking Systems finden Sie unter diesem Link: https://www.klaus-multiparking.at/product-semi-automatic/trendvario-6200
Perfekte Lage des Projektes HERMES:
- Zentral im Zentrum in einer Seitenstraße, ruhig gelegen – umgeben von historischen Einfamilienhäusern, „quasi vor der Haustüre“ befinden sich alle Nahversorger, viele Geschäfte, Bushaltestelle und Bahnhof in ca. 5 Minuten fußläufig erreichbar.
- Facettenreiche Gastronomie, hohes Schulangebot, EURO-Center und EKZ mit einer Vielzahl von Geschäften, im Nahbereich LKH Hollabrunn, Heurige/Kellergasse mit dem „legendärem Mozart-Pinkelstein“, Kolisko-Aussichtswarte, Motorikpark für „jung und alt“…….usw.
- Praktische Verkehrsanbindung: In ca. 40 Minuten über S 3 und A 22 mittels PKW/Bahn nach Wien, ca. 15 Minuten nach Stockerau, Tulln, Mistelbach, sowie Grenzübergang Kleinhaugsdorf nach Znaim.
HARD FACTS - technische Daten:
- Baugenehmigung liegt vor, Gesamtprojektfinanzierung gesichert
- langjährige, positive Kooperation mit geprüftem, seriösen Bauträger lt. Bauträgervertragsgesetz (ca. 10 Bauprojekte gemeinsam umgesetzt) – grundbücherliche und treuhändische Abwicklung über renommierten Treuhänder/Rechtsanwalt
- PROVISIONSFREI FÜR KÄUFER – Gesamtabwicklung exklusiv über zertifizierten Bankenmakler s REAL (Eigentümer ERSTE-Bank) in Kooperation mit div. Finanzpartnern
- MASSIVBAUWEISE > Hohlblockmauerwerk 20-25 cm + Wärmedämmung 16 cm EPS F+ (hochdämmend), Reibputz
- Kunststoff-Alufenster in Dreh/Kipp- Ausführung, 3 Scheiben-Wärmeschutzverglasung, Terrassentüren + Fenster im EG in einbruchshemmender Ausführung (Mehrfachverriegelung) > aushebelsicher - Rollläden elektrisch/inkl. integrierter Fliegengitter
- Fußbodenheizung und Warmwasserversorgung über hochmoderne, ressourcenschonende, nahezu CO 2 neutrale PELLETS-Heizung
- individuelle Verbrauchsabrechnung (Raumthermostat in jeder WHG) Heizung und Wasser
- jede Wohnung verfügt über einen zusätzlichen Lagerraum
- freie Wahl von vorhanden Fliesen- und hochwertigen Parkettböden
- Individuelle Wohnraumgestaltung nach technischen und statischen Möglichkeiten während der Bauphase, gerne möglich!
- Einfahrt mittels ferngesteuertem Sektionaltor – somit KEIN Eingang von NICHTeigentümern
- Einbau von Klimaanlage oder sonstige Zusatzwünsche sind ebenfalls gerne möglich!
Geschätzte Betriebskosten: vorläufiges A-Konto € 2,50 /m² exkl. USt.
Geschätzte Heizkosten: je nach Verbrauch ca. € 1,38 /m² (inkl. Warmwasser/Service/Wartung)
Vereinbaren Sie jetzt Ihren Termin – ich freue mich!
Infrastruktur / Entfernungen
Gesundheit
Arzt <500m
Krankenhaus <1.500m
Apotheke <500m
Kinder & Schulen
Schule <500m
Kindergarten <500m
Nahversorgung
Supermarkt <500m
Bäckerei <500m
Sonstige
Bank <500m
Geldautomat <500m
Polizei <1.500m
Post <500m
Verkehr
Bus <500m
Autobahnanschluss <1.500m
Bahnhof <500m
Angaben Entfernung Luftlinie / Quelle: OpenStreetMap
Eckdaten Objektnr. 960/73263
| Art: | Wohnung |
| Land: | Österreich |
| Zustand: | Erstbezug |
| Alter: | Neubau |
| Kaufpreis: | 423.900,00 € |
| Provision: | PROVISIONSFREI |
| Nutzfläche: | 92,92 m² |
| Zimmer: | 4 |
| Bäder: | 1 |
| WC: | 2 |
| Terrassen: | 2 |
| Garten: | 33,34 m² |
| Heizwärmebedarf: | B 25,40 kWh/m²a |
| fGEE: | A 0,80 |
Ihre persönliche Beratung
Dieser Makler ist ein offizielles Mitglied des IR – ir.at Mehr Erfahren

