ERSTBEZUG "ein viertel grün" in Wr. Neustadt - Top Lage - 3 Zimmerwohnung mit Balkon - inkl. Tiefgaragenstellplatz in bester Lage - provisionsfrei
                                                            Wohnung
                                ,
                            
                            
                                
                                                                            2700
                                    
                                                                            Wiener Neustadt
                                    
                                    ,
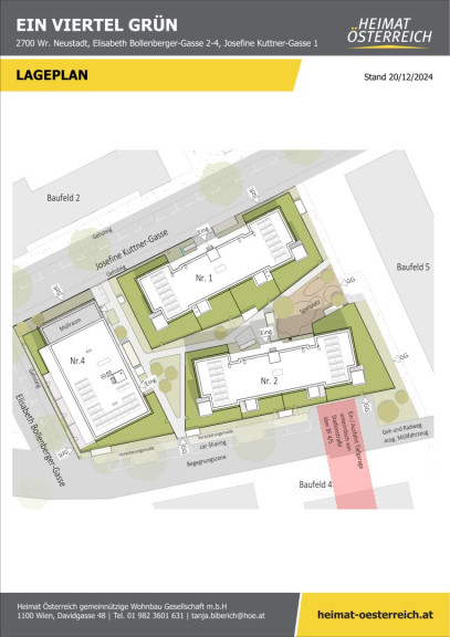
                                        Josefine Kuttner-Gasse                                                                                    
                                    
                                
                                                                    
                                        
                                    
                                
                            
                        
                        Erleben Sie urbanes Wohnen inmitten von grünen Freiräumen: Das Wohnprojekt "ein viertel grün" bietet modernen Wohnkomfort in perfekter Lage - direkt gegenüber der Merkurcity. Hier verbinden sich erstklassige Infrastruktur und eine ruhige, grüne Umgebung zu einem einzigartigen Lebensraum für Einzelpersonen, Paare und Familien. Sowohl das Stadtzentrum von Wiener Neustadt, der Bahnhof als auch die Autobahn A2 sind in wenigen Minuten erreichbar. Wiener Neustadt bietet neben zahlreichen Einkaufsmöglichkeiten auch einige Restaurants, Bistros, Cafés und Bars, die zum Verweilen einladen. Auch kulturell hat die Stadt einiges zu bieten - von monatlichen Veranstaltungen bis hin zu geschichtsträchtigen Sehenswürdigkeiten.
Beschreibung der Immobilie
ERSTBEZUG "ein viertel grün" in Wr. Neustadt - Top Lage - 3 Zimmerwohnung mit Balkon - inkl. Tiefgaragenstellplatz in bester Lage - provisionsfrei
Herzlich Willkommen im neuen Stadtviertel "ein viertel grün" in Wiener Neustadt!
Hier trifft modernes Wohnen auf naturnahe Umgebung - ideal für junge Familien, Paare sowie Einzelpersonen die Wert auf Lebensqualität, Gemeinschaft und Nachhaltigkeit legen.
Das gesamte Areal ist verkehrsberuhigt und umgeben von Grünflächen. Kinder können unbeschwert spielen, und Sie genießen entspannte Stunden im eigenen Garten oder auf dem Balkon.
Öffentliche Geh- und Radwege führen durch das gesamte Areal.
Ein Plus für Familien ist der moderne Kindergarten direkt im Quartier.
Ein eigener Quartierstreff bietet Raum für Begegnungen, Austausch und neue Freundschaften.
Alle wichtigen Einrichtungen für den täglichen Bedarf, sowie Nahversoger für Sie und Ihre Liebsten befinden sich in unmittelbarer Umgebung.
Hier die Details im Überblick:
- 51 geförderte Eigentumswohnungen
- ca. 50m² - 90m², 2 - 4 Zimmer
- alle Wohnungen mit Freifläche in Form von Terrasse und Eigengarten oder Balkon
- hochwertige Laminatböden
- Tiefgarage: Jeder Wohnung sind 1-2 Stellplätze zugeordnet und bereits im Kaufpreis inkludiert. Weitere Stellplätze können zusätzlich erworben werden.
- Niedrigenergiebauweise
- ruhige Lage im Grünen
- Einlagerungsräume
- Fahrrad- und Kinderwagenabstellräume
- Waschküchen
- Personenaufzug
- Kinderspielplatz mit Sitzmöglichkeiten
- Müllräume
- Photovoltaik am Dach
- HWB Wert ca. 29,4 kwh/m²a, fGEE ca. 0,56
- Fertigstellung voraussichtlich September 2026
Weiters gibt es freifinanzierte Eigentumswohnungen auf diesem Areal.
Nähere Infos gibt es hier: Freifinanzierte Eigentumswohnungen
Willkommen in Ihrem neuen Zuhause in Wiener Neustadt!
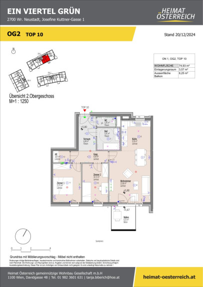
Diese traumhafte Wohnung im 2. Obergeschoss bietet Ihnen nicht nur einen Erstbezug, sondern auch ein modernes Wohngefühl in einer aufstrebenden Stadt.
Mit einer großzügigen Fläche von 74,93 m² verteilt auf 3 helle und freundliche Zimmer, ist diese Wohnung der ideale Ort für Paare oder kleine Familien. Die durchdachte Raumaufteilung sorgt für eine perfekte Balance zwischen Wohn- und Schlafbereichen.
Ein Highlight dieser Immobilie ist der einladende Balkon, der Ihnen die Möglichkeit bietet, entspannte Stunden im Freien zu verbringen. 
Die beiden Schlafzimmer sind zentral vom Vorzimmer aus über einen Gang erreichbar. Dieser Gang ist auch direkt mit dem Wohnzimmer verbunden.
Das Badezimmer ist modern verfliest und mit einer Badewanne ausgestattet. Des Weiteren befinden sich ein Handwaschbecken und ein Waschmaschinenanschluss im Badezimmer. Das WC ist ebenfalls modern verfliest und separat, neben dem Badezimmer vorzufinden.
Der Abstellraum sorgt für extra Stauraum.
Diese Wohnung ist nicht nur ein Ort zum Wohnen, sondern ein Ort, an dem Sie Ihr Leben nach Ihren Vorstellungen gestalten können. Lassen Sie sich von der modernen Ausstattung und der idealen Lage überzeugen.
Sie haben die Möglichkeit den rückzahlbaren Annuitätenzuschuss zu übernehmen. Dieser kann ggfls. auf Ihr Fremdfinanzierungsdarlehen übertragen werden.
Der Höchstbetrag des Annuitätenzuschusses beträgt ca. € 325,53 pro Monat.
Erleichterte Finanzierungsmöglichkeit durch Übernahme der Förderung und des Bankdarlehen – beides kann bei unserem Projekt übernommen werden und somit Ihre Gesamtkosten senken.
Nähere Details zu Ihrer Traumimmobilie entnehmen Sie den Dokumenten.
Kaufpreis Wohnung inkl. Stellplatz: € 273.385,--
Lassen Sie sich diese einmalige Gelegenheit nicht entgehen! Ihr neues Zuhause in Wiener Neustadt wartet auf Sie!
Noch nichts gefunden? Wir informieren Sie über geeignete Immobilienangebote noch vor allen anderen.
Legen Sie jetzt Ihren individuellen Suchagenten unter folgendem Link an. Wir schicken Ihnen passende Immobilien exklusiv vorab zu.
Suchagent anlegen - https://heimat-oesterreich.service.immo/registrieren/de
Infrastruktur / Entfernungen
Gesundheit
Arzt <750m
Apotheke <250m
Klinik <2.500m
Krankenhaus <1.000m
Kinder & Schulen
Schule <250m
Kindergarten <750m
Höhere Schule <1.750m
Universität <2.000m
Nahversorgung
Supermarkt <250m
Bäckerei <500m
Einkaufszentrum <250m
Sonstige
Bank <500m
Geldautomat <500m
Post <750m
Polizei <750m
Verkehr
Bus <250m
Autobahnanschluss <3.250m
Bahnhof <1.250m
Flughafen <2.250m
Angaben Entfernung Luftlinie / Quelle: OpenStreetMap
Eckdaten Objektnr. 4559
| Art: | Wohnung | 
| Land: | Österreich | 
| Baujahr: | 2026 | 
| Zustand: | Erstbezug | 
| Alter: | Neubau | 
| Kaufpreis: | 273.385,00 € | 
| Betriebskosten: | 224,24 € | 
| MwSt Gesamt: | 25,91 € | 
| Wohnfläche: | 74,93 m² | 
| Zimmer: | 3 | 
| Bäder: | 1 | 
| WC: | 1 | 
| Balkone: | 1 | 
| Stellplätze: | 1 | 
| Keller: | 3,57 m² | 
| Heizwärmebedarf: | B 29,30 kWh/m²a | 
| fGEE: | A+ 0,64 | 
Ausstattung
Fliesen, Laminatboden, Fernwärme, Personenaufzug, Badewanne, Tiefgarage, Wasch/Trockenraum
Ihre persönliche Beratung
 
                    Tanja Rath
Heimat Österreich gemeinnützige Wohnungs- und Siedlungsgesellschaft m.b.H.
T 01 982 36 01 631
H 0676/5773510
 
                 
                 
                 
                 
                 
                 
                 
                 
                 
                 
                 
                 
                 
                 
                 
                 
                 
                