Traumhaftes Doppelhaus mit Grünblick - Erstbezug
                                                            Haus
                                - Doppelhaushälfte,
                            
                            
                                
                                                                            1140
                                    
                                                                            Wien
                                    
                                    
                                
                                                                    
                                        
                                    
                                
                            
                        
                        Das Haus verfügt über eine gute Anbindung ins Zentrum Wiens, die Schnellbahnstation erreicht man zu Fuß in 7 Minuten . Mit dem Auto gelangt man in ca. 10 Min zur U-Bahn Station U4 Hütteldorf und S45, Westbahn.
Beschreibung der Immobilie
Traumhaftes Doppelhaus mit Grünblick - Erstbezug
Luxus, Sonne und Natur - diese 3 Dinge vereint dieses neue errichtete Doppelhaus!
Der Charme des Doppelhauses ist der einzigartige Blick, erlesene Materialen, Schlafräume und Aufenthaltsräume mit Balkon oder Terrasse. 3 WC und 2 Bäder.
1.Ebene: Vorraum+Wohnküche+Toilette
2.Ebene: Wohnzimmer+Schlafzimmer+Badezimmer
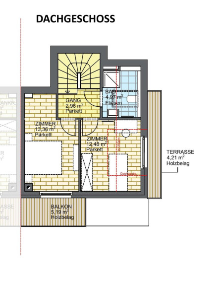
3. Ebene: zwei Schlafzimmer + Badezimmer
Kellerebene: Hobbyraum+Abstellraum+Technikraum (Vorbereitung für eine Sauna)
Lassen Sie sich überraschen. Terminvereinbarungen sind unter: 0676 504 35 37 auch am Wochenende möglich.
Austattung: Energieeffiziente Heizung mit einer Luftwärmepumpe, hochwertige Materialen wie Eichendielenböden und Feinsteinzeugfliesen, Rolläden, Klimaanlage im Dachgeschoss, fertig ausgeführter Garten und ein Stellplatz direkt vor dem Haus, Whirlpool Anschluss im Garten, Sauna Vorbereitung im Keller.
Gerne stehen wir Ihnen für weitere Fragen unter T 06765043537 zur Verfügung.
Der Vermittler ist als Doppelmakler tätig.
Infrastruktur / Entfernungen
Gesundheit
Arzt <2.000m
Apotheke <1.500m
Klinik <4.000m
Krankenhaus <3.000m
Kinder & Schulen
Schule <1.000m
Kindergarten <1.500m
Universität <1.500m
Höhere Schule <6.500m
Nahversorgung
Supermarkt <500m
Bäckerei <1.500m
Einkaufszentrum <1.500m
Sonstige
Geldautomat <1.500m
Bank <1.500m
Post <1.500m
Polizei <1.500m
Verkehr
Bus <500m
Straßenbahn <2.000m
U-Bahn <2.000m
Bahnhof <500m
Autobahnanschluss <1.500m
Angaben Entfernung Luftlinie / Quelle: OpenStreetMap
Eckdaten Objektnr. 1506
| Art: | Haus - Doppelhaushälfte | 
| Land: | Österreich | 
| Baujahr: | 2025 | 
| Zustand: | Erstbezug | 
| Alter: | Neubau | 
| Kaufpreis: | 990.000,00 € | 
| Provision: | 35.640,00 € inkl. 20% USt. | 
| Wohnfläche: | 148,00 m² | 
| Zimmer: | 5 | 
| Bäder: | 2 | 
| WC: | 3 | 
| Balkone: | 3 | 
| Terrassen: | 1 | 
| Stellplätze: | 1 | 
| Heizwärmebedarf: | B 46,10 kWh/m²a | 
| fGEE: | A 0,71 | 
Ausstattung
Steinboden, Parkett, Fußbodenheizung, Wohnküche / offene Küche, Bad mit Fenster, Badewanne, Parkplatz
Ihre persönliche Beratung
 
                                                        Mag. Katja Gálffy
3ES Immobilien KG
T +43 676 504 35 37
 
                 
                 
                 
                 
                 
                 
                 
                 
                 
                 
                 
                 
                 
                 
                 
                 
                